今天推荐一款新中式="://www.lemeizhai.com/Picture.asp?PicClassID=88" target="_self" style="font-size: 24px; text-decoration: underline;">农村二层别墅设计,这是一款="://www.lemeizhai.com/search.asp?SearchType=Software&imageField.x=33&imageField.y=34&SearchKey=%BA%CF%D4%BA" target="_self">四合院别墅设计,青砖白墙灰瓦一派富贵之气,一看就是富贵之家!这款富贵大气别墅基本造价在100万左右,是富贵之家建别墅的首选!

别墅层数: 二层
别墅风格: 中式
占地面积:392㎡
开 间:19.8m
进 深:19.8m
建筑占地:19.8m×19.8m
建筑面积:689.8㎡
主体造价:105.0万左右
建筑结构:砖混结构


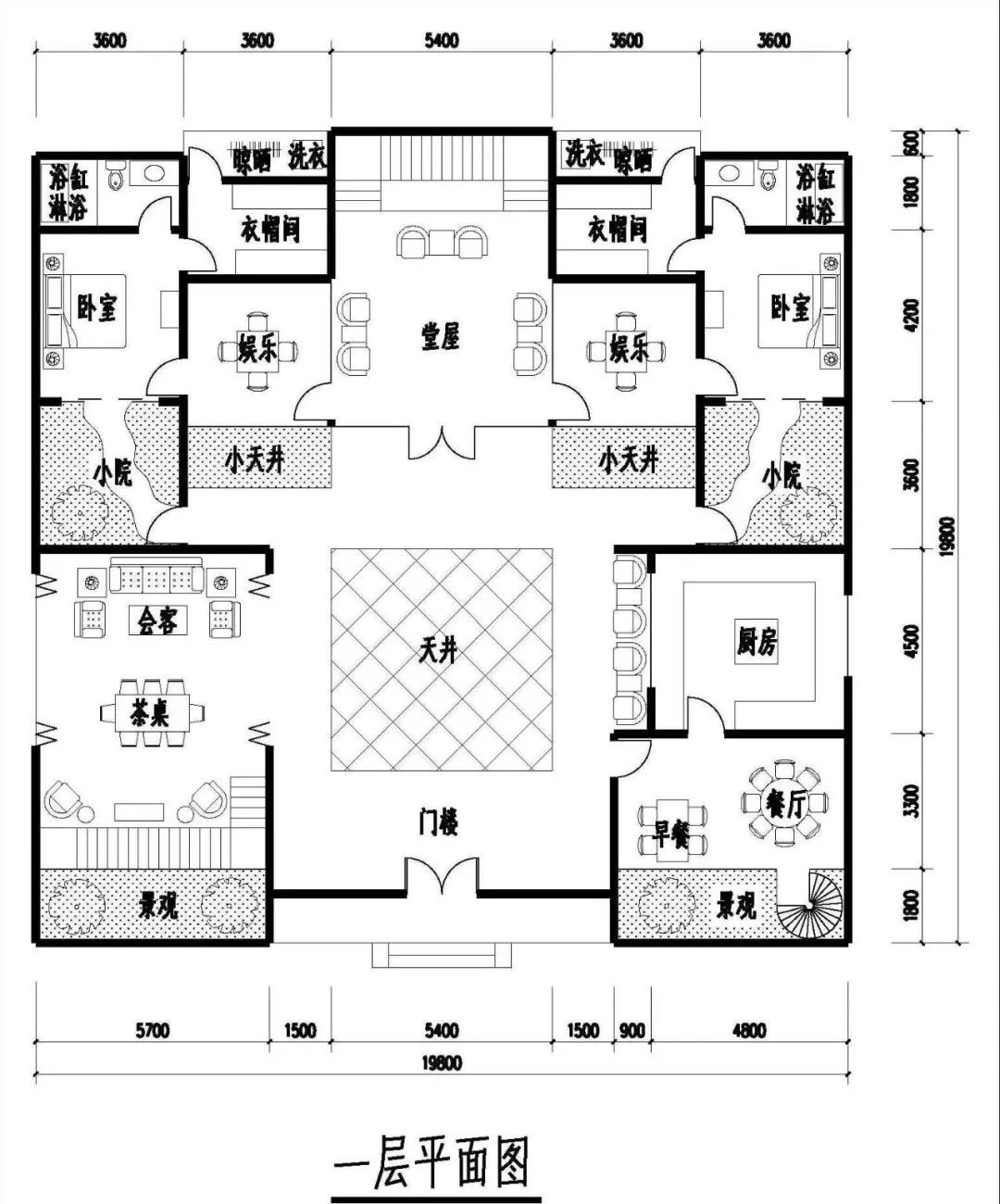
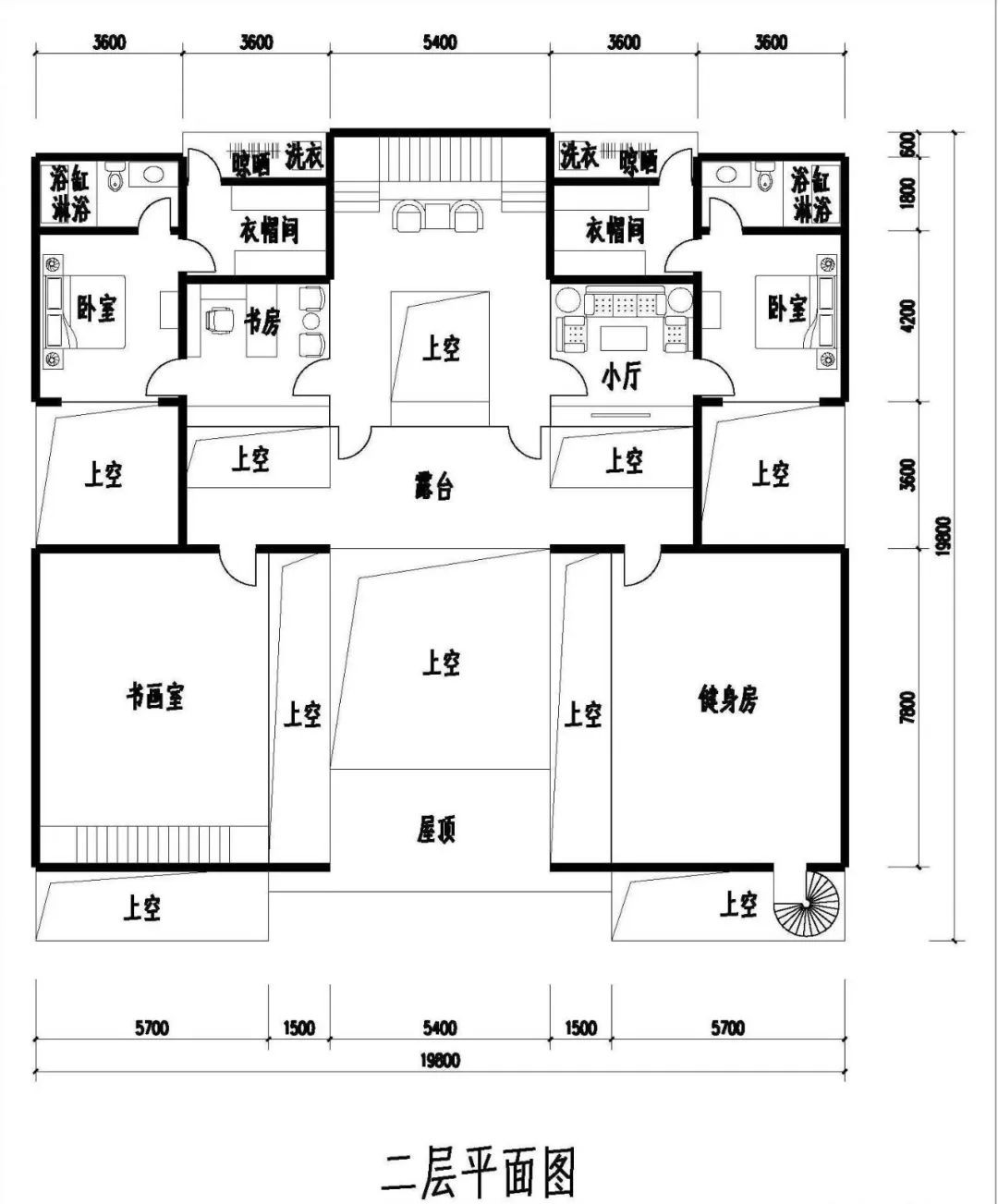
主体设计:

客厅、餐厅、厨房、卧室、公卫、阳台、露台。

。
转载请注明出自轩鼎别墅设计:://www.lemeizhai.com/index.asp