一款修长的农村二层="://www.lemeizhai.com/search.asp?SearchType=Software&imageField.x=50&imageField.y=34&SearchKey=%D6%D0%CA%BD%B1%F0%CA%FB%C9%E8%BC%C6" target="_self">中式别墅设计,一般别墅有的东西,这款别墅都有,经典的配色实惠的造价只需最最高20万就能建造主体!这款别墅是新乡林总私人订制的中式别墅设计款式。

别墅层数: 二层
别墅风格: 新中式
占地面积:101㎡
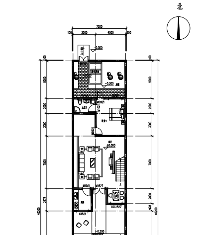
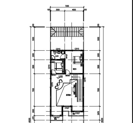
开 间:7.2m
进 深:40m
建筑占地:7.2m×40m
建筑面积:181.7㎡
主体造价:15.0~20.0万
建筑结构:框架结构

主体设计:

客厅、餐厅、厨房、卧室、公卫、阳台、露台。

。
转载请注明出自轩鼎别墅设计:://www.lemeizhai.com/index.asp