现代别墅设计非常火热,今天这款现代风格的农村="://www.lemeizhai.com/Picture.asp?PicClassID=88" target="_self" style="font-size: 24px; text-decoration: underline;">二层别墅设计,这款别墅现代感十足,侧面大落地窗美观舒适,洁白的墙体和青砖雅致舒爽,屋顶采用新中式风格别墅的样貌,别墅总体方方正正,面积不大不小
别墅层数: 二层
别墅风格: 现代
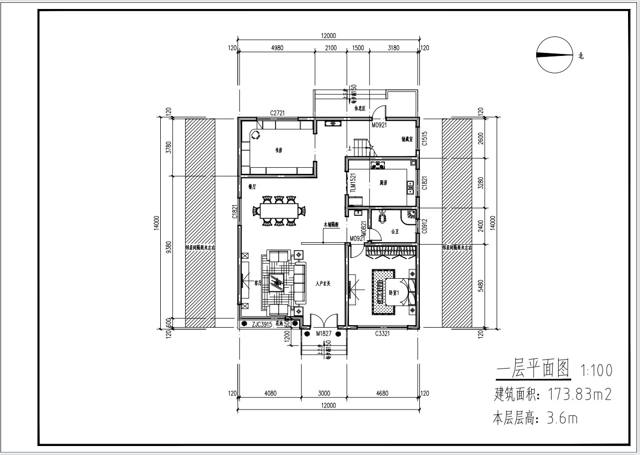
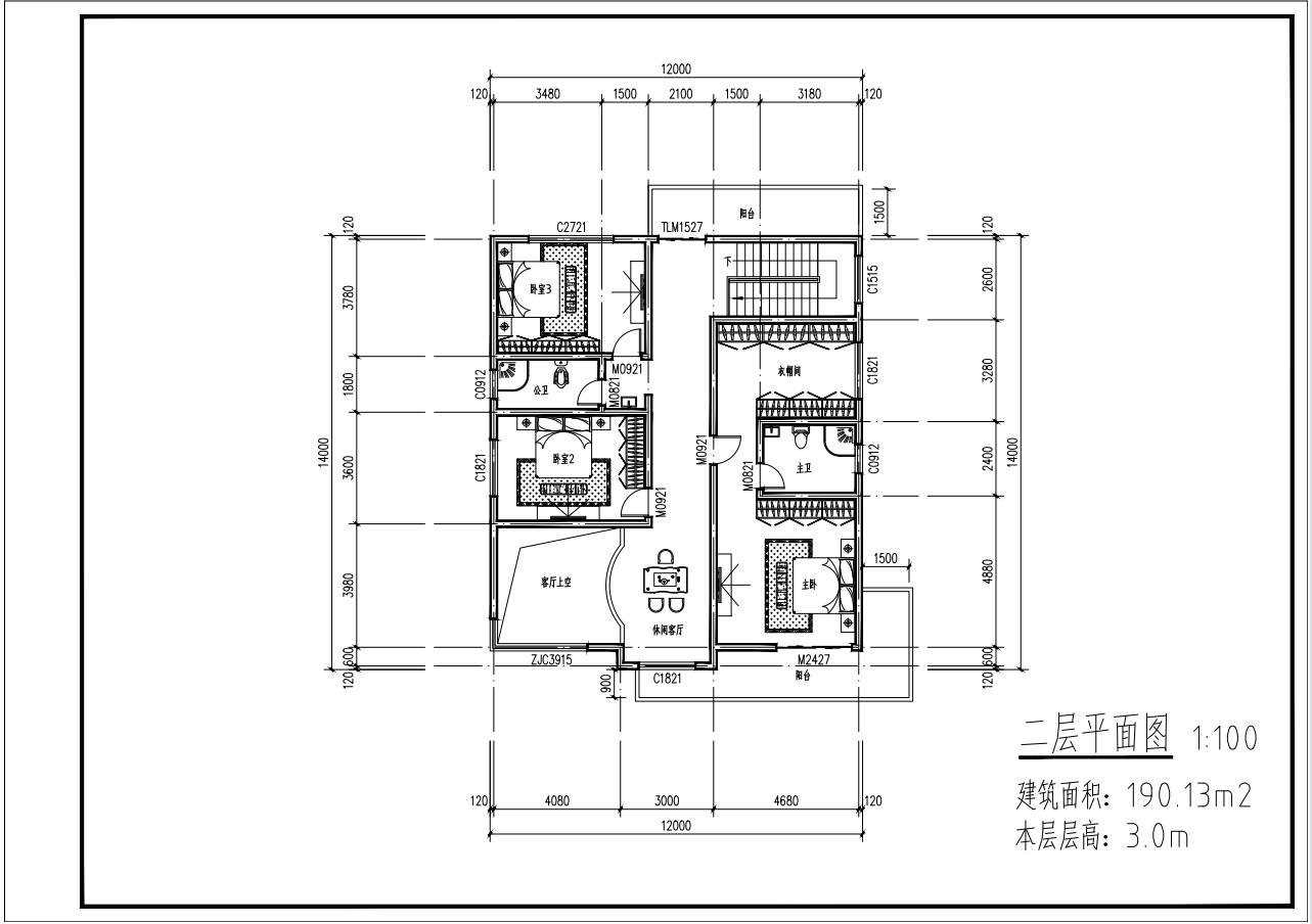
占地面积:173㎡
开 间:12m
进 深:14m
建筑占地:12m×14m
建筑面积:363.96㎡
主体造价:35.0~40.0万
建筑结构:砖混结构


主体设计:

客厅、餐厅、厨房、卧室、公卫、阳台、露台。

。
转载请注明出自轩鼎别墅设计:://www.lemeizhai.com/index.asp