今天给大家推荐一款程总私人订制的农村欧式="://www.lemeizhai.com/Picture.asp?PicClassID=91" target="_self">三层别墅设计,这款别墅功能齐全比较现代化,有停车车库和阳光房,平时养养花放松心情,此款别墅空间大房间多却不显杂乱,最高预估价189万左右。

别墅层数: 三层
别墅风格: 欧式
占地面积:547㎡
开 间:23.5m
进 深:23.3m
建筑占地:23.5m×23.3m
建筑面积:1010㎡
主体造价:165.0~170.0万
建筑结构:砖混结构

主体设计:

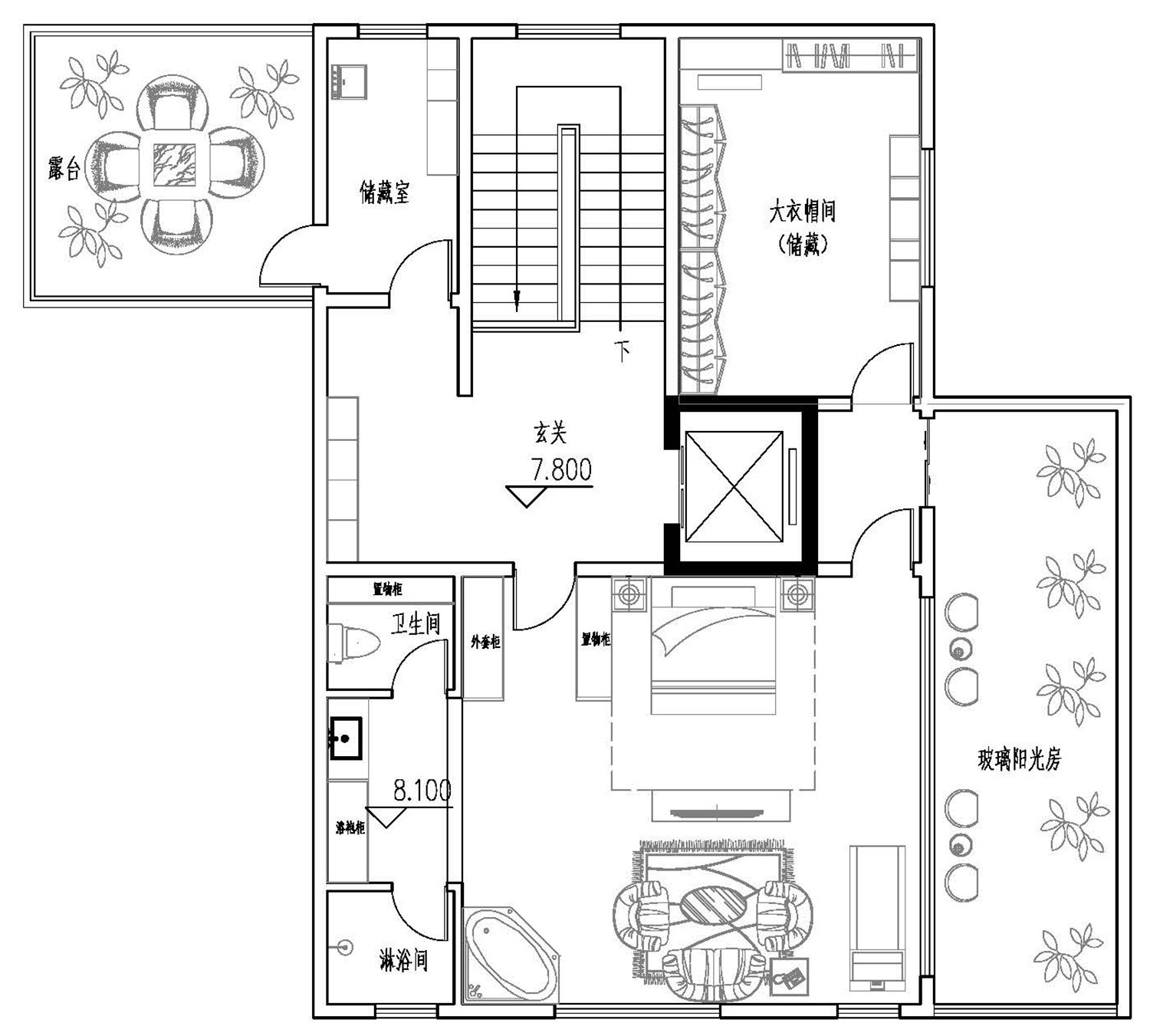
客厅、餐厅、厨房、卧室、公卫、阳台、露台。

。

转载请注明出自轩鼎别墅设计:://www.lemeizhai.com/index.asp