现在有些农村大气已经大变样了,处处都是漂亮的别墅,要想在一款好别墅,一定要选择外观大气美观,室内布局也要自在舒适。说了这么多,来看看今天的别墅吧。这是一款="://www.lemeizhai.com/Picture.asp?PicClassID=88" target="_self" style="font-size: 24px; text-decoration: underline;">二层别墅设计、欧式别墅是最实用的别墅。内部布局很好,农村建房很适合。

别墅层数: 二层
别墅风格: 欧式
占地面积:114㎡
开 间:9m
进 深:12.7m
建筑占地:9m×12.7m
建筑面积:221㎡
主体造价:30.3~35.3万
建筑结构:框架结构

主体设计:

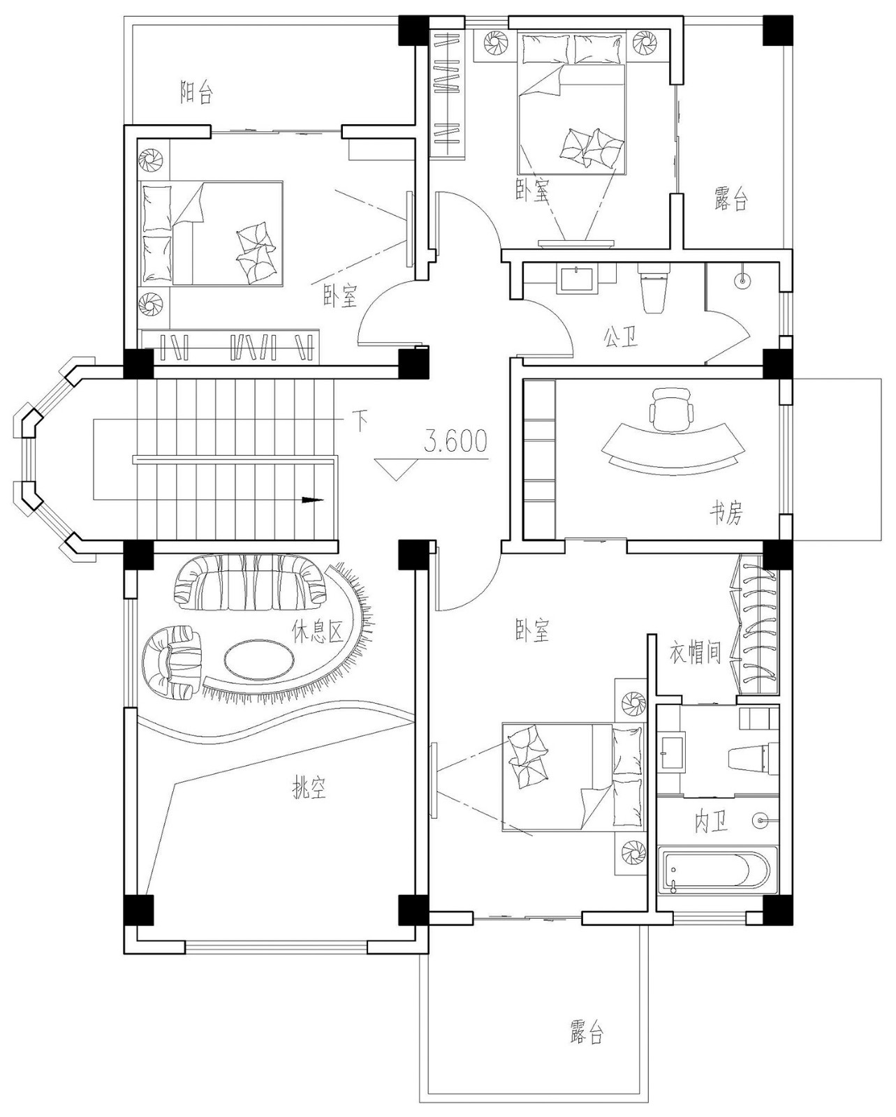
客厅、餐厅、厨房、卧室、公卫、阳台、露台。

。
转载请注明出自轩鼎别墅设计:://www.lemeizhai.com/index.asp