人在外打拼一辈子为的是有朝一日回到家乡让家人过好日子。进推荐一款田园农村="://www.lemeizhai.com/Picture.asp?PicClassID=88" target="_self" style="font-size: 24px; text-decoration: underline;">二层小别墅设计,让生活增添色彩,这款田园风格的农村别墅设计比较耐看,文化石真石漆与红屋顶增添了许多色彩,总之是一款不错的田园双拼别墅设计。

别墅层数: 二层
别墅风格: 欧式
占地面积:228㎡
开 间:19m
进 深:12m
建筑占地:19m×12m
建筑面积:440㎡
主体造价:61.0~66.0万
建筑结构:砖混结构


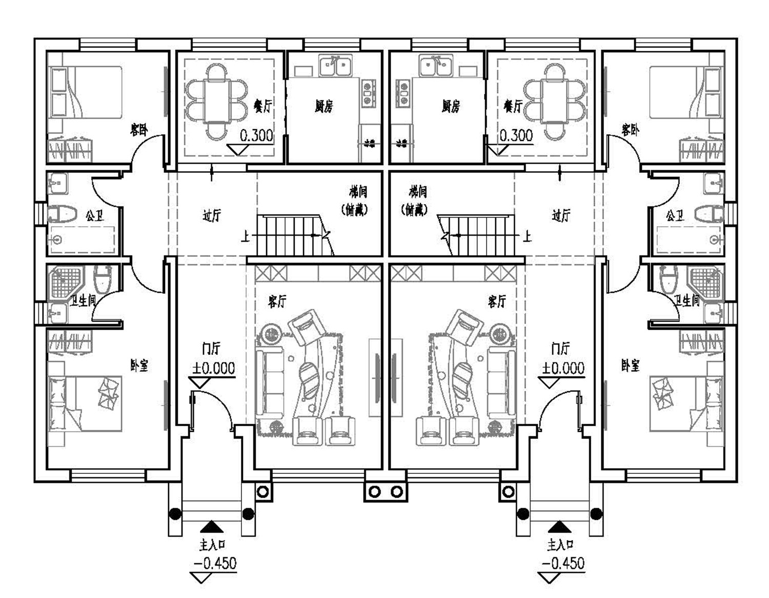
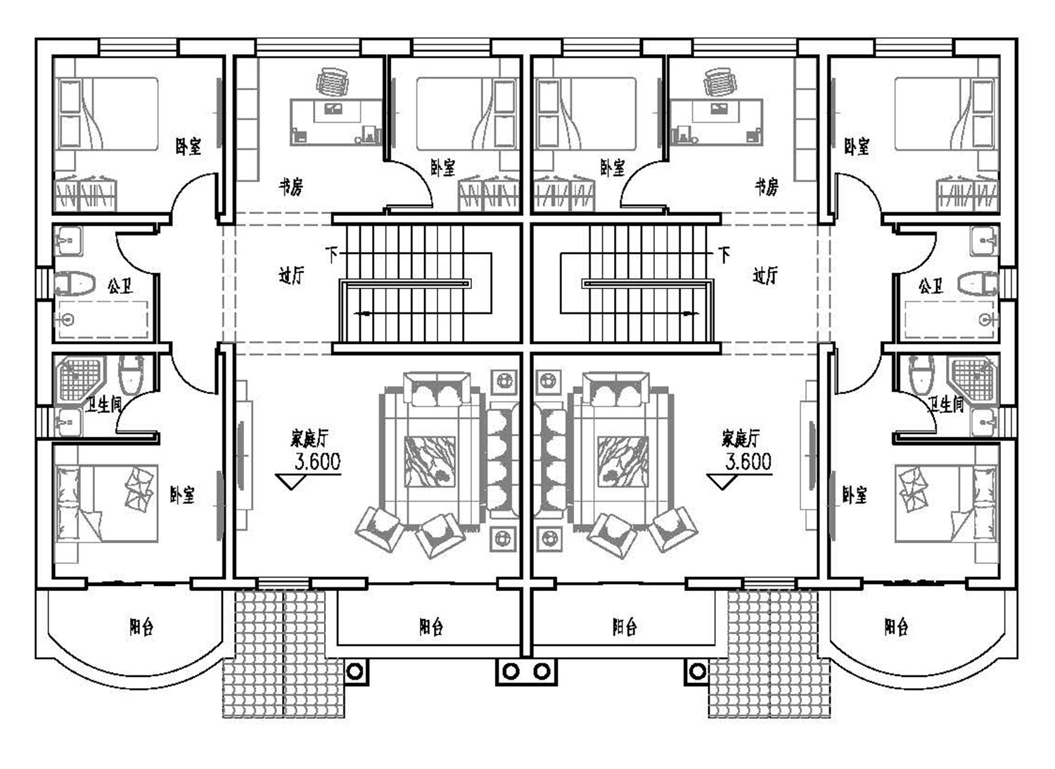
主体设计:

客厅、餐厅、厨房、卧室、公卫、阳台、露台。
。
转载请注明出自轩鼎别墅设计:://www.lemeizhai.com/index.asp