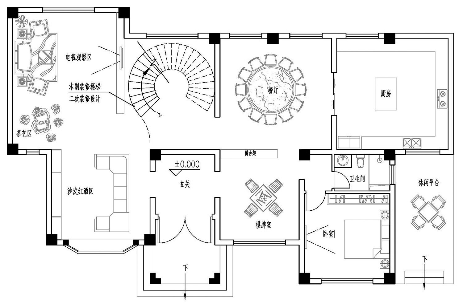
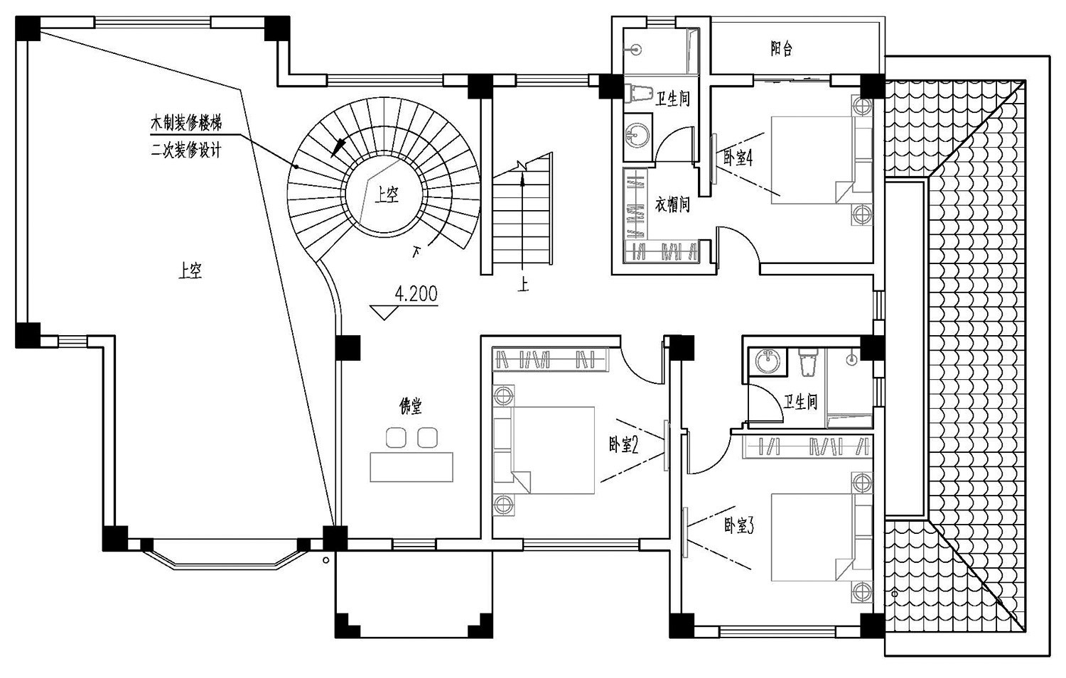
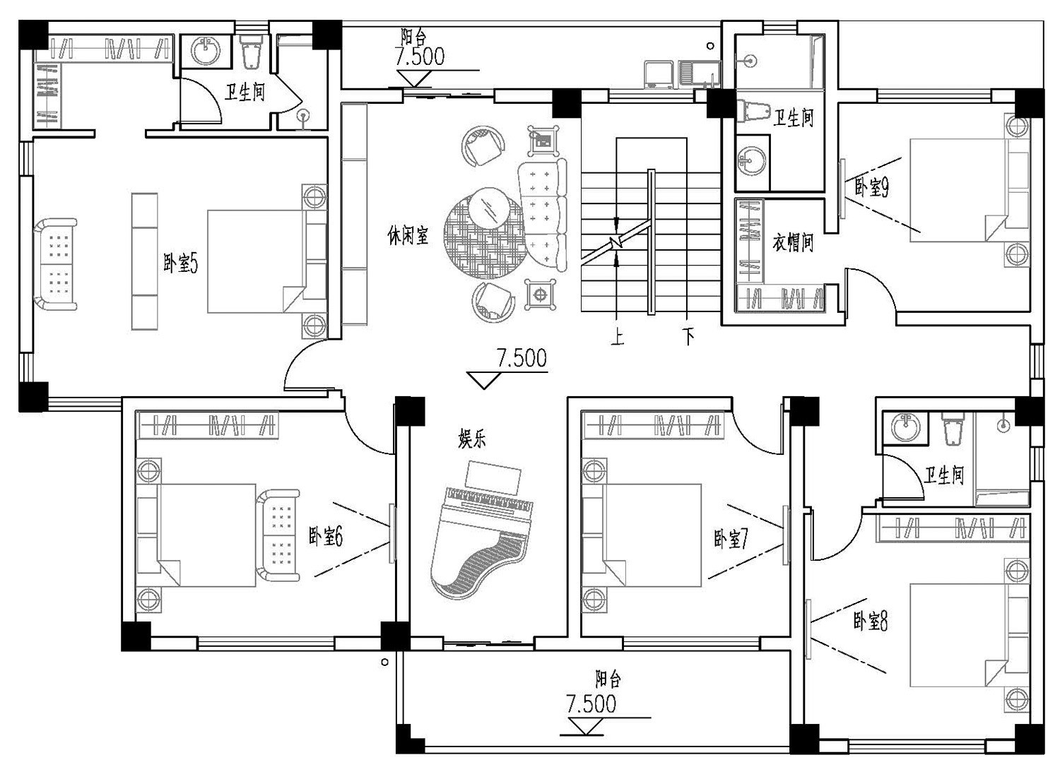
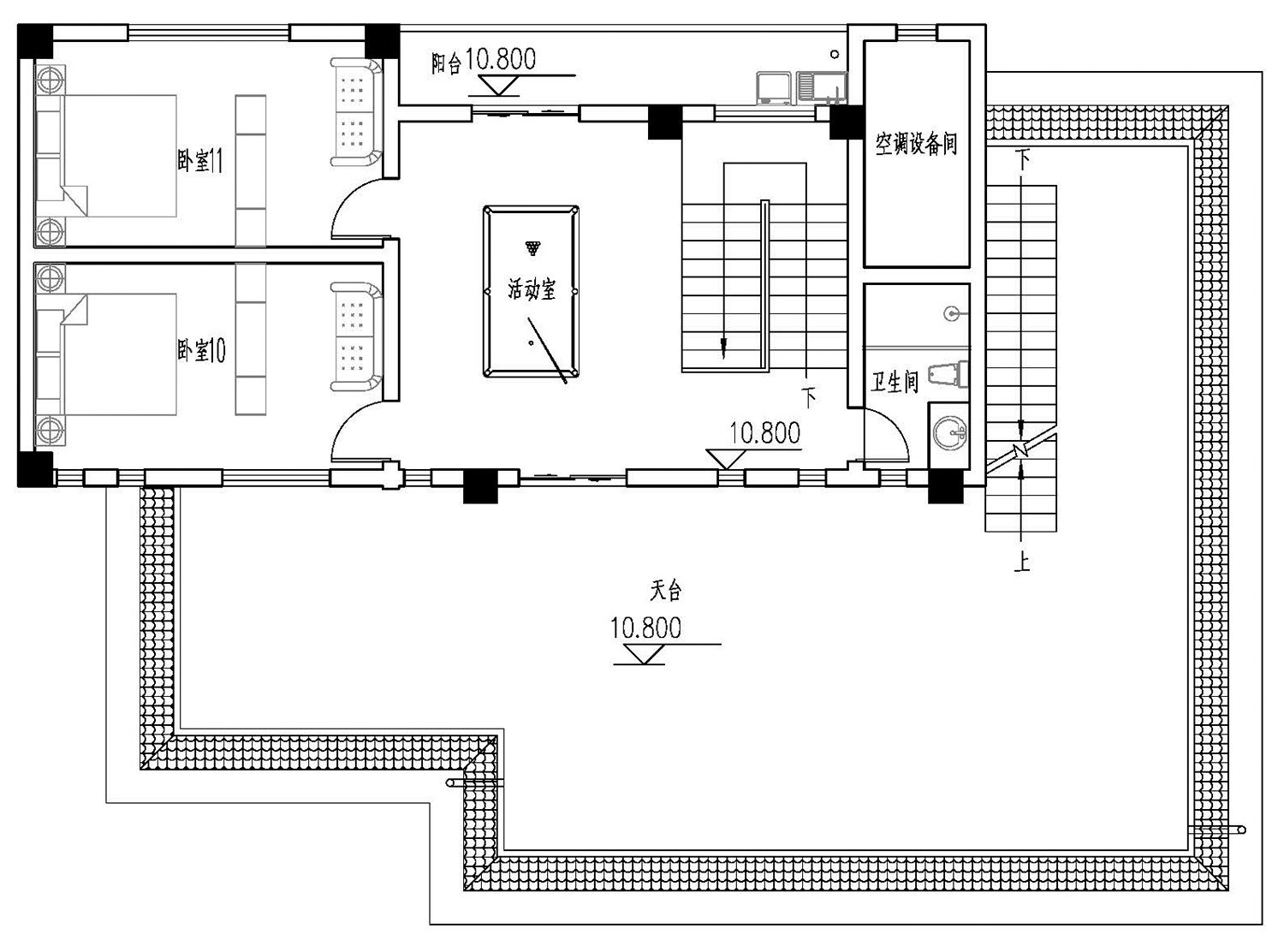
现代别墅也能大气时尚,今天推荐的这款="://www.lemeizhai.com/Picture.asp?PicClassID=91" target="_self" style="font-size: 24px; text-decoration: underline;">三层别墅设计,主体造价:105.0~110.0万,大落地窗非常漂亮。内部布局宽敞漂亮是一款不可多得农村自建别墅设计图。

别墅层数: 三层
别墅风格: 现代
占地面积:310㎡
开 间:15.2m
进 深:20.4m
建筑占地:15.2m×20.4m
建筑面积:637㎡
建筑结构:框架结构

主体设计:

客厅、餐厅、厨房、卧室、公卫、阳台、露台。

。


转载请注明出自轩鼎别墅设计:://www.lemeizhai.com/index.asp