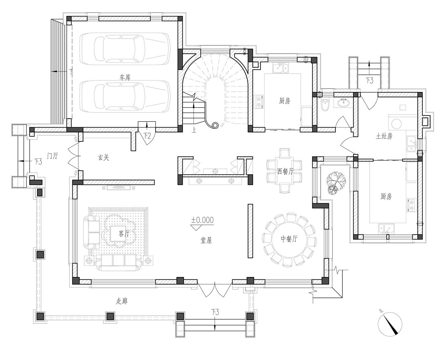
兄弟之间,家人之间,夫妻之间,朋友之间都需要相互理解,相互体谅,夫妻之间更需要如此只有这样才能家庭和睦。今天小编给大家推荐的是一款豪华的欧式="://www.lemeizhai.com/Picture.asp?PicClassID=91" target="_self" style="font-size: 24px; text-decoration: underline;">三层别墅设计,外观漂亮豪华,内部布局宽敞舒适有车库,土灶共三个门口。

别墅层数: 三层
别墅风格: 欧式
占地面积:308㎡
开 间:19.9m
进 深:15.5m
建筑占地:19.9m×15.5m
建筑面积:598㎡
主体造价:63.4~68.4万
建筑结构:框架结构


主体设计:

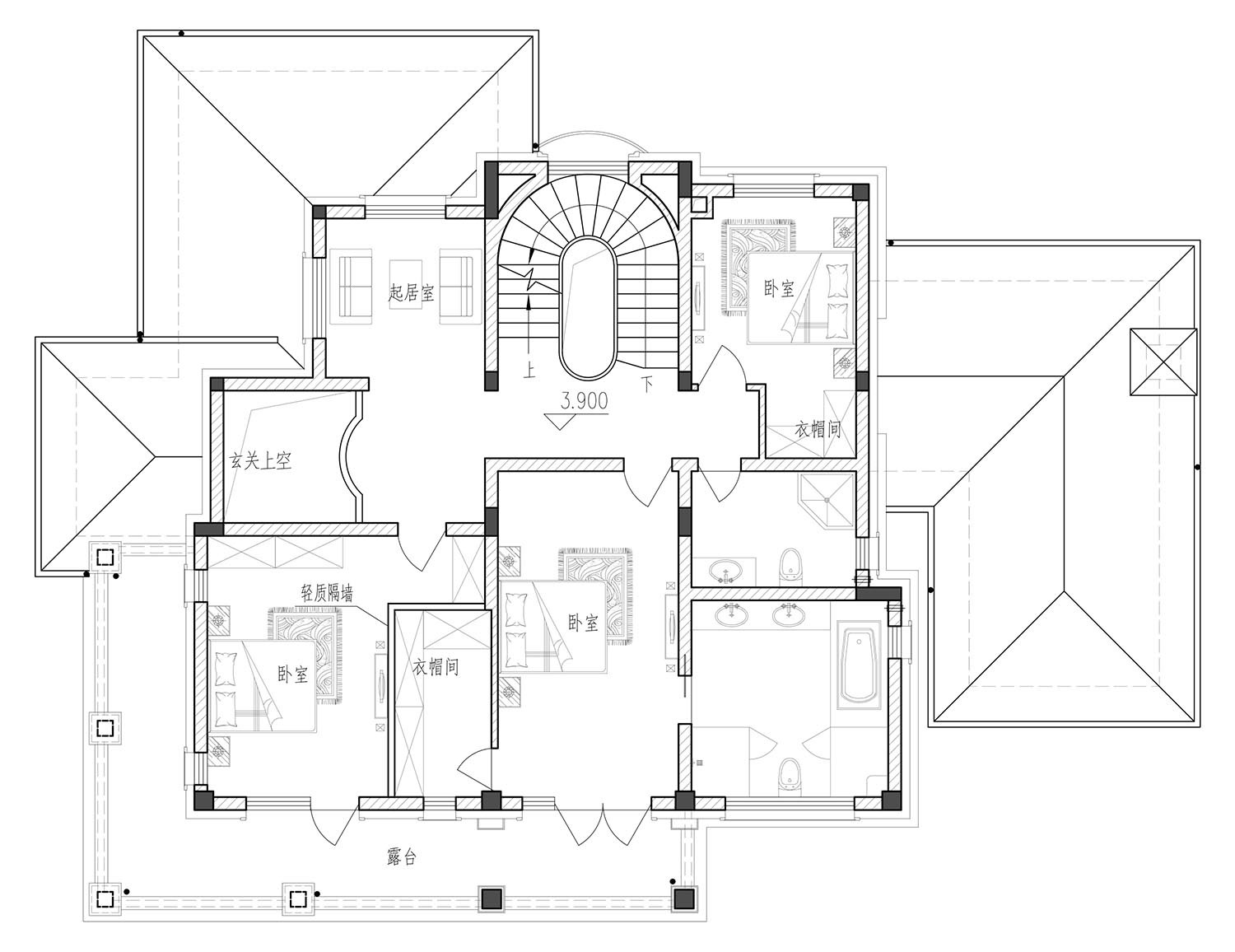
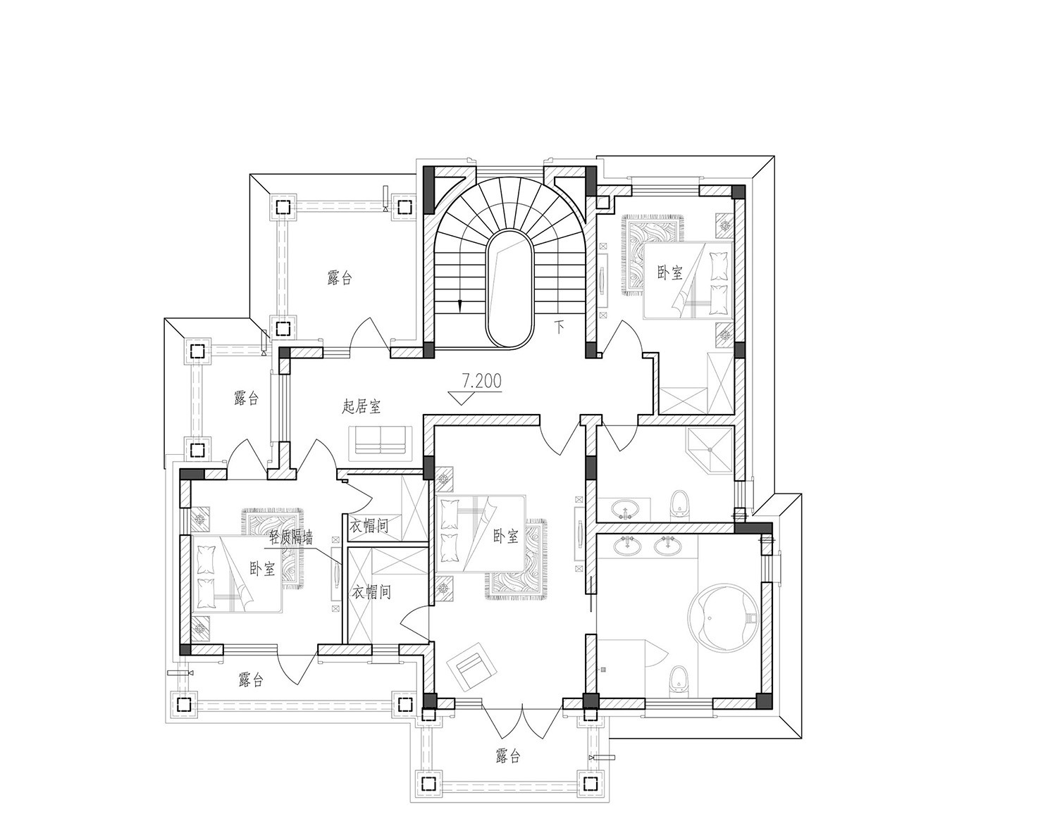
客厅、餐厅、厨房、卧室、公卫、阳台、露台。

。


转载请注明出自轩鼎别墅设计:://www.lemeizhai.com/index.asp