今天推荐="://www.lemeizhai.com/search.asp?SearchType=Software&imageField.x=33&imageField.y=42&SearchKey=%B6%FE%B2%E3%B0%EB" target="_self" style="font-size: 24px; text-decoration: underline;">二层半别墅设计,这是一款山东吕总私人订制的双拼别墅设计,这款别墅经典的米黄色真石漆和分割线有种别样的秩序美,铁质围栏彰显欧式别墅的风尚。要说价钱嘛,不便宜!接近70万这还是主体造价,这还不算杂七杂八的装修费

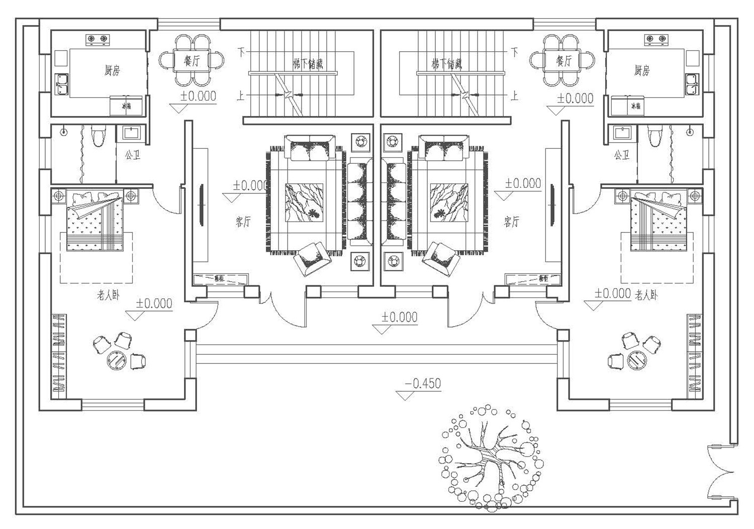
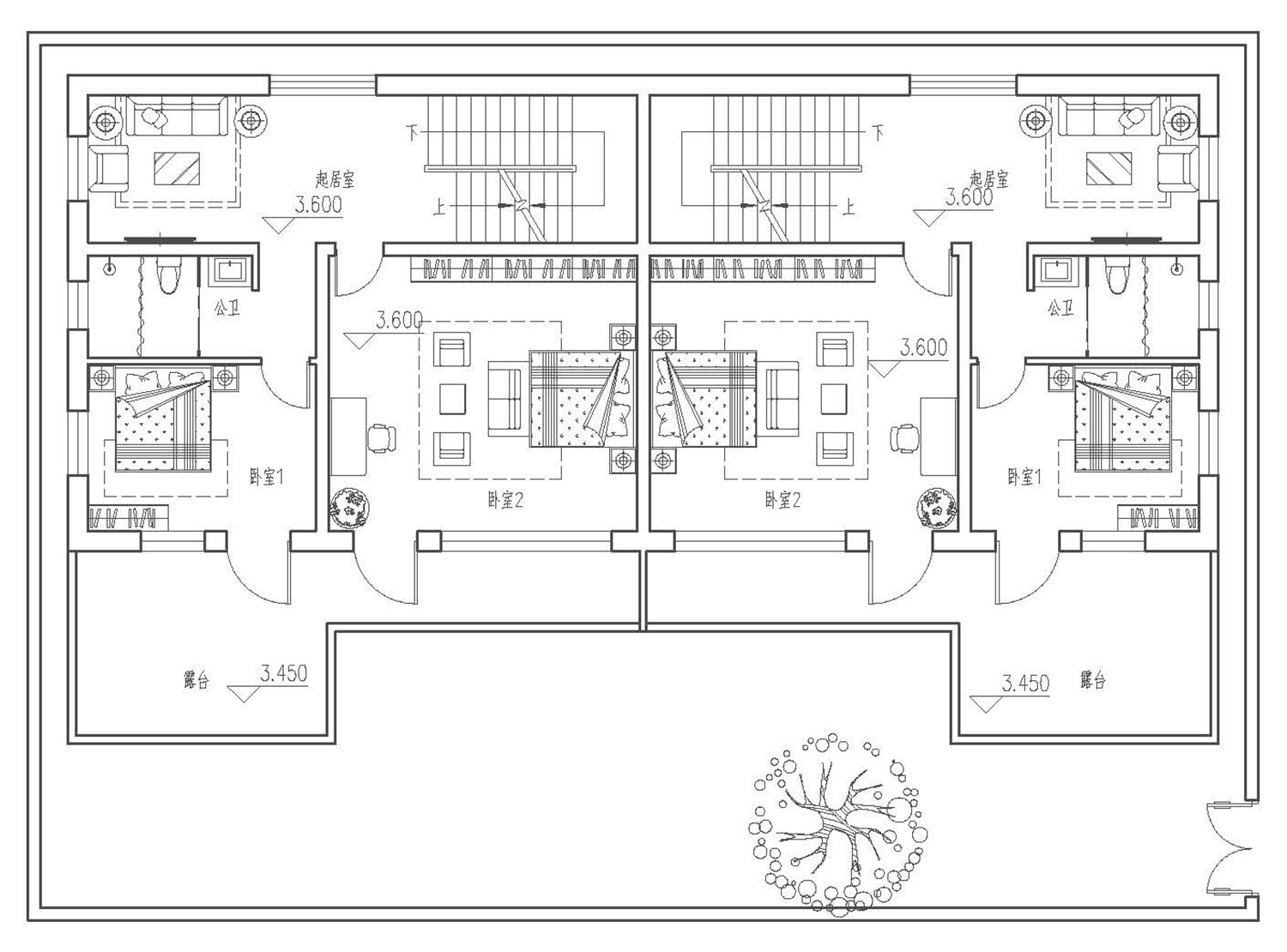
别墅层数:二层半
别墅风格: 现代
占地面积:268㎡
开 间:21.5m
进 深:12.5m
建筑占地:21.5m×12.5m
建筑面积:443㎡
主体造价:62.0~67.0万
建筑结构:砖混结构


主体设计:

客厅、餐厅、厨房、卧室、公卫、阳台、露台。

。
转载请注明出自轩鼎别墅设计:://www.lemeizhai.com/index.asp