人这一辈子不一定家财万贯,也要有套宜居房子,不一定富丽堂皇,也要有个漂亮舒适的家。今天推荐一款舒适漂亮的现代别墅,这款别墅是卢总私人订制的="://www.lemeizhai.com/Picture.asp?PicClassID=88" target="_self" style="font-size: 24px; text-decoration: underline;">二层别墅设计,别墅没有那么华丽,但漂亮清新的劲儿让人喜爱。这款别墅是美国卢先生的私宅,主体造价按国内算最高不超过80万。想要更多图纸进入官网查看

别墅层数: 二层
别墅风格:现代
占地面积:230㎡
开 间:17.1m
进 深:13.5m
建筑占地:17.1m×13.5m
建筑面积:461㎡
主体造价:68.7~73.7万
建筑结构:砖混结构


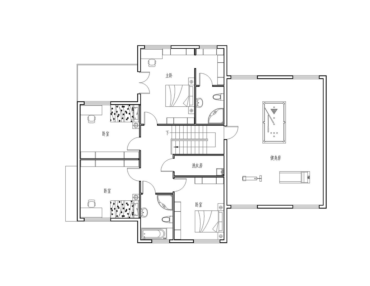
主体设计:

客厅、餐厅、厨房、卧室、公卫、阳台、露台。

。
转载请注明出自轩鼎别墅设计:://www.lemeizhai.com/index.asp