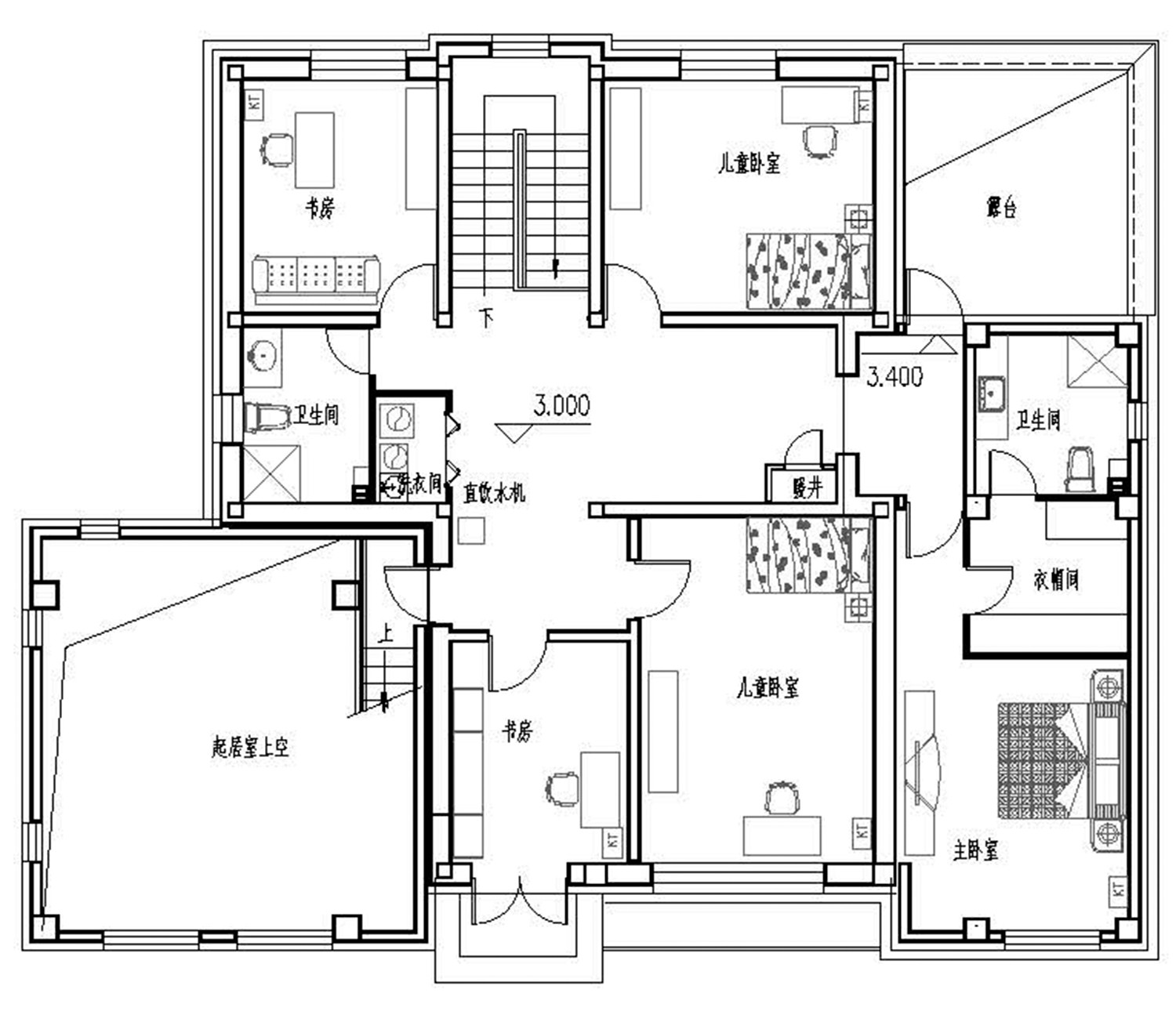
今天给大家推荐一款="://www.lemeizhai.com/Picture.asp?PicClassID=88" target="_self" style="font-size: 24px; text-decoration: underline;">二层小别墅,说是小别墅其实也不小,这是一款山东孙总定制的现代别墅,真石漆和文化石都是基本的样式,别墅的内部布局很不错,有露台还有挑空客厅,别墅空间感很棒不局促,厨房很大,二楼空间也很足哦,因为这是框架结构。

别墅层数: 二层
别墅风格: 现代
占地面积:481㎡
开 间:20.5m
进 深:23.5m
建筑占地:20.5m×23.5m
建筑面积:438㎡
主体造价:55.0~60.0万
建筑结构:框架结构


主体设计:

客厅、餐厅、厨房、卧室、公卫、阳台、露台。

。
转载请注明出自轩鼎别墅设计:://www.lemeizhai.com/index.asp