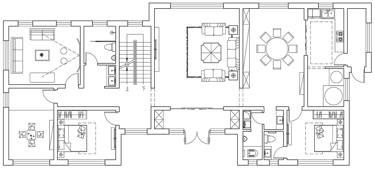
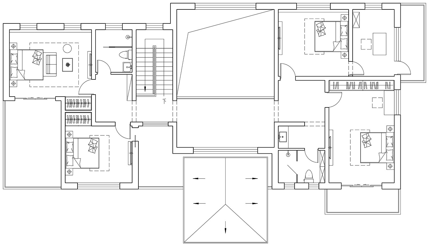
房子是用来住的,不需要太过华丽,适当的设计才能让你住上漂亮舒适的好别墅。小编今天推荐的这款别墅绝对是好别墅!这是一款占地2="://www.lemeizhai.com/Picture.asp?type=2&par2=201-300%C6%BD%B7%BD&flag=y&par3=&par4=&par5=&PicClassID=88&sort=" target="_self" style="font-size: 24px; text-decoration: underline;">00平方房子设计图,简洁漂亮的设计,文化石和真石漆是绝配!再说说内部构造,这款别墅内部构造可以说很棒,卧室基本不冲着客厅,厨房旁边就是储藏室还有柴火房非常实用。

别墅层数: 二层
别墅风格: 欧式
占地面积:200㎡
开 间:25m
进 深:11m
建筑占地:25m×11m
建筑面积:511㎡
主体造价:75.0~80.0万
建筑结构:砖混结构

主体设计:

客厅、餐厅、厨房、卧室、公卫、阳台、露台。

。
转载请注明出自轩鼎别墅设计:://www.lemeizhai.com/index.asp