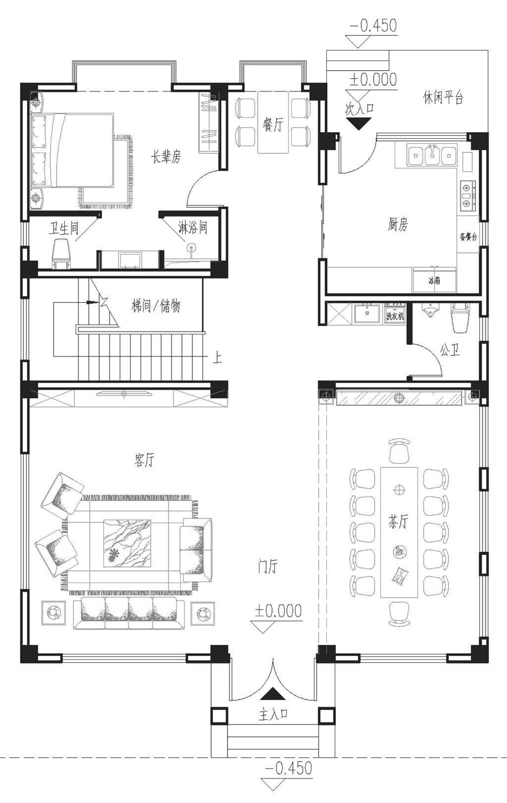
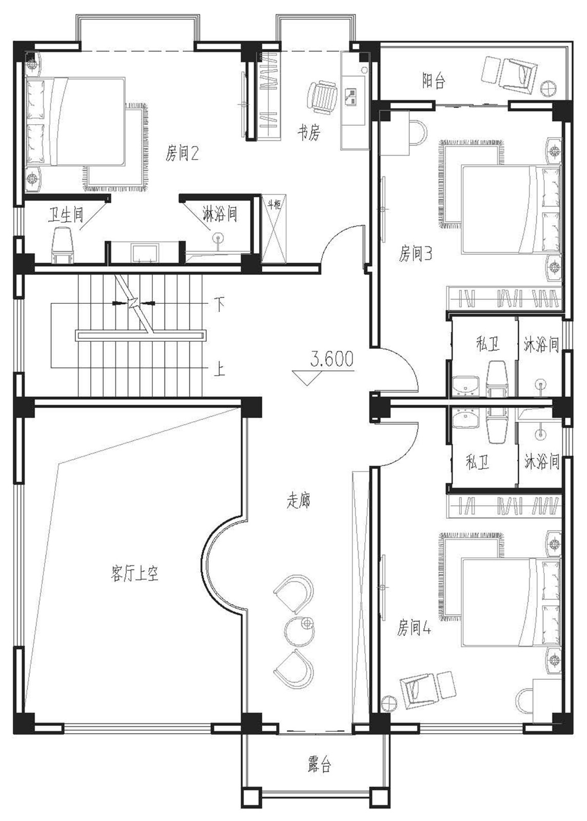
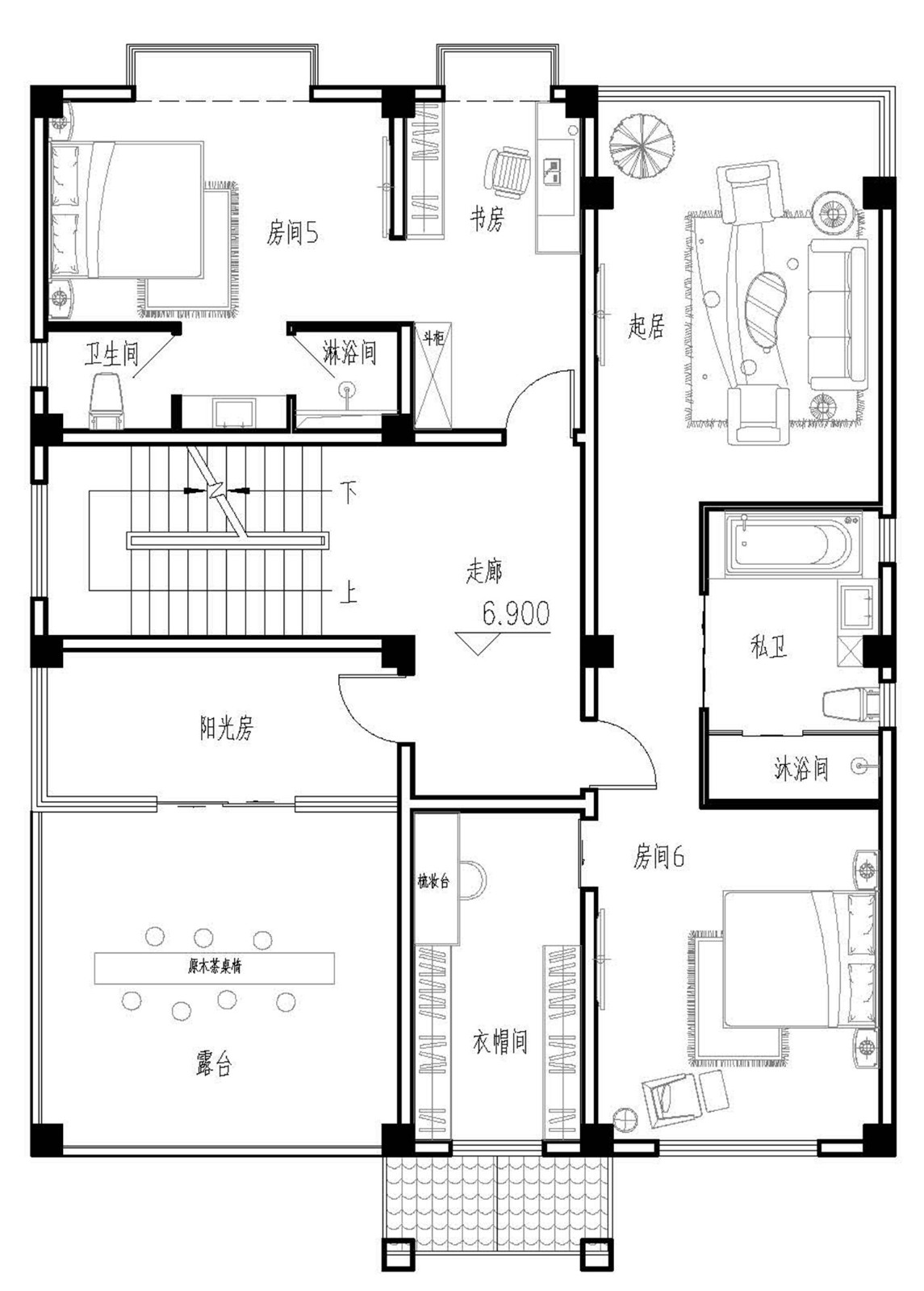
简约的设计比花里胡哨的设计更能让人喜爱,小编推荐的别墅是福建刘总私人订制的简约="://www.lemeizhai.com/Picture.asp?PicClassID=91" target="_self" style="font-size: 24px; text-decoration: underline;">三层别墅设计方案,这款别墅没有特别花哨的装饰,整体看起来简约大方,外墙全部都用的真石漆。别墅设计有大落地窗,客厅是挑空的室内明亮宽敞,几乎每一层都有淋浴室和厕所,方便了日常生活的需求。


别墅层数: 三层
别墅风格: 欧式
占地面积:158㎡
开 间:11.3m
进 深:14m
建筑占地:11.3m×14m
建筑面积:421㎡
主体造价:58.0~63.0万
建筑结构:框架结构


主体设计:

客厅、餐厅、厨房、卧室、公卫、阳台、露台。


。
转载请注明出自轩鼎别墅设计:://www.lemeizhai.com/index.asp