小时候的我们,总是向往着大城市,向往着那里的繁华热闹,川流不息,总觉得老家太过安静平淡,长大后才发现老家才是最好的归宿,那里有我们最爱的人。
两款农村别墅设计图,配有车库的设计,农村自建房的标配。准备建房的朋友不要错过哦!
农村别墅设计图01
1.主体毛坯参考造价:30-40万
2.占地面积:149.43平方米
3.建筑面积:298.86平方米
4.开间12.95米,进深12.5米
5.砖混结构,建筑高9.4米



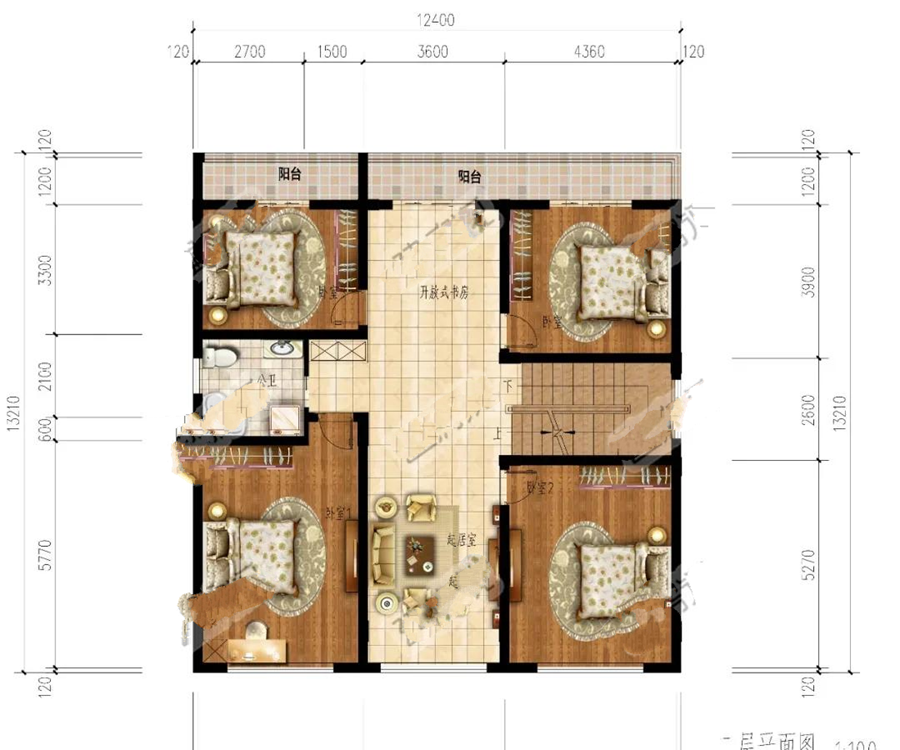
农村别墅设计图02
1.主体毛坯参考造价:43-53万
2.占地面积:135平方米
3.、建筑面积:424.3平方米
4.开间12.4米,进深10.97米
5.框架结构,建筑高度13.05米



