您好,欢迎访问轩鼎房屋图纸网,轩鼎建筑为您提供新农村房屋设计图、别墅设计图纸以及别墅定制设计与咨询服务。
 
 
  热门搜索:自建房 别墅设计 房屋设计图   
网站首页 图纸大全 定制设计 作品展示 建房图文 联系我们
一层房屋图纸
二层房屋图纸
三层房屋图纸
四层以上图纸
双拼房屋图纸
其他建筑图纸
 
 
 您的位置:首页 ->> 建房图文 ->> 小面积照样盖自建别墅,三层自建别墅
 
 

小面积照样盖自建别墅,三层自建别墅

发布时间:2022/7/2 15:30:56 点击数: 1669次 

f87b785ea12042e7acee6b0d926ae5c8.jpg

本套自家别墅是简约时尚的设计图,设计师将外观立面采用米黄色真石漆进行喷绘,底部垫高了地基,采用黄色外墙涂料装饰,方便日常的打理,也不易被雨水侵蚀,别墅多处细节体现设计感以及现代感十足,最后再加上棕色的双坡顶,暖色调的搭配,打造温馨的居家住所。

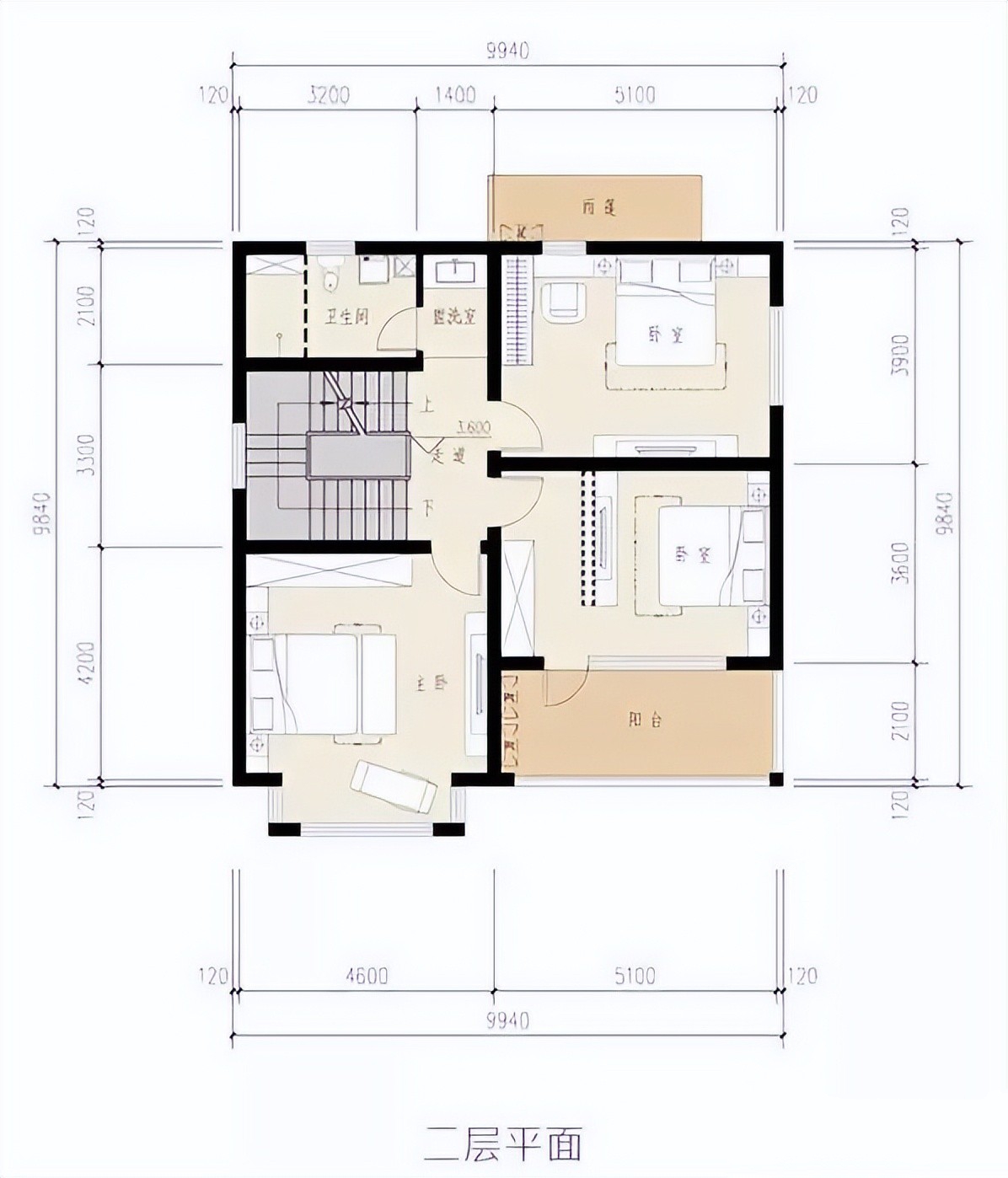
自建别墅平面图:

4f5af68318c9422291363c4fb91ef5f6.jpg

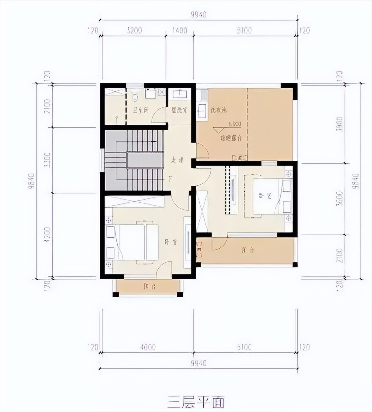
自建别墅平面图:

7ac88f7222334443980b8c86fc6f7cd4.jpg

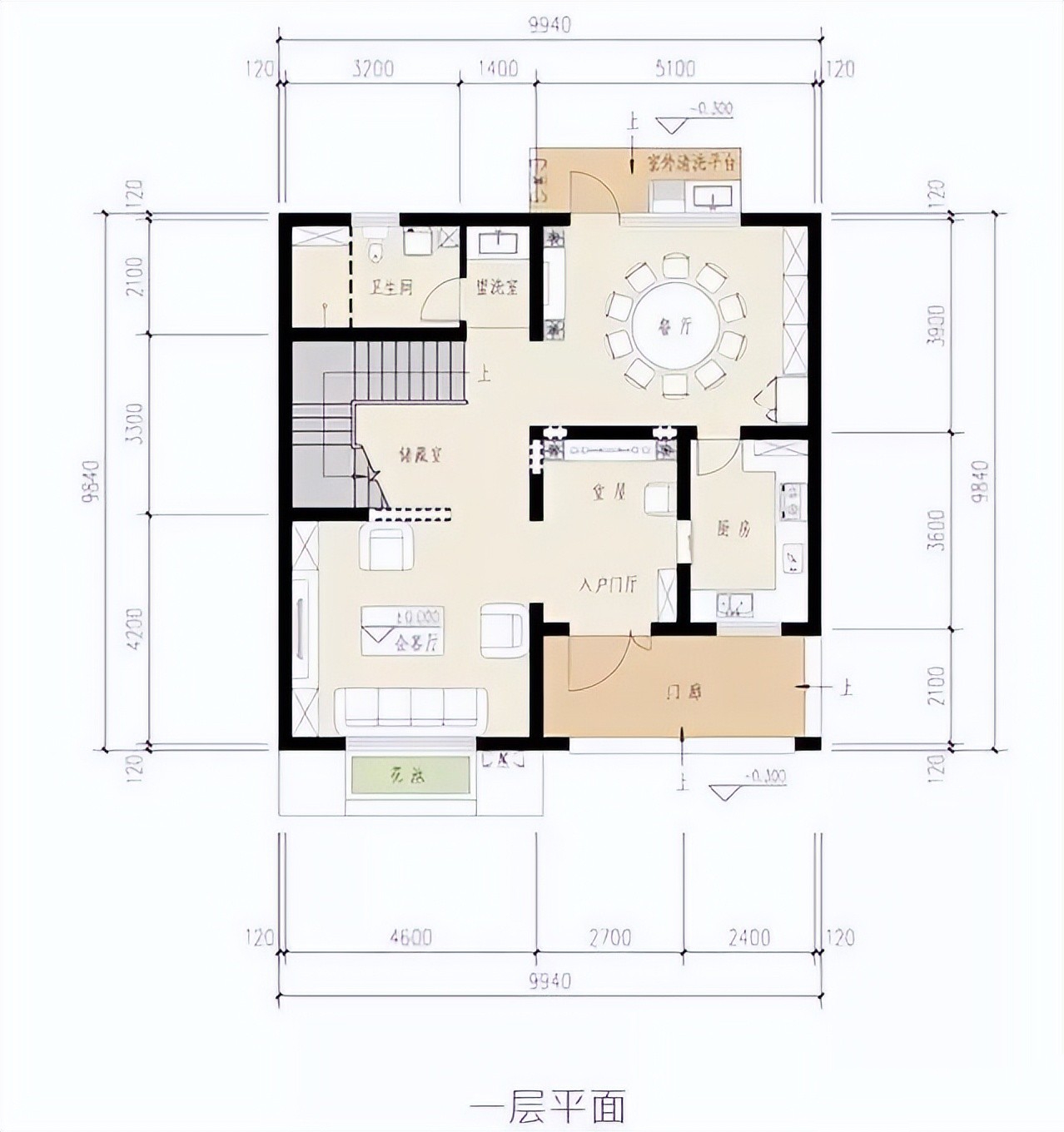
自建别墅平面图:

53e5e9a4573f4006a23d3fe1e0864e8d.jpg




 
· 即热式热水器优缺点(即热式电热...
· 建房就建这样的别墅
· 设计在建房中重要吗?是的,非常...
· 占地90㎡两层小别墅设计图(附农...
· 这座120层的房子是单独设计的。...
· 设计精美,实用性强的双拼二层别...
· 现代不缺典雅,实用不失美观
· 房子采光标准是什么(如何判断楼...
  关于我们 网站事务 帮助中心
客服热线:400-079-6579
客服QQ:10928711 10928755 10928799
地址:山东省潍坊财富大厦1801
 

预定须知
顾客必读
配送方式

 


Copyright 2016 www.lemeizhai.com All Rights Reserved ICP备案序号:鲁ICP备2026012448号-1
轩鼎房屋图纸 电 话:0536-3385581 3385582 传 真:0536-3385581 地 址:山东省潍坊财富大厦1801


keywords:房屋设计图 房屋设计图 农村房屋设计图 农村房屋设计图 建房图文