科技在不断的发展,社会也在不断往前进步。与我们生活息息相关的衣食住行水平都在逐步提高。
对于生活在农村人来说,农村环境好,空地也很多,所以他们自建喜欢的房子款式。也正如此,农村自建房越来越多,一栋又一栋楼房都有自己不一样的乡村风景。下面就跟轩鼎建筑小编一起来看一看这两栋自建房平面图吧!
第一款:现代住宅二层自建房平面图,舒适户型设计

此款110平方米二层自建房设计图,户型方正,别墅的外立面主要采用米黄色搭配乳白色面砖装饰,属于二段式经典设计。能大家感受到别墅的细节程度。二层阳台处设计欧欧式罗马柱,为家人起到了很好的防护作用,同时也美观。

占地面积:11.3m*10m,110平方米左右
建筑层高:二层;
建筑高度:9.9米(含屋顶);
功能:
一层户型:客厅、餐厅 、厨房、卧室、储藏室、卫生间;
二层户型:家庭室、卧室x4、书房、卫生间、阳台


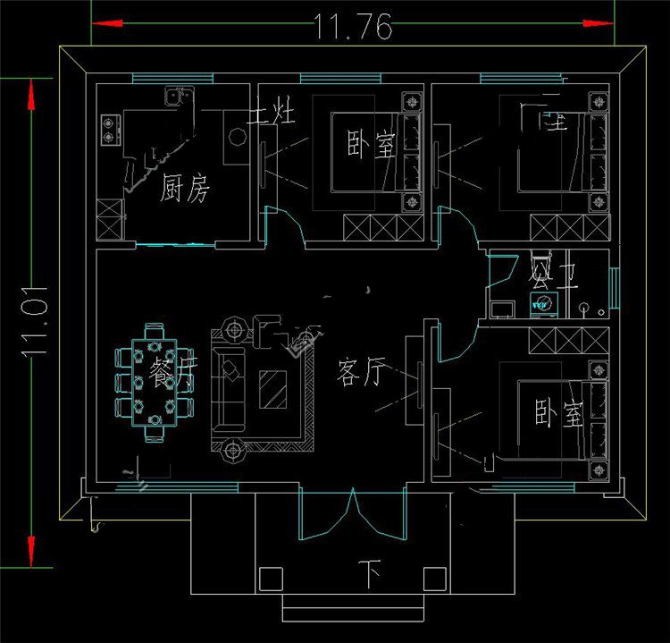
第二款:农村小别墅自建房设计图平房设计图,简约风格设计

本款农村小别墅自建房设计图,外观造型设计简约,造价成本低,户型方案非常实用。不输城市的商品房。这款设计简单、舒适,最重要的是省钱!
室内布局设计的很简单,就是常见布局配备,作为以后的养老房,建这栋是最合适不过的了,冬天安装暖气,解决家里的老人担心老寒腿的问题!这样的自建房设计图才是最适合我们农村人自建生活!
占地面积:11.76m*11.01m,113.4平方米
建筑层高:一层
建筑高度:6.583米(含屋顶);
功能:
一层户型:客厅、厨房、餐厅、卧室x3、卫生间
