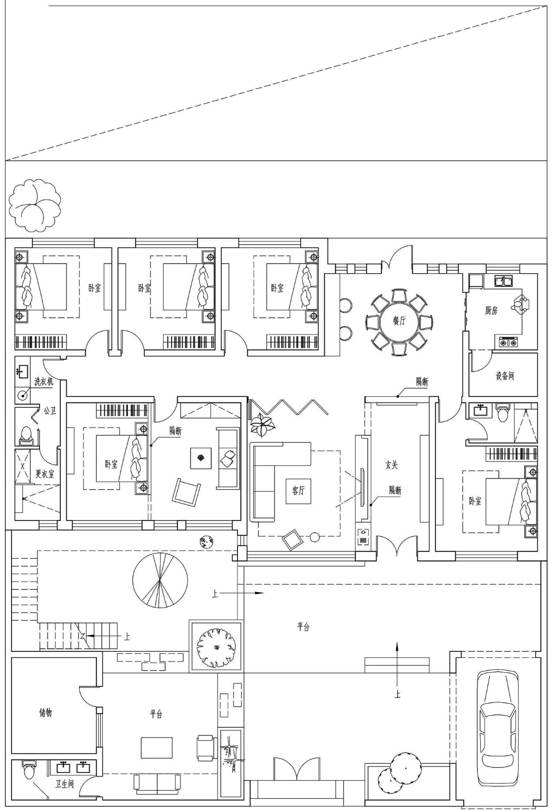
建房子不追求奢华才是普通人正确的选择,舒适便捷漂亮才是选择建房首选,一层的房子很适合大多数人,不是所有地方都适合建二层。今天给大家推荐一套="://www.lemeizhai.com/Picture.asp?PicClassID=85" target="_self">现代农村建房设计图,这套房子非常现代,有独立的车库和储物间,特别适合农村环境,客厅采光足室内不显昏暗,平顶的房屋设计方便晾晒粮食或搭建阳光房当花房来用。


别墅层数: 一层
别墅风格: 现代
占地面积:262㎡
开 间:21m
进 深:12.5m
建筑占地:21m×12.5m
建筑面积:293㎡
主体造价:42.0~47.0万
建筑结构:砖混结构

主体设计:
客厅、餐厅、厨房、卧室、公卫、阳台、露台。


。
转载请注明出自轩鼎自建房:://www.lemeizhai.com/