漂亮的房子永远是好房子,能建好看的房子绝对建不差,漂亮大气光宗耀祖。今天给大家推荐的是一款大气漂亮的="://www.lemeizhai.com/Picture.asp?PicClassID=91" target="_self">三层别墅设计,设计有车库别墅整体非常大气,入户就是客厅,厨房在客厅旁边,每一个区域都不显的矮小拥挤非常宽敞,三层是露台区非常适合晾晒。


别墅层数: 三层
占地面积:254㎡
开 间:19.4m
进 深:13.1m
建筑占地:19.4m×13.1m
建筑面积:560㎡
主体造价:90.0~95.0万
建筑结构:框架结构


主体设计:

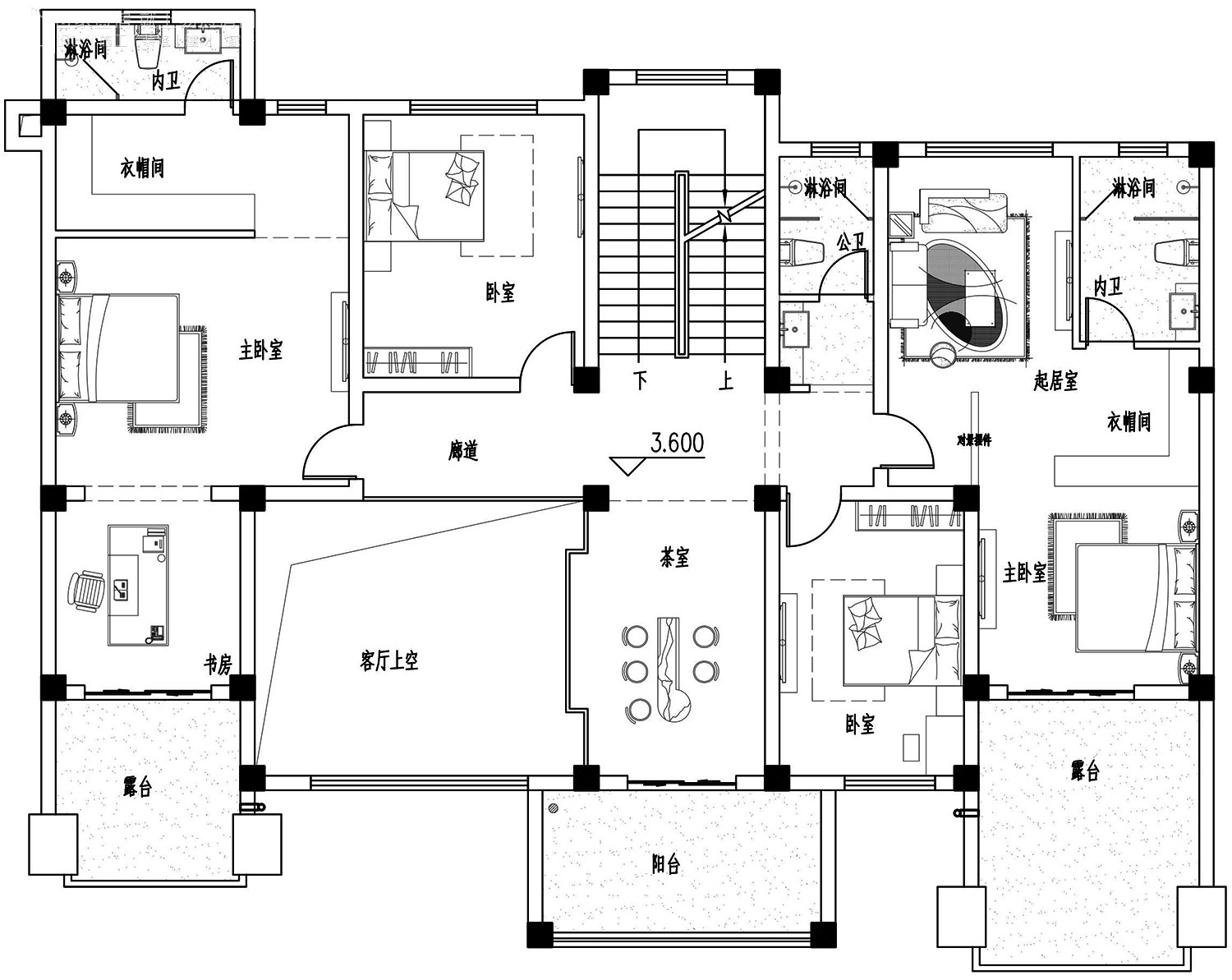
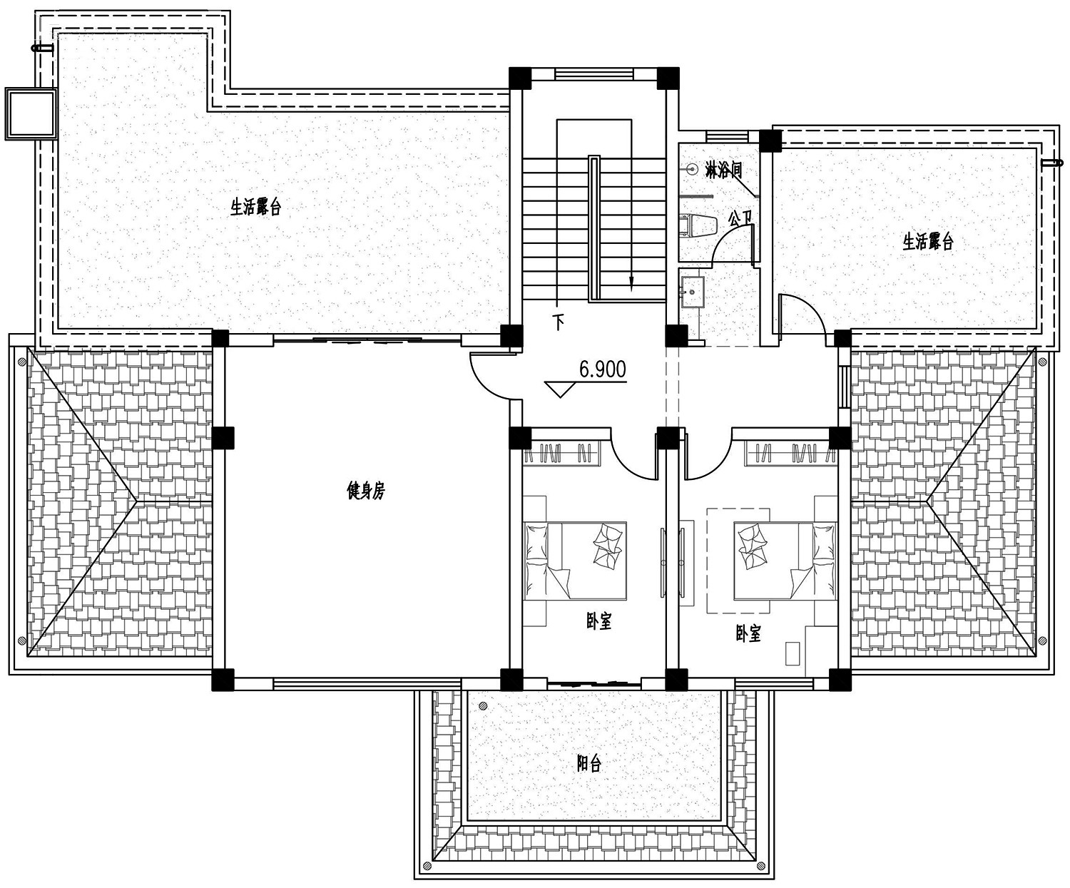
客厅、餐厅、厨房、卧室、公卫、阳台、露台。


。
转载请注明出自轩鼎自建房:://www.lemeizhai.com/