您好,欢迎访问轩鼎房屋图纸网,轩鼎建筑为您提供新农村房屋设计图、别墅设计图纸以及别墅定制设计与咨询服务。
 
 
  热门搜索:自建房 别墅设计 房屋设计图   
网站首页 图纸大全 定制设计 作品展示 建房图文 联系我们
一层房屋图纸
二层房屋图纸
三层房屋图纸
四层以上图纸
双拼房屋图纸
其他建筑图纸
 
 
 您的位置:首页 ->> 建房图文 ->> 开间10米小别墅,配上挑空的客厅,每天回家就是享受
 
 

开间10米小别墅,配上挑空的客厅,每天回家就是享受

发布时间:2022/7/6 14:56:50 点击数: 2745次 

时至今日,不同风格的别墅百花齐放,有人钟爱国外建筑的轻奢之美,也有人向往中式的风花雪月。

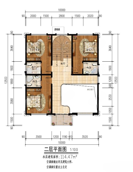
下面是私人定制的三层新中式小别墅设计,开间10米小别墅,配上挑空的客厅,每天回家就是享受!

af185c4b2a65458a94714963f3a90eeb_magic.jpg


1、别墅楼层:三层

2、主体毛坯参考造价:31-41万

3、占地面积:114.47平方米

4、建筑面积:309.14平方米

5、开间10米,进深12.5米

6、异型框架结构,建筑高12.85米


全景展示图




平面布局图



转载请注明出自轩鼎自建房:://www.lemeizhai.com/

 
· 有钱就应该在老家安排一套别墅,...
· 二层现代别墅,农村建房都选它
· 刷大白墙有没有甲醛(刷白墙多久...
· 漂亮的现代二层农村别墅设计
· 农村自建房如何兼顾美观与实用?...
· 新中式风格设计的农村别墅,宽1...
· 现代风格的农村别墅设计,相信你...
· 办公室风水植物怎么选(办公室植...
  关于我们 网站事务 帮助中心
客服热线:400-079-6579
客服QQ:10928711 10928755 10928799
地址:山东省潍坊财富大厦1801
 

预定须知
顾客必读
配送方式

 


Copyright 2016 www.lemeizhai.com All Rights Reserved ICP备案序号:鲁ICP备2026012448号-1
轩鼎房屋图纸 电 话:0536-3385581 3385582 传 真:0536-3385581 地 址:山东省潍坊财富大厦1801


keywords:房屋设计图 房屋设计图 农村房屋设计图 农村房屋设计图 建房图文