一些发达的农村自建房争奇斗艳,什么三层的,四层的,欧式的,法式巴洛克的都有,真是眼花缭乱,回归本真的自建房反到成了极品!今天推荐的是一款一层="://www.lemeizhai.com/search.asp?SearchType=Software&imageField.x=34&imageField.y=34&SearchKey=%D0%C2%D6%D0%CA%BD" target="_self">新中式自建房设计,这套房子是传统样式的内部布局非常舒适,在外面看起来非常现代好看,造价便宜最高22万


别墅层数: 一层
别墅风格: 中式
占地面积:129㎡
开 间:13.6m
进 深:9.5m
建筑占地:13.6m×9.5m
建筑面积:133㎡
主体造价:17.0~22.0万
建筑结构:砖混结构

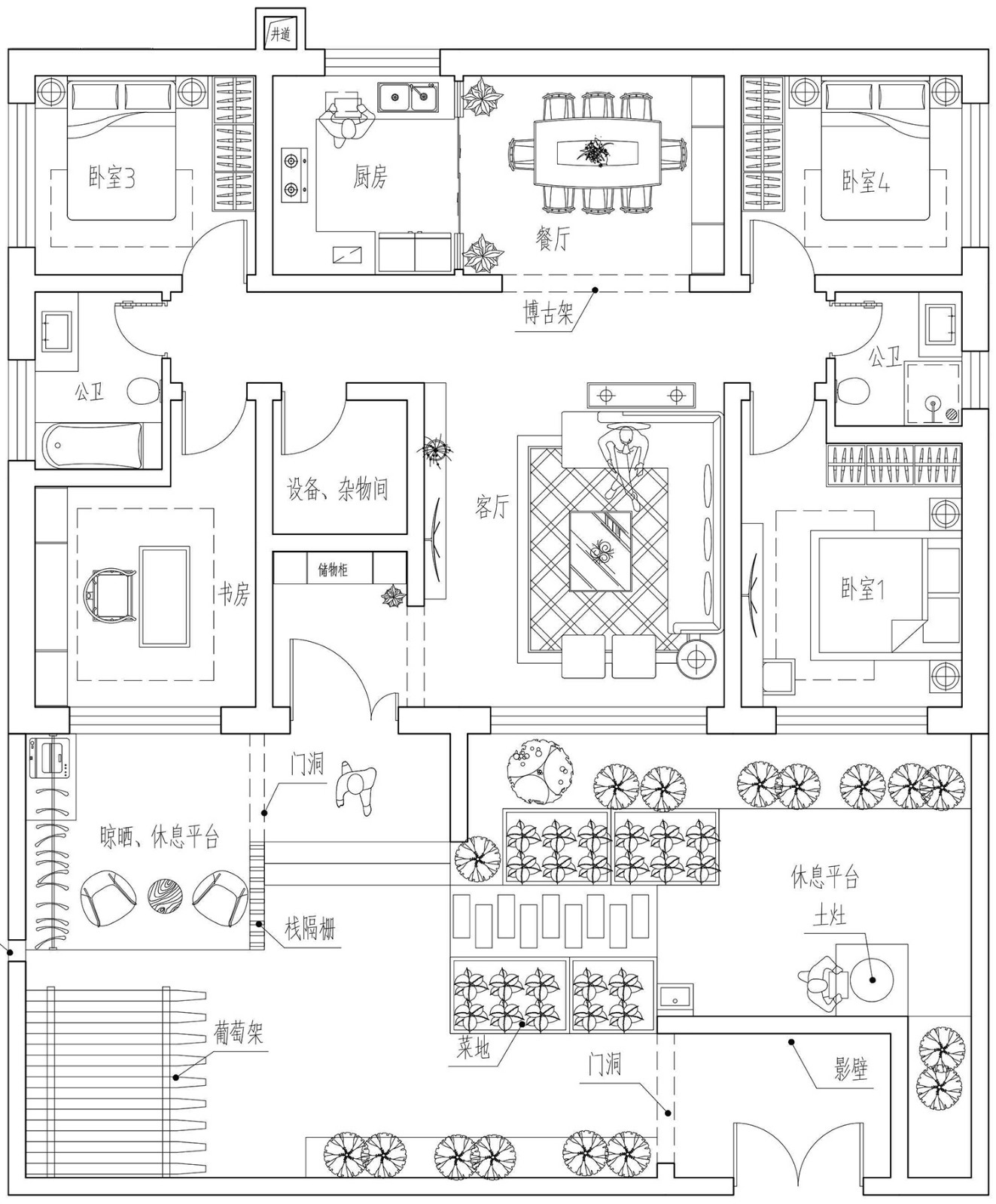
主体设计:

客厅、餐厅、厨房、卧室、公卫、阳台、露台。
。
转载请注明出自轩鼎自建房:://www.lemeizhai.com/