有关部门规定,农村自建房超过三层的需要指定的施工公司建造,不能私自建造,因为超过三层的一般的施工队无法安全建造,所以为了家人的安全一定按规定建房。今天推荐的是一款="://www.lemeizhai.com/Picture.asp?PicClassID=91" target="_self">三层别墅设计,大气豪华的外表非常顺眼,独特的窗口设计安全隐私采光良好。

别墅层数: 三层
别墅风格: 新中式
占地面积:233㎡
开 间:16.9m
进 深:13.8m
建筑占地:16.9m×13.8m
建筑面积:430㎡
主体造价:63.0~68.0万
建筑结构:砖混结构

主体设计:

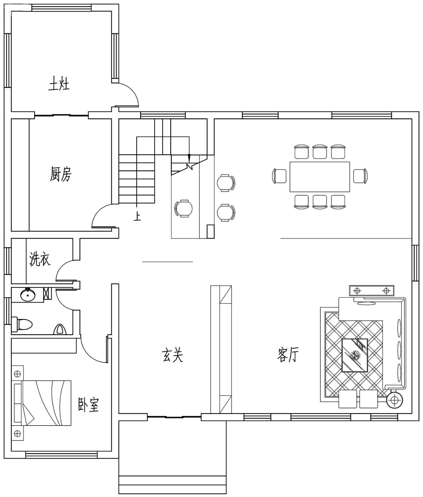
客厅、餐厅、厨房、卧室、公卫、阳台、露台。


。
转载请注明出自轩鼎自建房:://www.lemeizhai.com/