青砖的房子现在很少见了,有!也当文物保护了起来,乔家大院就是这样的房子虽然现代建不出来这样的房子,但仿古类型的还是能建起的。小编今天推荐的是一款二层仿古="://www.lemeizhai.com/Picture.asp?PicClassID=88" target="_self">新中式别墅设计,颇有晋商房屋的气质! 仿古的窗户非常漂亮小院宽敞好看。

别墅层数: 二层
别墅风格: 中式
占地面积:252㎡
开 间:14.1m
进 深:17.9m
建筑占地:14.1m×17.9m
建筑面积:313㎡
主体造价:45.0~50.0万
建筑结构:砖混结构


主体设计:

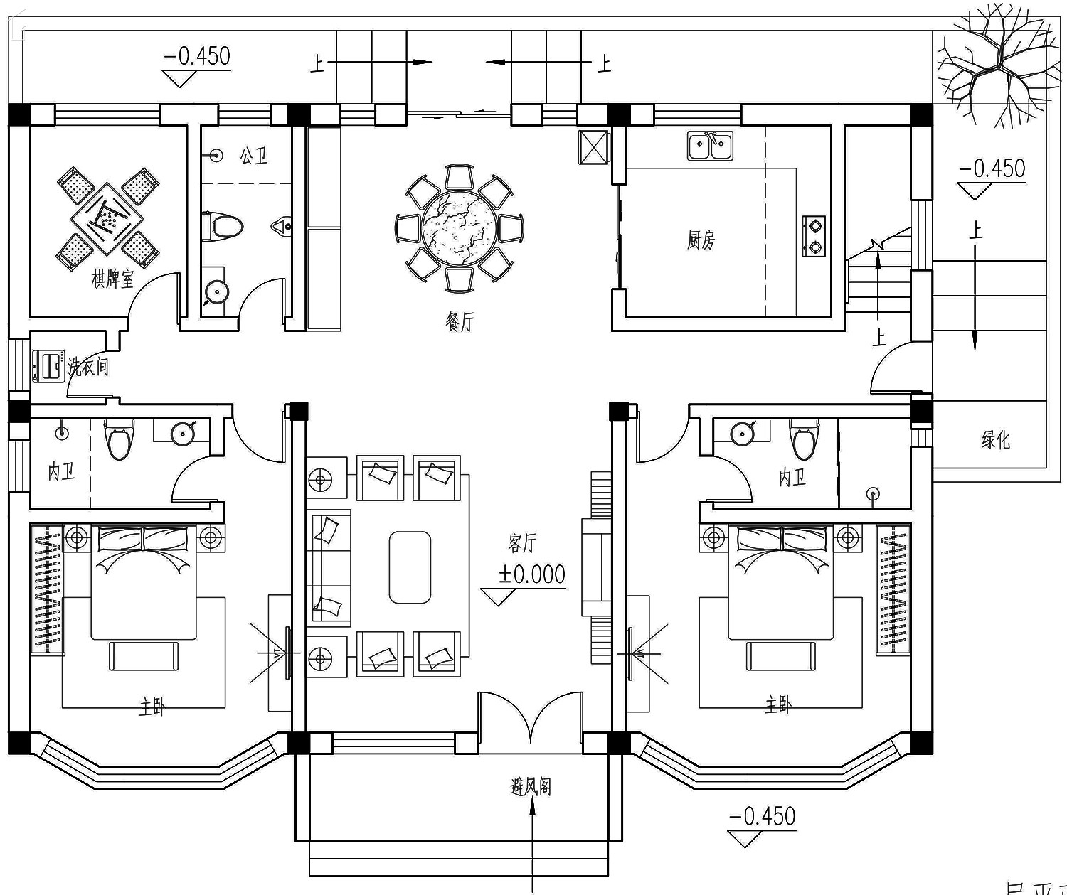
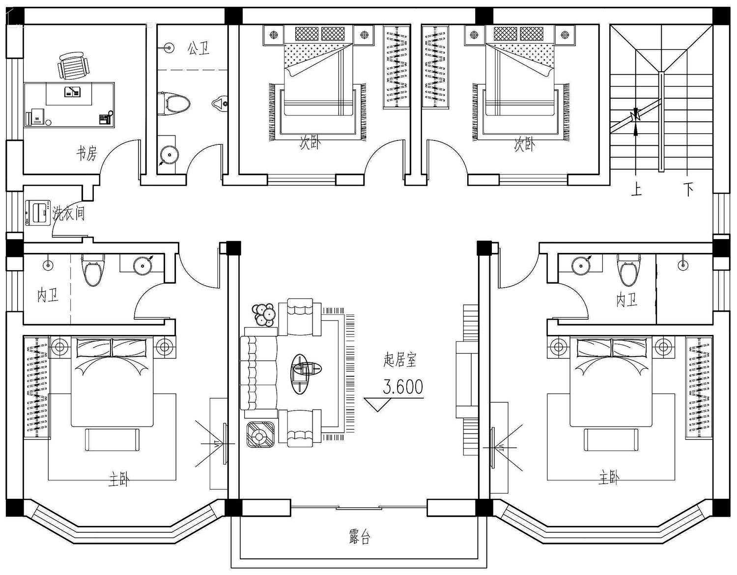
客厅、餐厅、厨房、卧室、公卫、阳台、露台。

。
转载请注明出自轩鼎自建房:://www.lemeizhai.com/