新中式的农村自建房非常漂亮,非常适合中国人,东方韵味的农村别墅相信很多中国人喜欢,这样的别墅建成了不比百万元级的豪华别墅差!今天推荐的是="://www.lemeizhai.com/Picture.asp?PicClassID=91" target="_self">三层别墅设计,这款别墅是新中式风格的,这套别墅整体采用虚实结合的设计手法,线条运用的简洁明了,在确保视觉效果简约清爽的同时,也使得整体效果达到沉稳与灵动的和谐统一,这套造价最高不超过50万,注:参考造价请以当地物价为准


别墅层数: 三层
别墅风格: 中式
占地面积:117㎡
开 间:11.7m
进 深:10m
建筑占地:11.7m×10m
建筑面积:266㎡
主体造价:38.0~43.0万
建筑结构:砖混结构


主体设计:

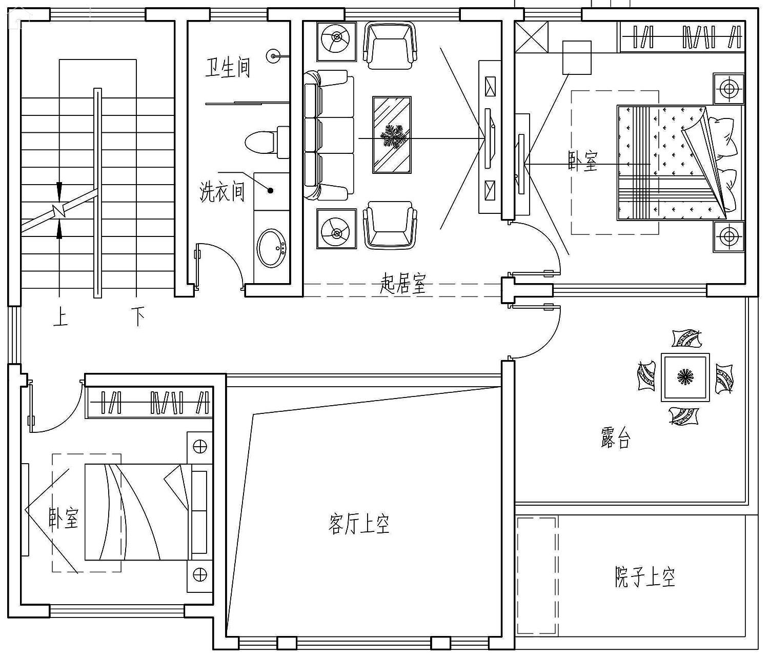
客厅、餐厅、厨房、卧室、公卫、阳台、露台。


。
转载请注明出自轩鼎自建房:://www.lemeizhai.com/