曾经农村地区都特别穷,房子都是土房子就连公路都是泥泞的,随着经济的发展农村也旧貌换新颜了,发展旅游产业种植特色农产品,不仅有了收入而且房子也建的漂亮,。今天给大家推荐的是一款现代二层别墅设计,这套别墅采用灰白两色增添差异感整体现代感十足,这样简约简单的造型非常符合现代人的审美。

别墅层数: 三层
别墅风格: 现代
占地面积:191㎡
开 间:12.5m
进 深:15.3m
建筑占地:12.5m×15.3m
建筑面积:342㎡
主体造价:50.0~55.0万
建筑结构:砖混结构

主体设计:

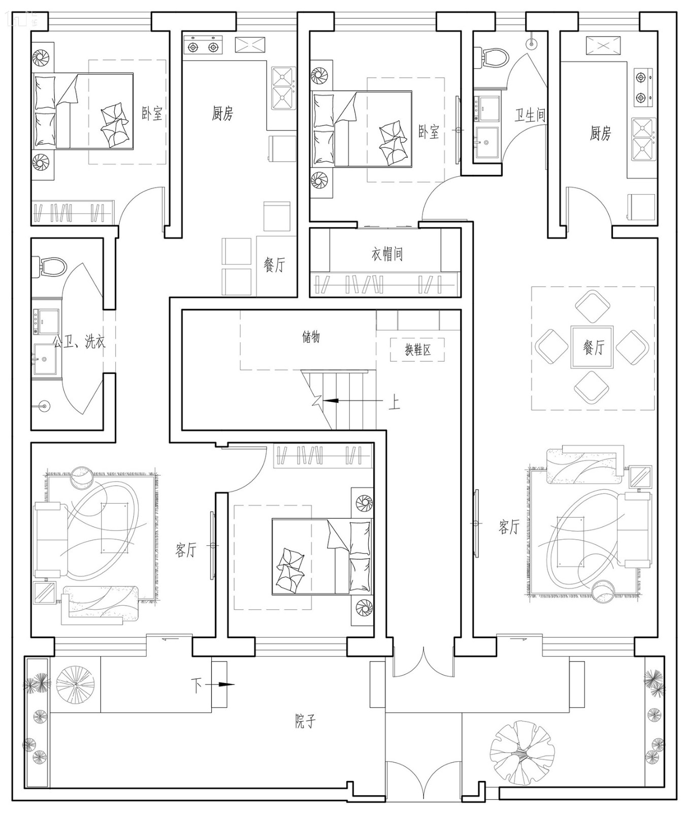
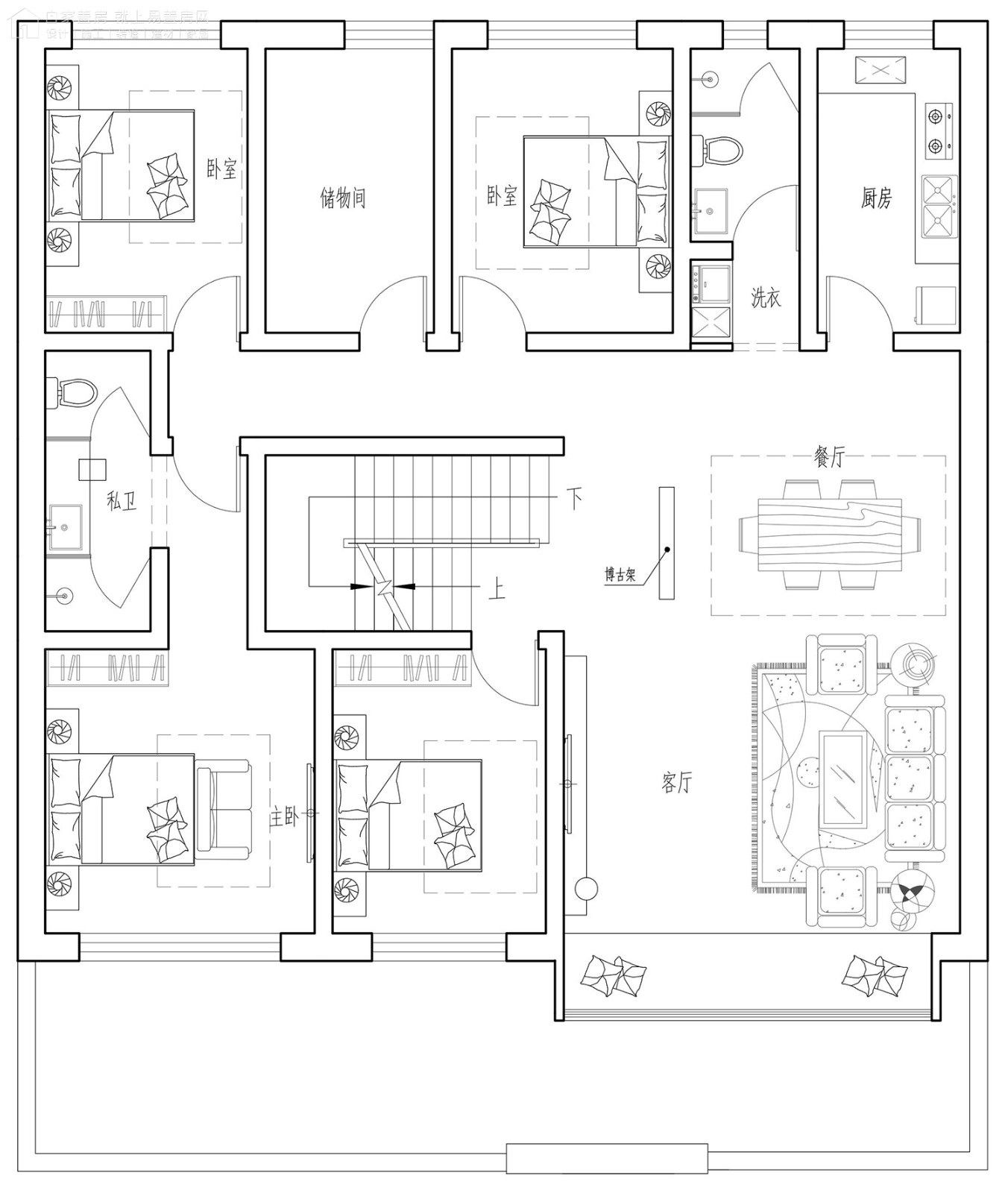
客厅、餐厅、厨房、卧室、公卫、阳台、露台。

。
转载请注明出自轩鼎自建房:://www.lemeizhai.com/