农村很适合建新中式现代田园自建别墅,这样的自建房以现代风格为基调,又融入新中式韵味和欧式别墅细节,大大增强了视觉感受,而且这种别墅可以随意搭配,中式、欧式、现代都可能占主导。今天推荐的这套="://www.lemeizhai.com/search.asp?SearchType=Software&imageField.x=44&imageField.y=40&SearchKey=%D0%C2%D6%D0%CA%BD" target="_self">新中式别墅设计是田园形式的立面起伏与体块划分,在视觉效果上形成了鲜明对比。

别墅层数: 三层
别墅风格: 新中式
占地面积:288㎡
开 间:18.5m
进 深:15.6m
建筑占地:18.5m×15.6m
建筑面积:448㎡
主体造价:65.0~70.0万
建筑结构:砖混结构


主体设计:

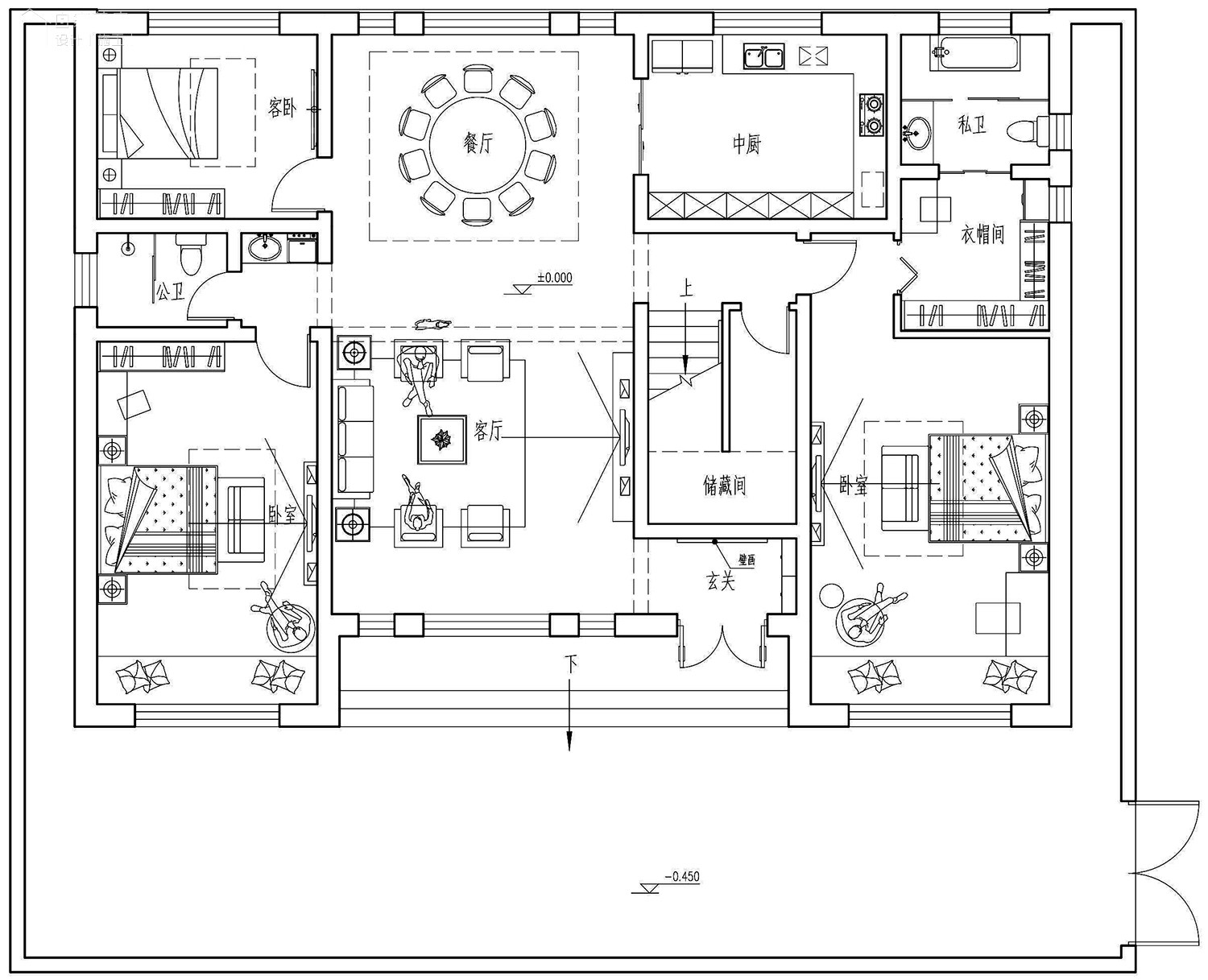
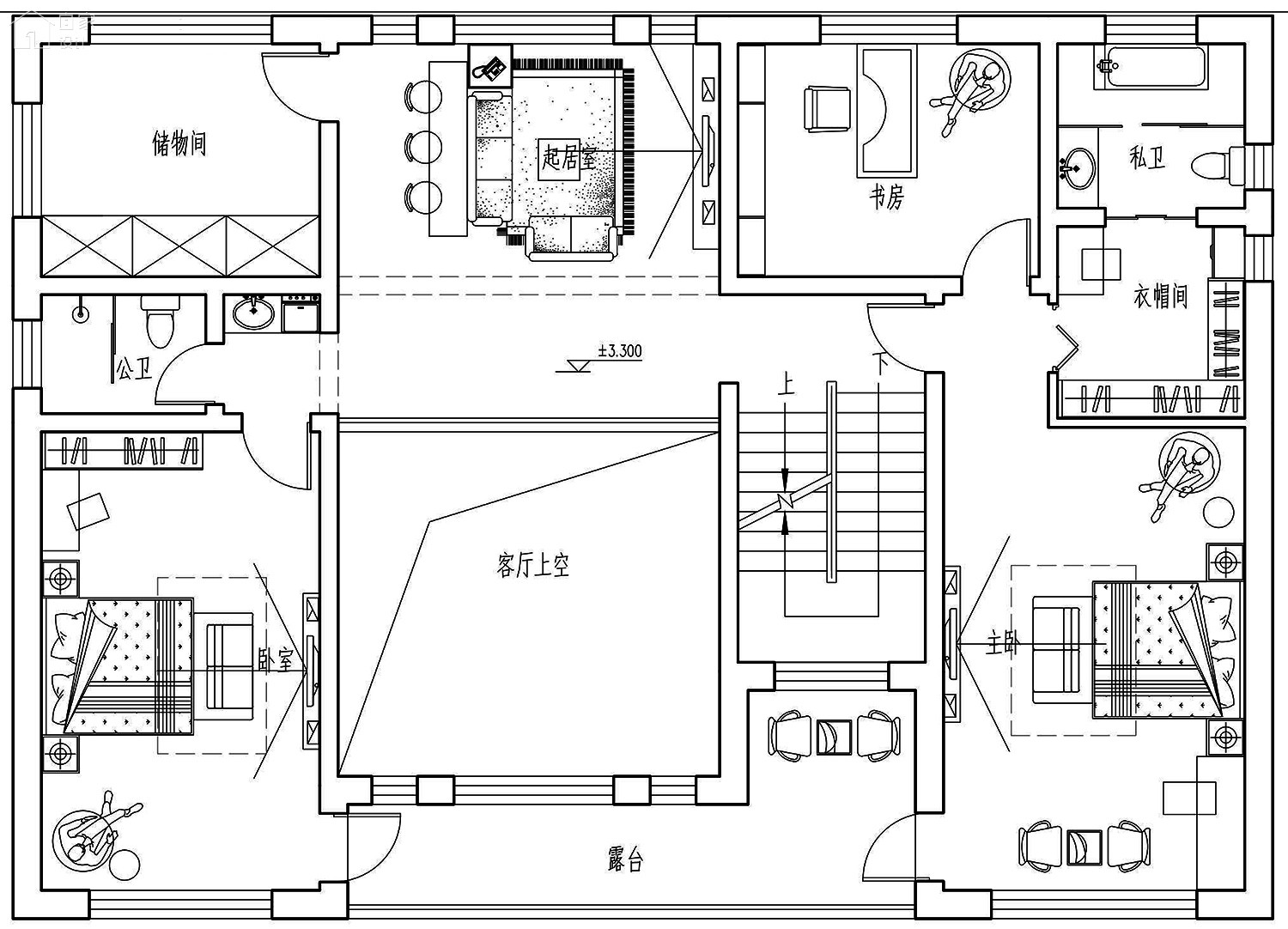
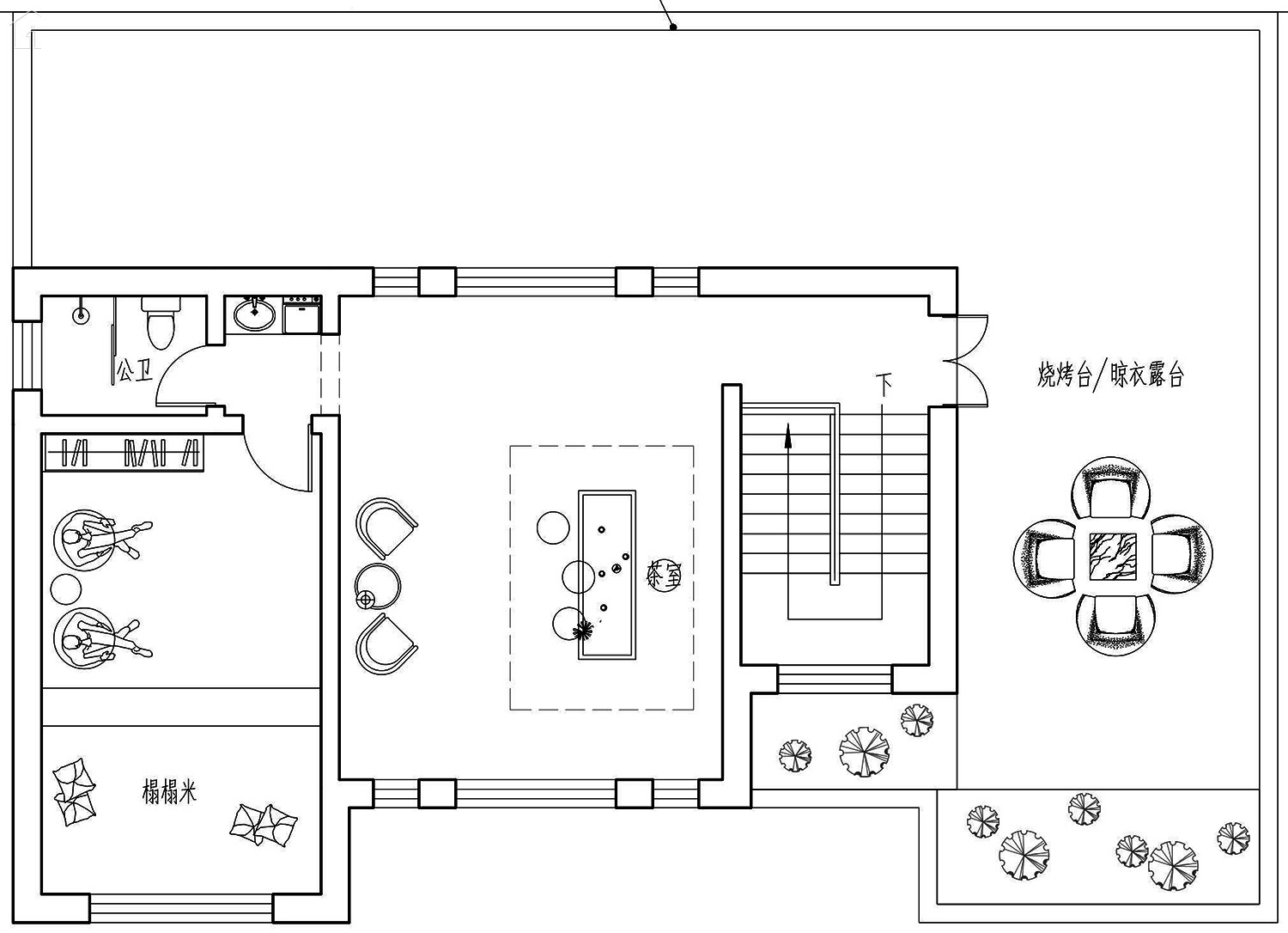
客厅、餐厅、厨房、卧室、公卫、阳台、露台。


。
转载请注明出自轩鼎自建房:://www.lemeizhai.com/