二层别墅很适合在农村建造,二层的就已经满足所有家庭需求,现在的家庭人口不是那么多很多都是独生子女,二层房屋就已经足够了。今天给大家推荐的是一款="://www.lemeizhai.com/Picture.asp?PicClassID=88" target="_self">二层别墅设计,这套别墅干练清秀有露台白灰配色非常漂亮,是建别墅的不二之选。


别墅层数: 二层
别墅风格: 欧式
占地面积:150㎡
开 间:14.1m
进 深:10.7m
建筑占地:14.1m×10.7m
建筑面积:254㎡
主体造价:36.0~41.0万
建筑结构:砖混结构


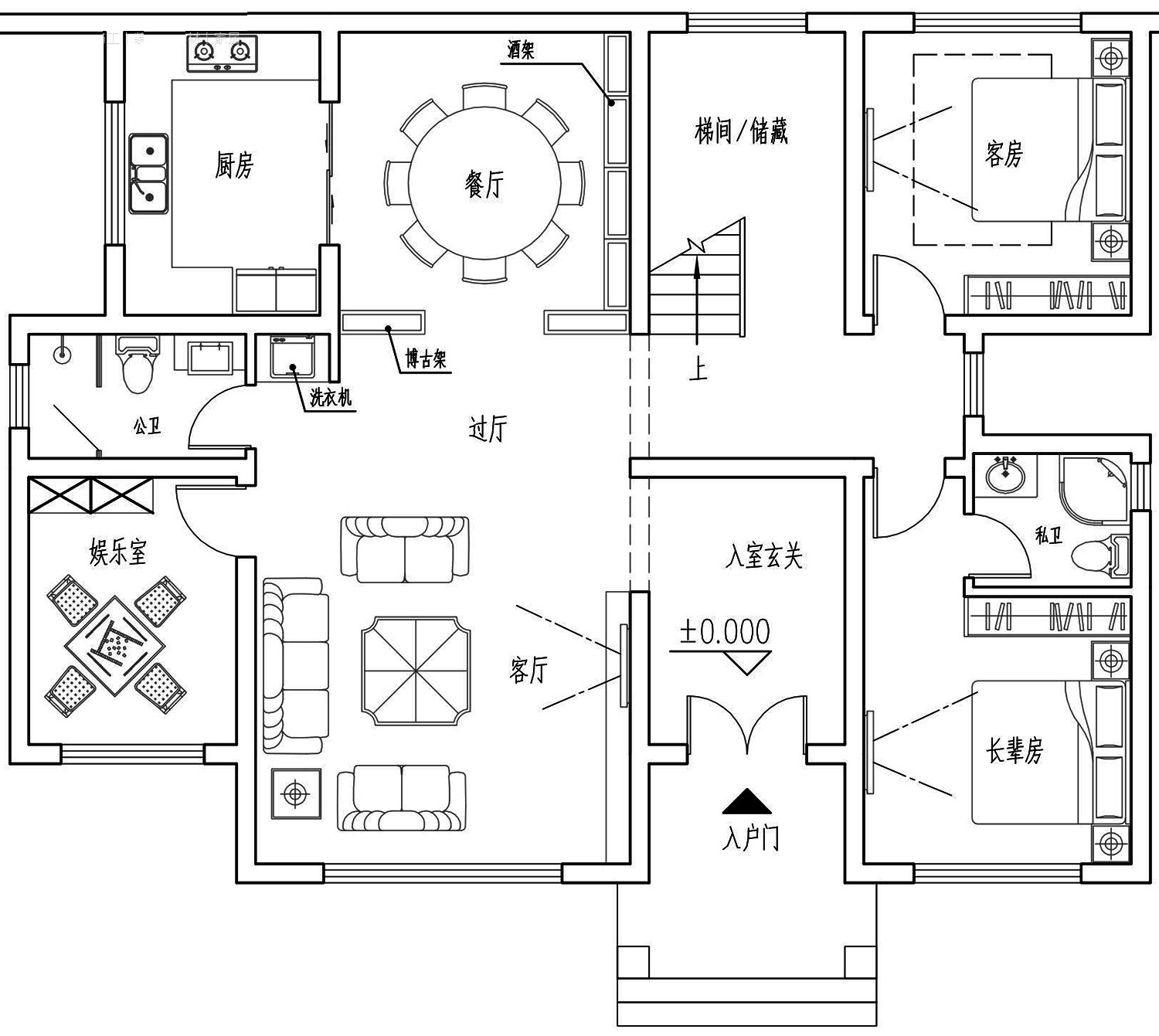
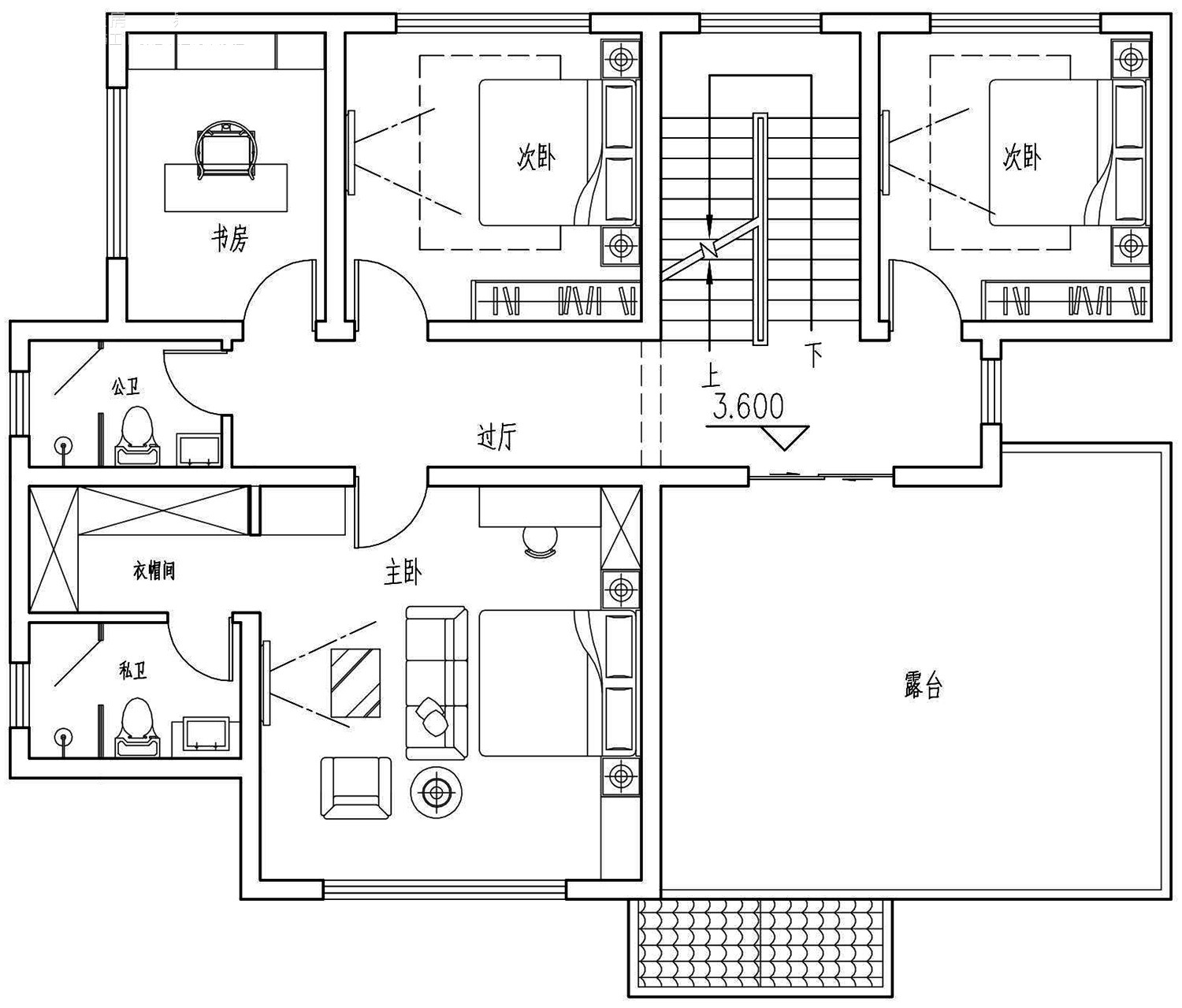
主体设计:

客厅、餐厅、厨房、卧室、公卫、阳台、露台。

。
转载请注明出自轩鼎自建房:://www.lemeizhai.com/