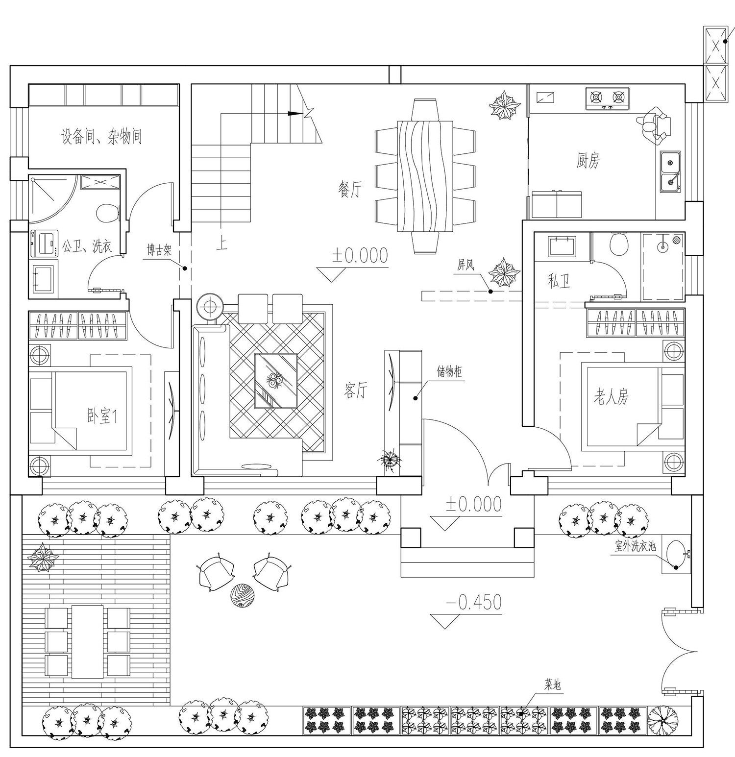
农村自建房种类太多不知道选哪个,好的自建房不仅仅是好看的,="://www.lemeizhai.com/Picture.asp?PicClassID=88" target="_self">今天推荐的是一款二层别墅设计,整体为现代风格,材质以真石漆为主高灰为辅。门厅和飘窗打造出丰富的立面视觉体验,别墅内部较大空间提升了室内整体的采光的效果。


别墅层数: 二层
别墅风格: 现代
占地面积:124㎡
开 间:14.2m
进 深:8.8m
建筑占地:14.2m×8.8m
建筑面积:249㎡
主体造价:35.0~40.0万
建筑结构:砖混结构


主体设计:

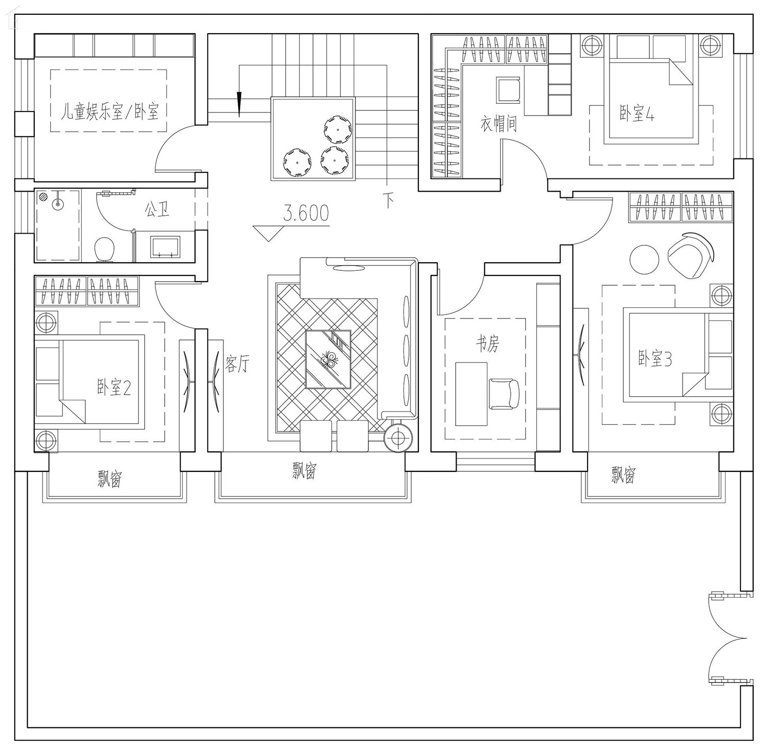
客厅、餐厅、厨房、卧室、公卫、阳台、露台。

。
转载请注明出自轩鼎自建房:://www.lemeizhai.com/