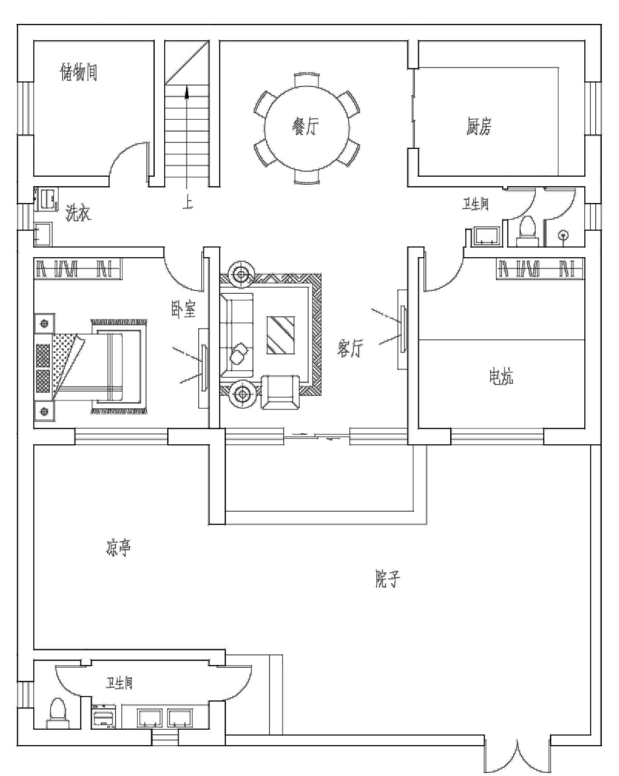
传统的农村农村房屋已经不再适合现代人们的需求了,人们需要更合理的房屋布局和科学好看的户型。今天给大家推荐河南赵先生私人订制的一款="://www.lemeizhai.com/Picture.asp?PicClassID=88" target="_self">二层别墅设计,这是一款现代布局,平屋顶漂亮的文化石搭配少量真石漆加分不少,房间多有独立的储物间,储存粮食杂物绰绰有余。

别墅层数: 二层
别墅风格: 现代
占地面积:219㎡
开 间:13.2m
进 深:16.3m
建筑占地:13.2m×16.3m
建筑面积:277㎡
主体造价:37.0~42.0万
建筑结构:砖混结构


主体设计:

客厅、餐厅、厨房、卧室、公卫、阳台、露台。

。
转载请注明出自轩鼎自建房:://www.lemeizhai.com/