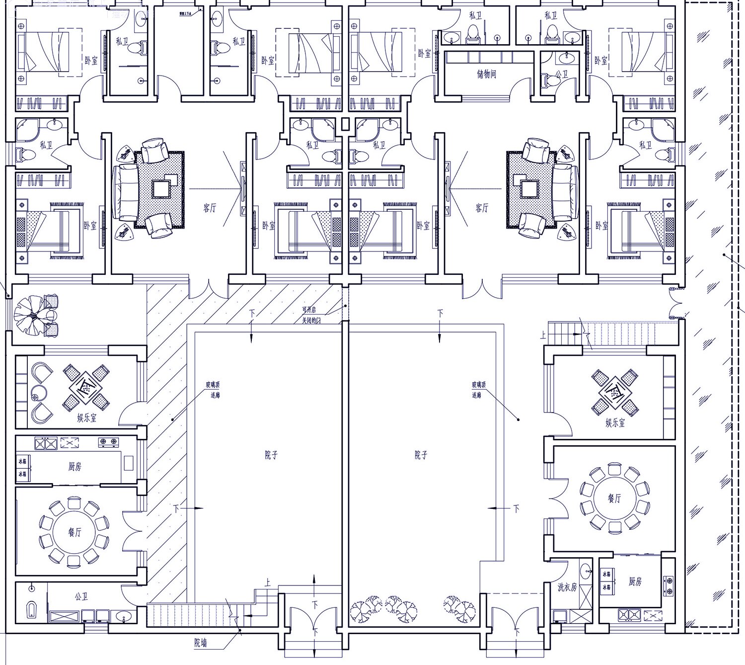
今天推荐的是山东张总私人订制的="://www.lemeizhai.com/Picture.asp?PicClassID=85" target="_self">农村一层建房设计图,这是一套双拼房屋,张总和张总父母的房子挨着想一起翻新,就找到我们轩鼎帮忙设计。这样的房子符合一户一宅的政策不违规,新中式的户型非常漂亮,现代化的设计非常棒,屋顶有个晾晒平台非常适合农村环境。

别墅层数: 一层
别墅风格: 中式
占地面积:657㎡
开 间:27.5m
进 深:23.9m
建筑占地:27.5m×23.9m
建筑面积:458㎡
主体造价:70.0~75.0万
建筑结构:砖混结构


主体设计:
客厅、餐厅、厨房、卧室、公卫、阳台、露台。

。
转载请注明出自轩鼎自建房:://www.lemeizhai.com/