人这一生最难抓住的就是机遇,抓住机遇就能乌鸦变凤凰,不是说干等,而是自己的能否有能力把握住机遇,所以在生活没有改观的时候一定不要忘了提升自己,美好的未来就在明天。今天介绍的案例是山东赵总私人订制的="://www.lemeizhai.com/Picture.asp?PicClassID=91" target="_self">3层别墅设计,这是一款功能比较多现代化豪宅,电梯、家庭影院,大号厨房一应俱全,有钱人才是最会享受的啊!


别墅层数: 三层
别墅风格: 现代
占地面积:216㎡
开 间:13.5m
进 深:16m
建筑占地:13.5m×16m
建筑面积:553㎡
主体造价:90.0~95.0万
建筑结构:框架结构


主体设计:

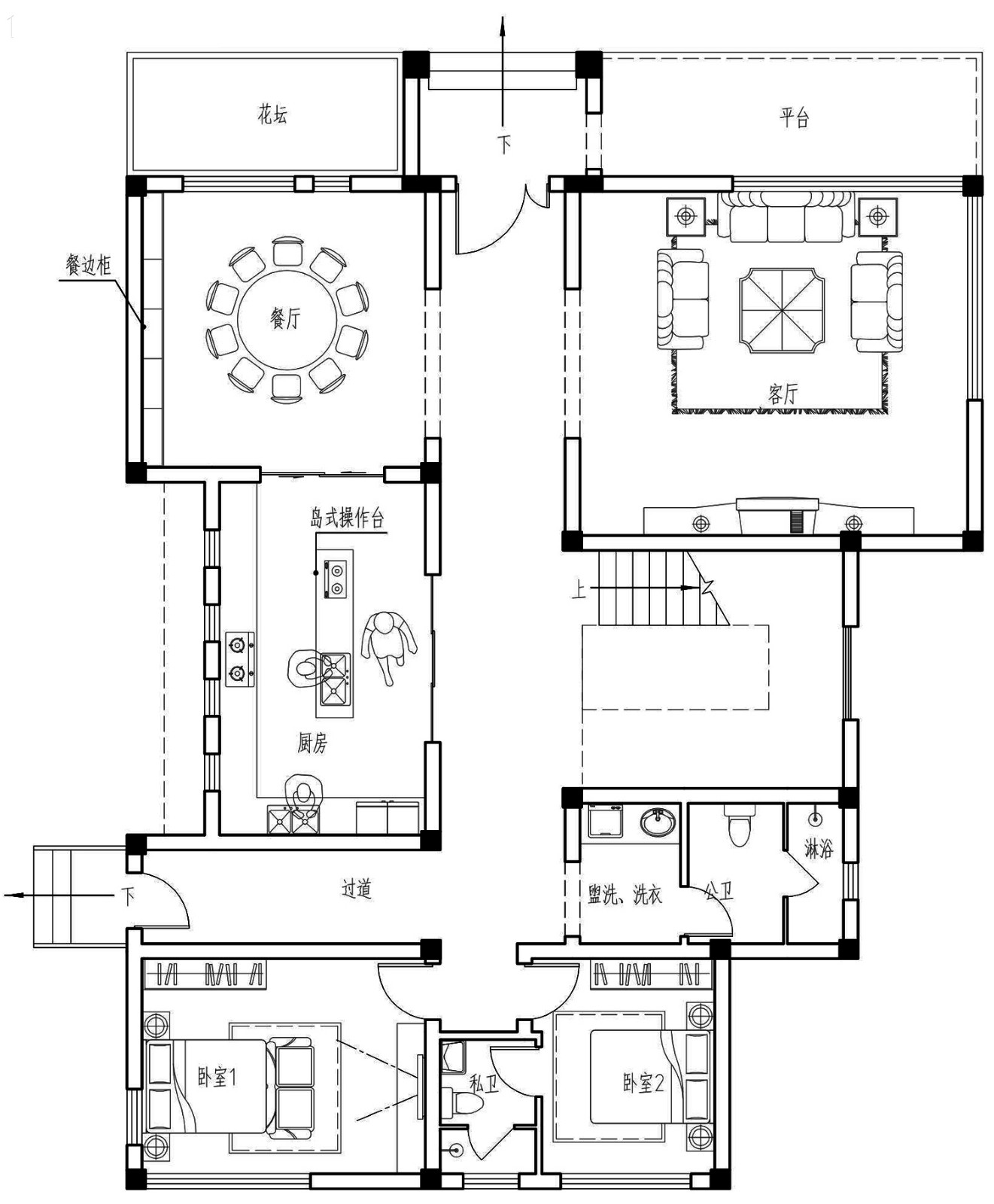
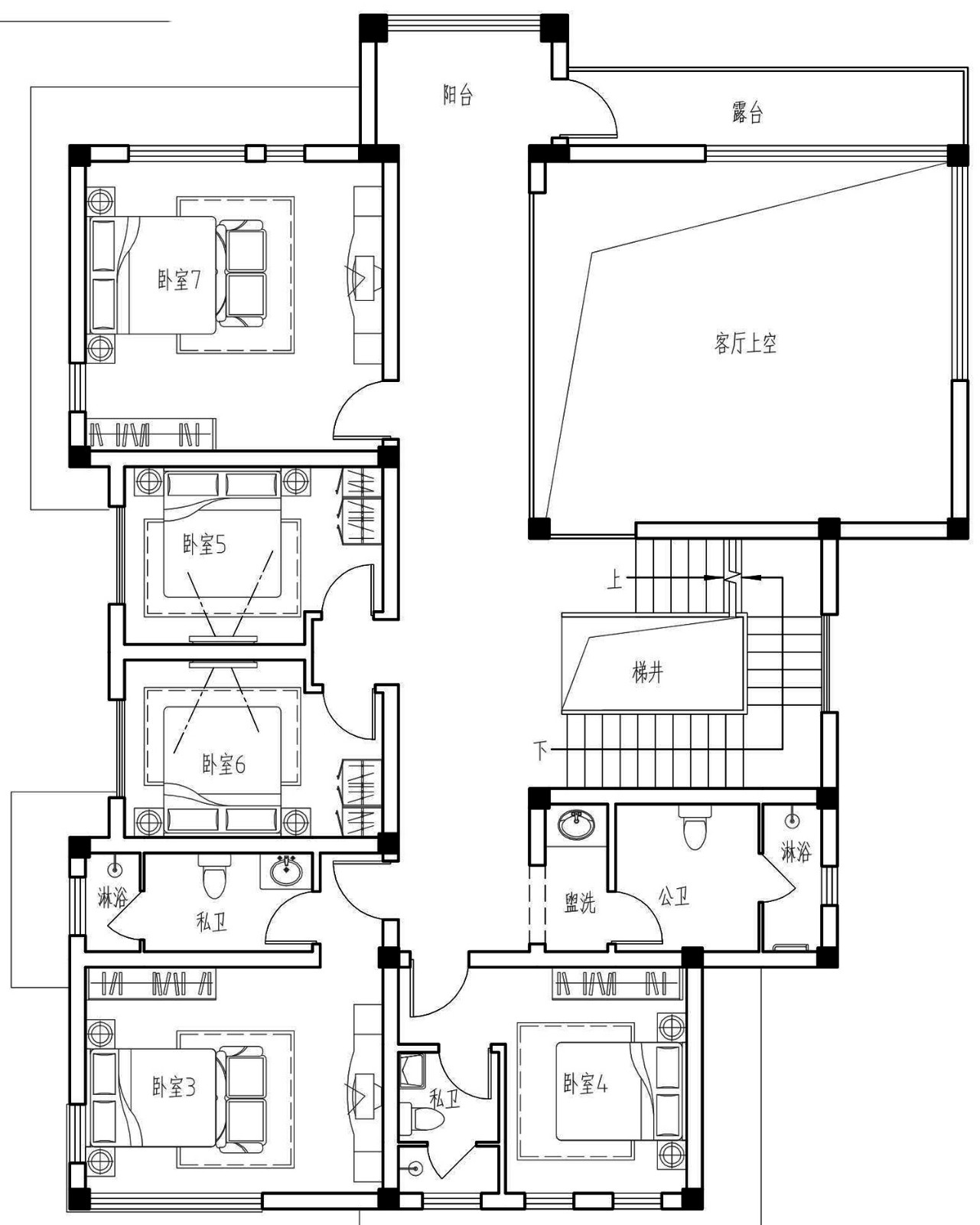
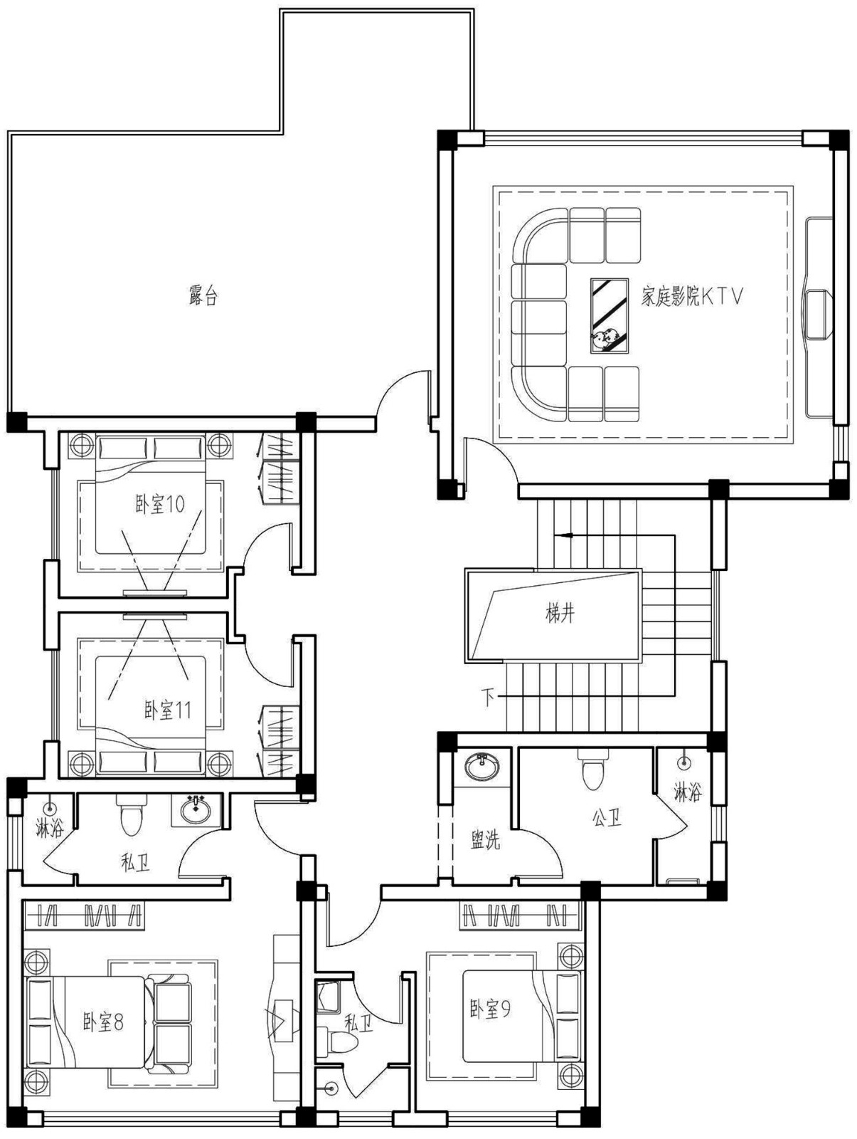
客厅、餐厅、厨房、卧室、公卫、阳台、露台。

。

转载请注明出自轩鼎自建房:://www.lemeizhai.com/