大气漂亮的农村自建房很多人都会喜欢的,也成为了现在的建房风向标,漂亮时尚的自建房也成为了现在农村人的追求。今天给大家推荐的是河南孙总私人订制的欧式="://www.lemeizhai.com/Picture.asp?PicClassID=91" target="_self">三层别墅设计,这别墅大气漂红色的屋顶非常喜庆,黄色的外墙增添些许活力,还有超大的露台视野开阔,这是一款主体造价80万左右三层豪宅。

别墅层数: 三层
别墅风格: 欧式
占地面积:200㎡
开 间:14m
进 深:14.3m
建筑占地:14m×14.3m
建筑面积:480㎡
主体造价:70.0~75.0万
建筑结构:砖混结构



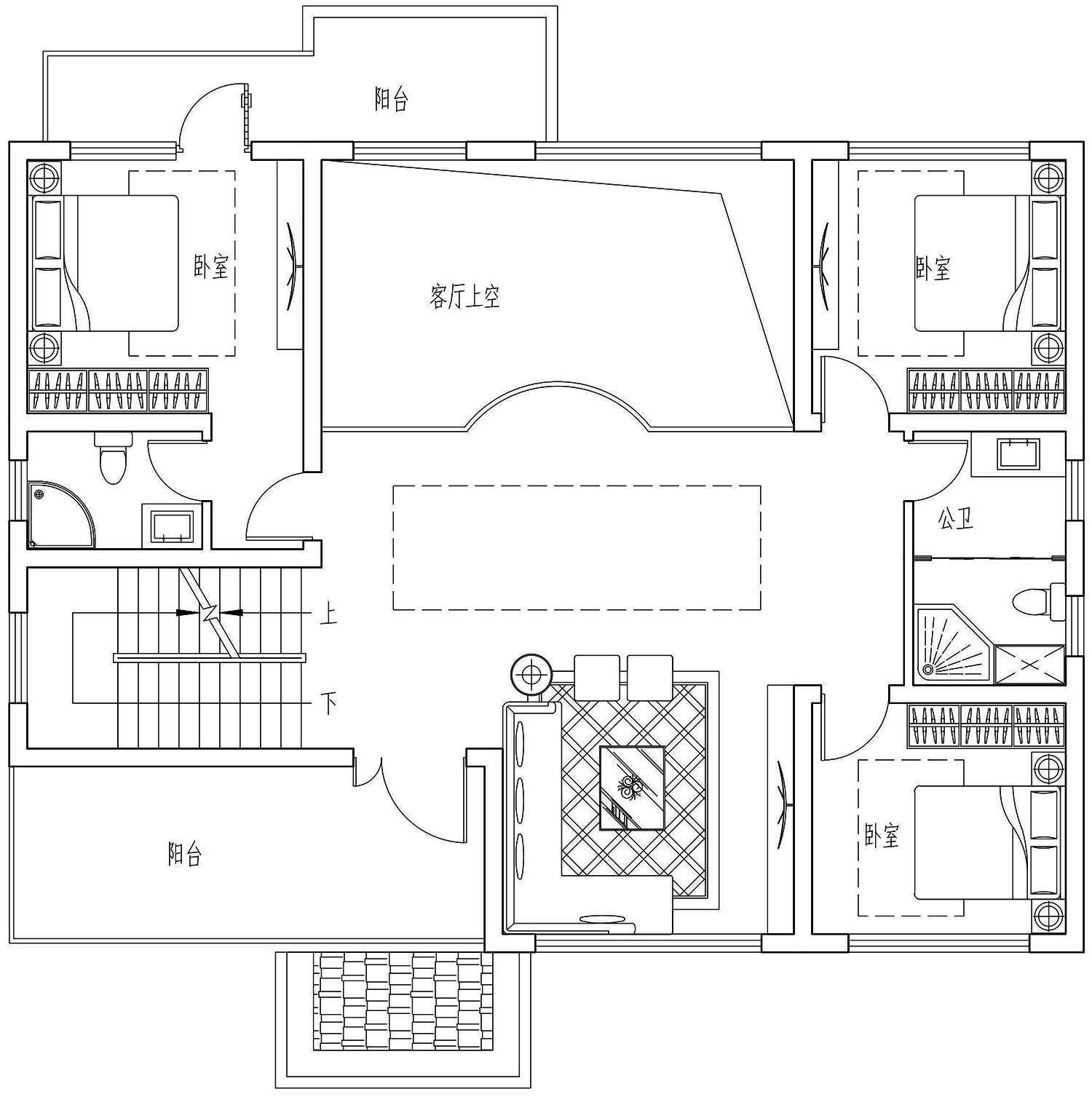
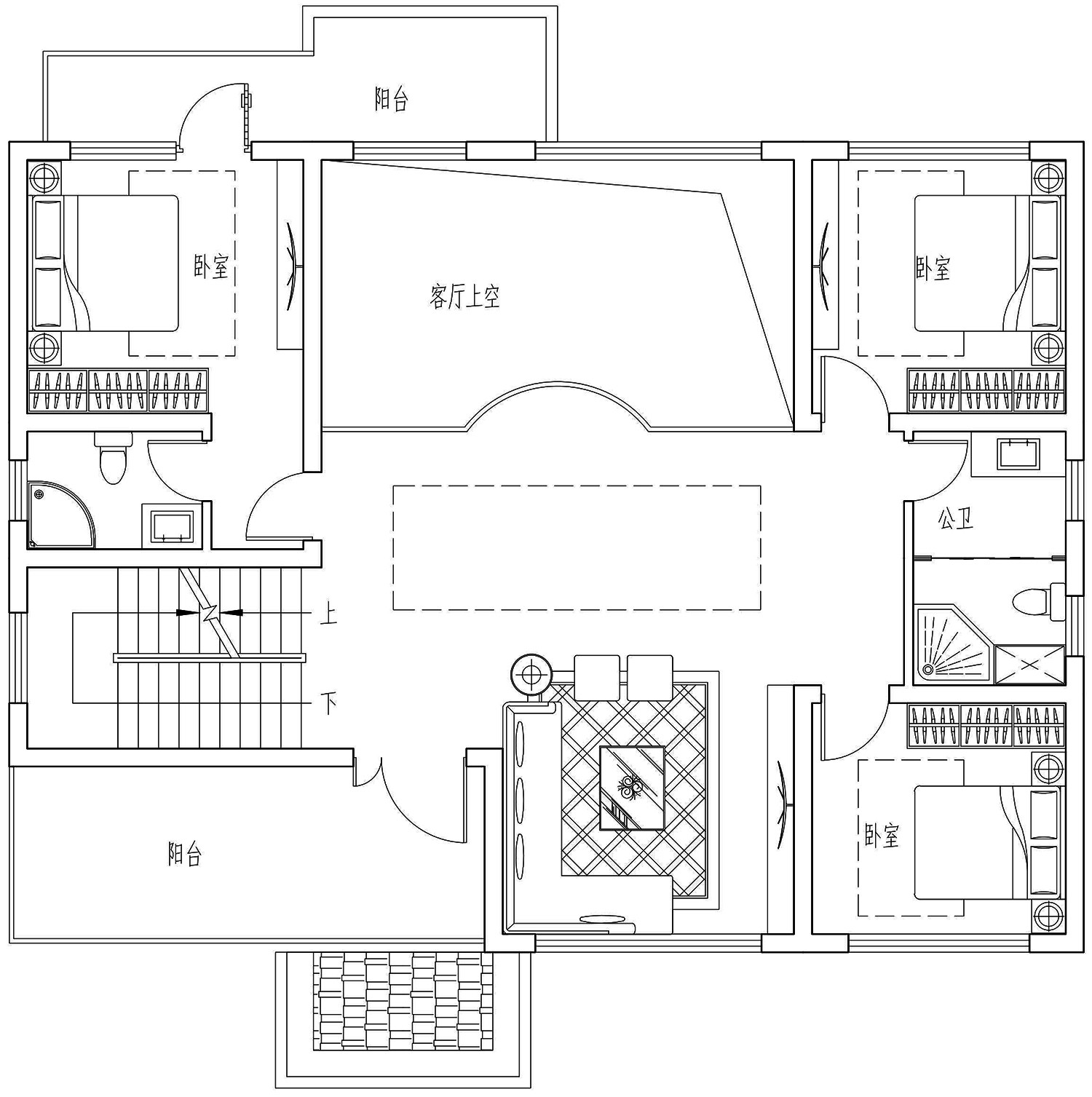
主体设计:

客厅、餐厅、厨房、卧室、公卫、阳台、露台。


。
转载请注明出自轩鼎自建房:://www.lemeizhai.com/