南方的老板都喜欢自建房屋很多地方都是建三层的别墅,有钱的大老板小老板还有农民都会建三层房屋,今天介绍的是福建胡总私人订制的三层="://www.lemeizhai.com/search.asp?SearchType=Software&imageField.x=34&imageField.y=24&SearchKey=%D0%C2%D6%D0%CA%BD" target="_self">新中式别墅设计,这套别墅错落有致凹凸的户型非常时尚,由于是新中式风格看起来精神,别墅内部房间特别多适合多胎家庭居住,儿女回家也有地住,胡总这款别墅主体价不超过60万很划算的。

别墅层数: 三层
别墅风格: 中式
占地面积:144㎡
开 间:14.3m
进 深:10.1m
建筑占地:14.3m×10.1m
建筑面积:300㎡
主体造价:45.0~50.0万
建筑结构:砖混结构



主体设计:

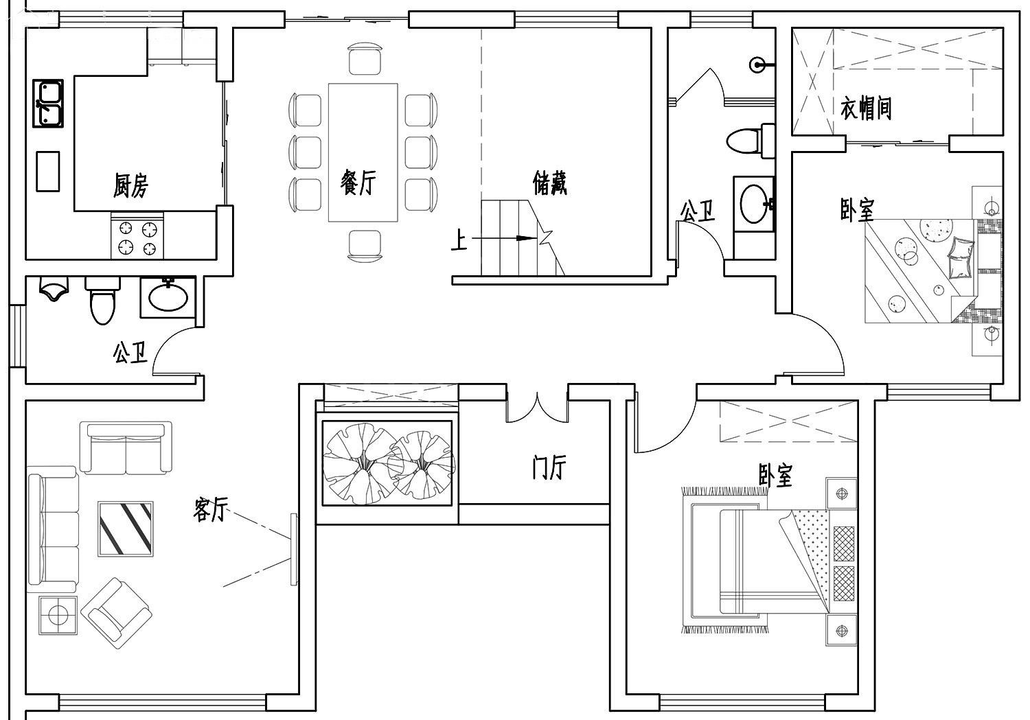
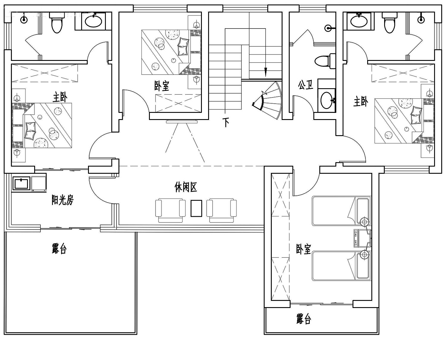
客厅、餐厅、厨房、卧室、公卫、阳台、露台。

。

转载请注明出自轩鼎自建房:://www.lemeizhai.com/