南方的部分农村地区是别墅村,几乎家家户户都有别墅,浙江有的村子街道干净整洁几乎家家户户都是小别墅,要是最豪华的别墅还是来自福建的大豪宅,那些豪宅跟宫殿差不多金碧辉煌,这些豪宅普通人可能一辈子买不起,那有没有普通人建得起,不比豪宅差的好房子呢?是有的!今天这款李先生定制的别墅主体造价不超过60万!!
效果图:

这款="://www.lemeizhai.com/search.asp?SearchType=Software&imageField.x=34&imageField.y=18&SearchKey=%D0%C2%D6%D0%CA%BD" target="_self">新中式别墅设计外形漂亮,一层是新式青砖二层洁白如玉就跟青花瓷差不多一点也不土。
别墅层数: 三层
别墅风格: 中式
占地面积:131㎡
开 间:11.5m
进 深:11.4m
建筑占地:11.5m×11.4m
建筑面积:311㎡
主体造价:45.0~50.0万
建筑结构:框架结构
效果图:


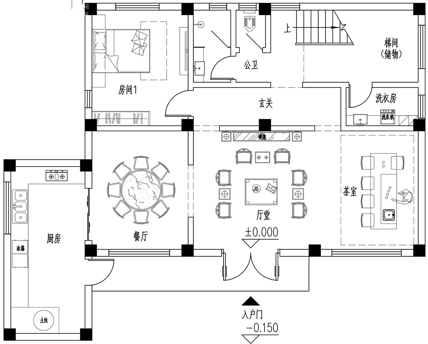
主体设计:这样的房子内部布局非常舒适,进门就是堂屋空间感非常,厨房凸出省出很大一部分空间,储物间很大,还有玄关隔断堂屋。

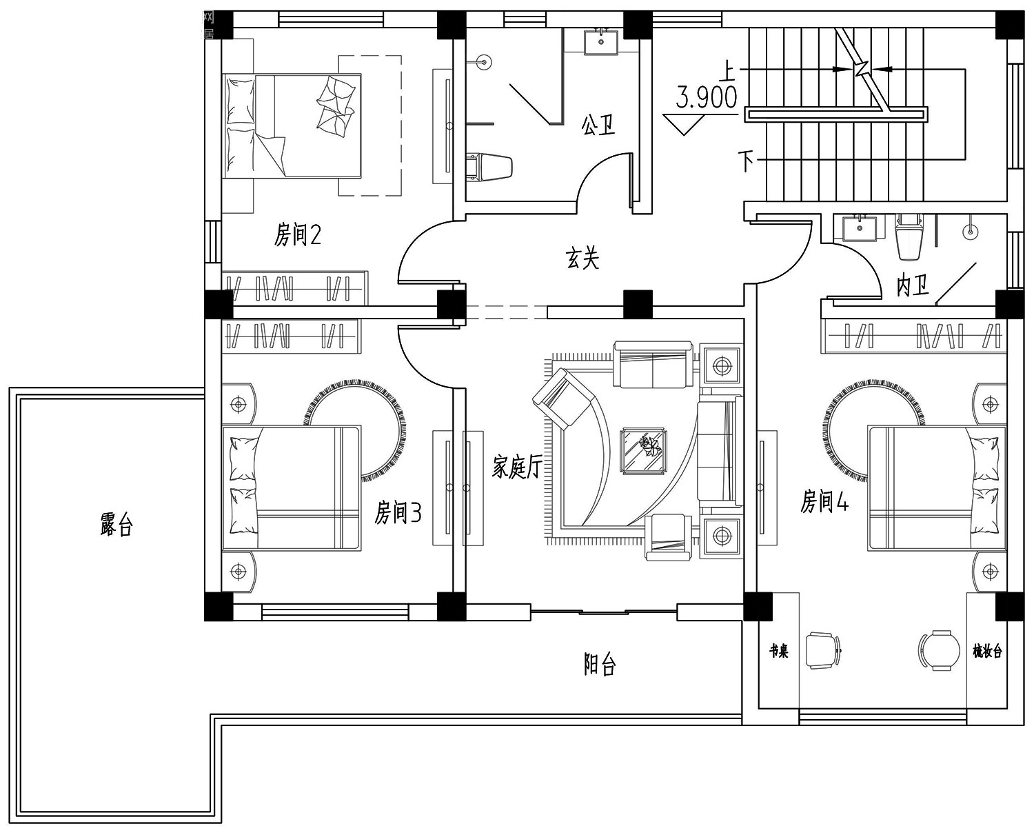
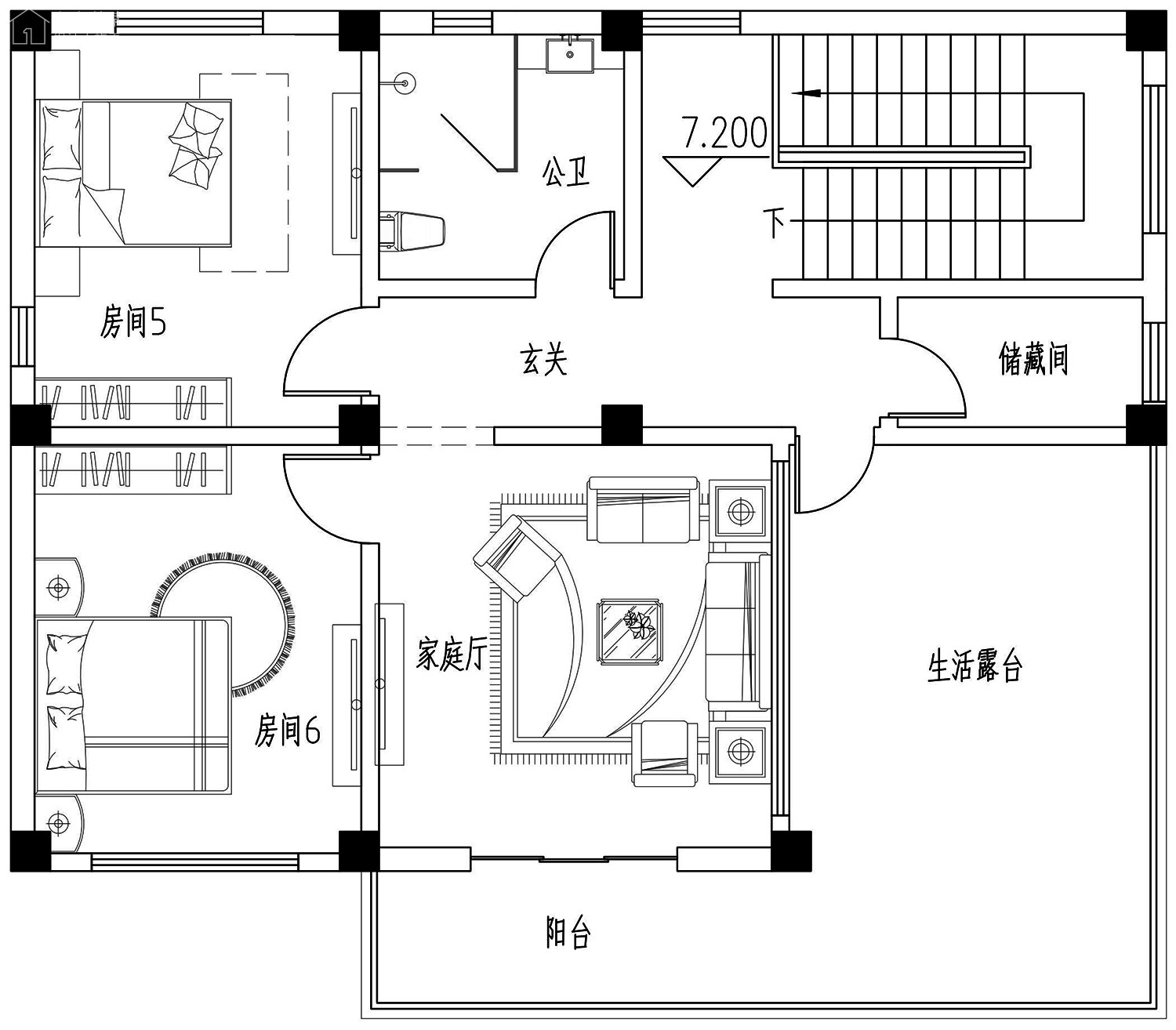
客厅、餐厅、厨房、卧室、公卫、阳台、露台。

。

转载请注明出自轩鼎自建房:://www.lemeizhai.com/