买房最怕烂尾楼,辛辛苦苦的钱白费了不说,贷款不还还不行!为什么越来越多的农村人自建小别墅,那是因为自己建房子不会骗自己,不怕烂尾楼,为什么城里房子贵那是因为地贵,农村建房不用买地也没有公摊面积,只要遵纪守法就能安安稳稳住房。今天给大家推荐的是李总私人订制的="://www.lemeizhai.com/Picture.asp?PicClassID=91" target="_self">三层别墅设计。
效果图:

灰白的现代风格非常漂亮,不规则的设计充满了年轻气息,木质的内墙醒目提神,这是一款年轻人喜爱的三层现代别墅
别墅层数: 三层
别墅风格: 现代
占地面积:193㎡
开 间:11.9m
进 深:16.3m
建筑占地:11.9m×16.3m
建筑面积:381㎡
主体造价:70.0~75.0万
建筑结构:砖混结构
效果图:


主体设计:

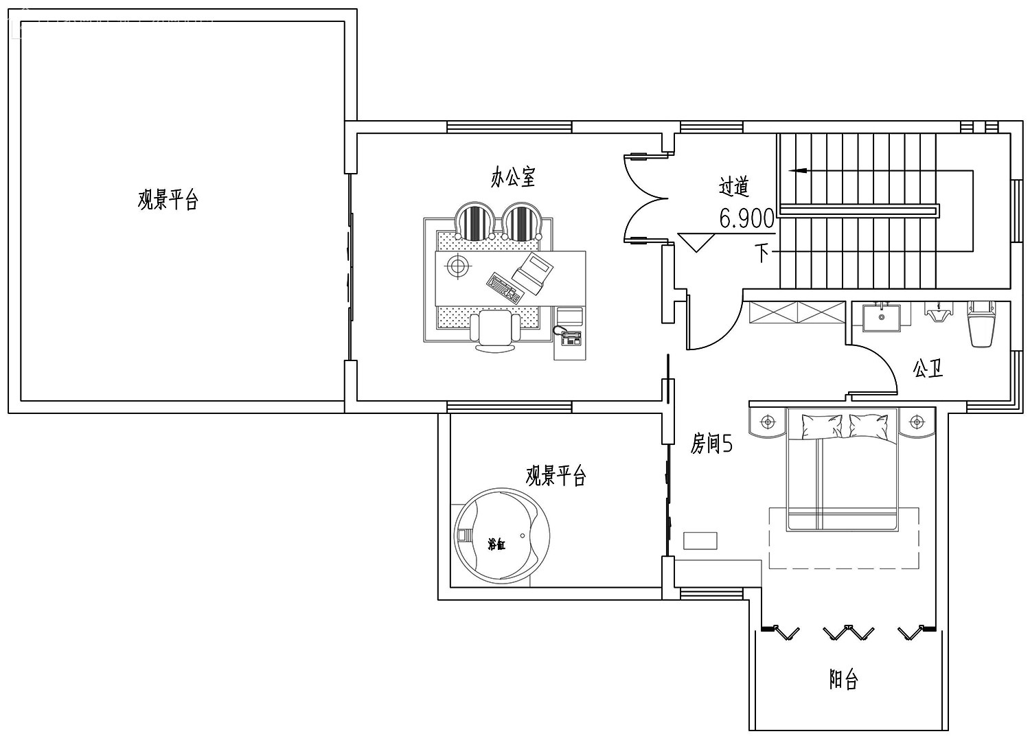
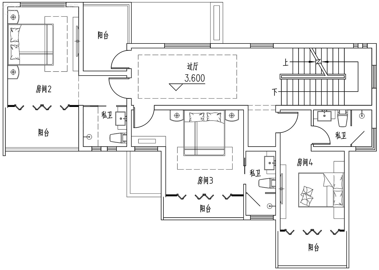
客厅、餐厅、厨房、卧室、公卫、阳台、露台。

。

转载请注明出自轩鼎自建房:://www.lemeizhai.com/