房子翻新很有必要,老旧的房子很容易出问题,老化了不如新的安全还会有老鼠,建新的房子让它更适应人们居住,一般的布局已经不行了,儿女回到家很容易没有地方睡觉。今天给大家推荐一款="://www.lemeizhai.com/Picture.asp?PicClassID=85" target="_self">一层农村自建房设计图,这样的房子才是好房子
效果图:

外观简洁不土气,木门非常有田园气息,能很好的融入农村的环境而且不突兀难看。
别墅层数: 一层
别墅风格: 中式
占地面积:282㎡
开 间:13.8m
进 深:20.5m
建筑占地:13.8m×20.5m
建筑面积:234㎡
主体造价:33.0~38.0万
建筑结构:砖混结构
效果图:



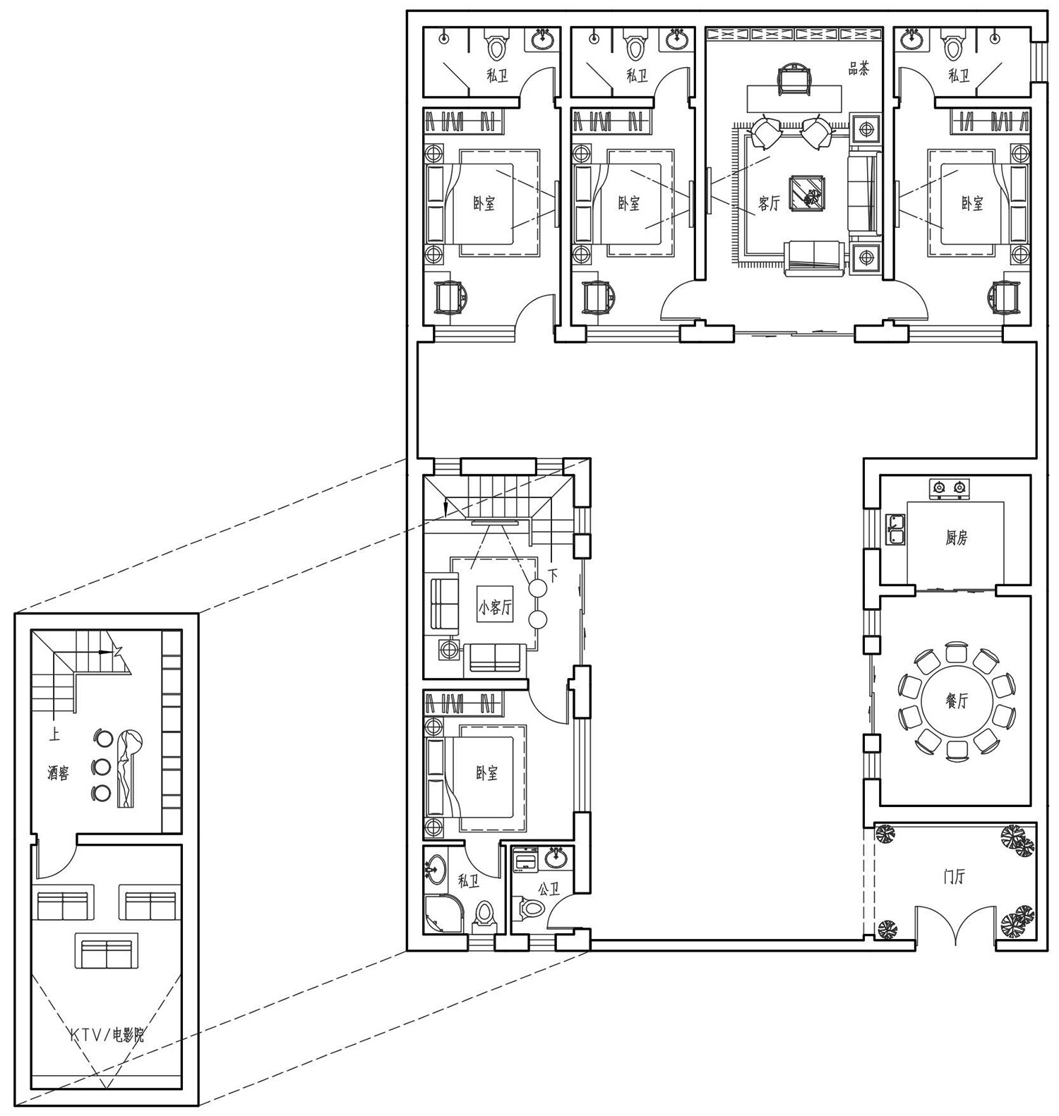
主体设计:和一般的农村房屋差不多,多了三个卧室,西边还有小客厅,这套自建房还有外侧厕所。
客厅、餐厅、厨房、卧室、公卫、阳台、露台。

。
转载请注明出自轩鼎自建房:://www.lemeizhai.com/