中国浙江和福建的农村别墅绝对算全国最好的,浙江的农村你不会想象到他们哪儿几乎都是小别墅,虽然绝大多数不全是但也比全国大部分都强。今天推荐的是浙江徐总私人订制的="://www.lemeizhai.com/Picture.asp?PicClassID=88" target="_self">二层别墅设计,一栋漂亮的欧式小宅,红色屋顶温馨漂亮,真石漆和文化石的组合增添了几分田园风情,别墅造价最高42万
效果图:

别墅层数: 二层
别墅风格: 欧式
占地面积:157㎡
开 间:15m
进 深:10.5m
建筑占地:15m×10.5m
建筑面积:286㎡
主体造价:37.0~42.0万
建筑结构:砖混结构
效果图:


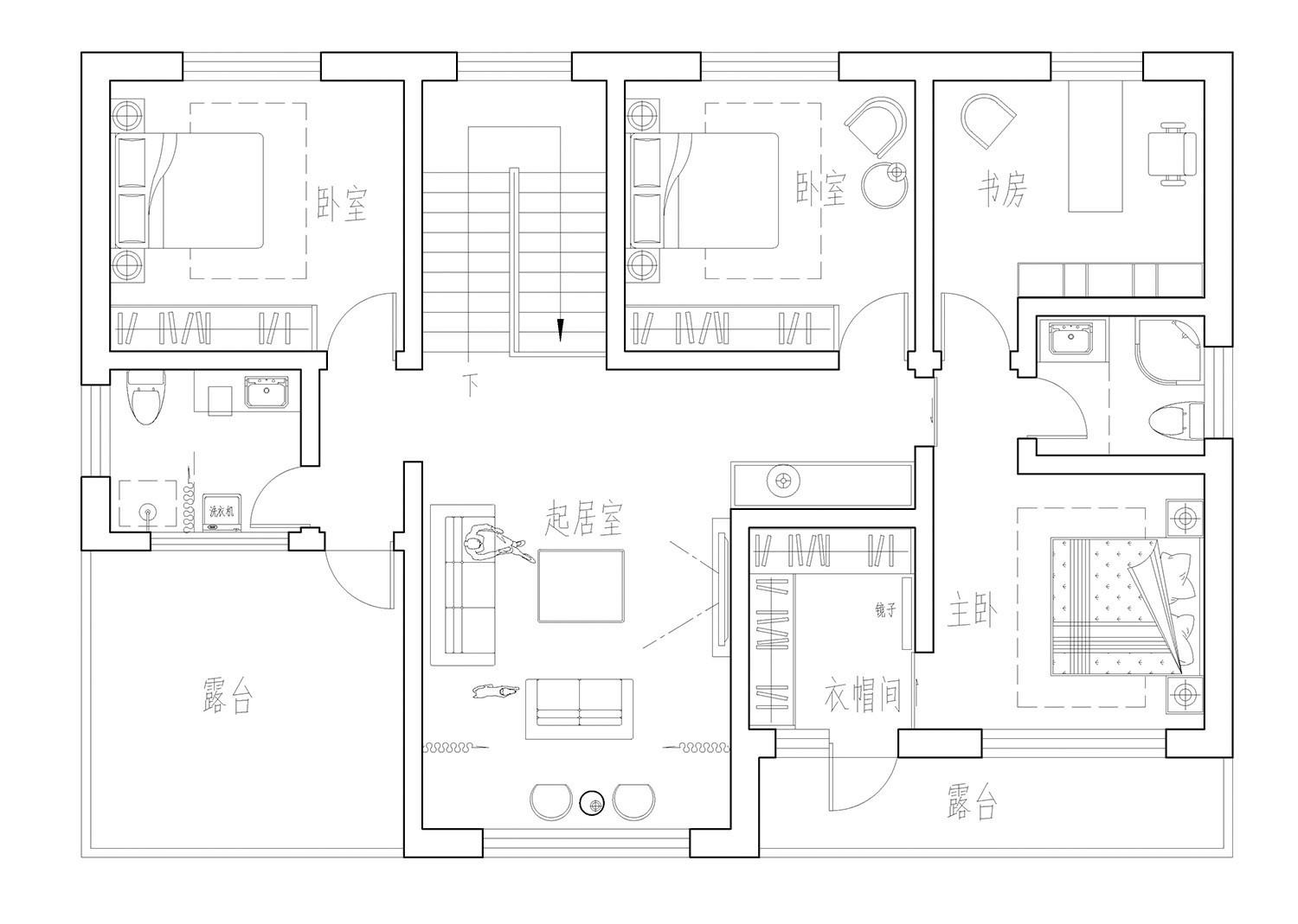
主体设计:。

客厅、餐厅、厨房、卧室、公卫、阳台、露台。

。
转载请注明出自轩鼎自建房:://www.lemeizhai.com/