农村建房是专属于农村人的权利,现在的农村自建房不建一栋别墅都不好意思说自己是农村人,建一栋别墅好,。今天推荐河南尤总私人订制的="://www.lemeizhai.com/Picture.asp?PicClassID=88" target="_self">二层别墅设计,欧式风格经典大气,双开门设计主体造价最高49万,内部分工明确没有一丝复杂的多余的地方,非常舒适。
效果图:

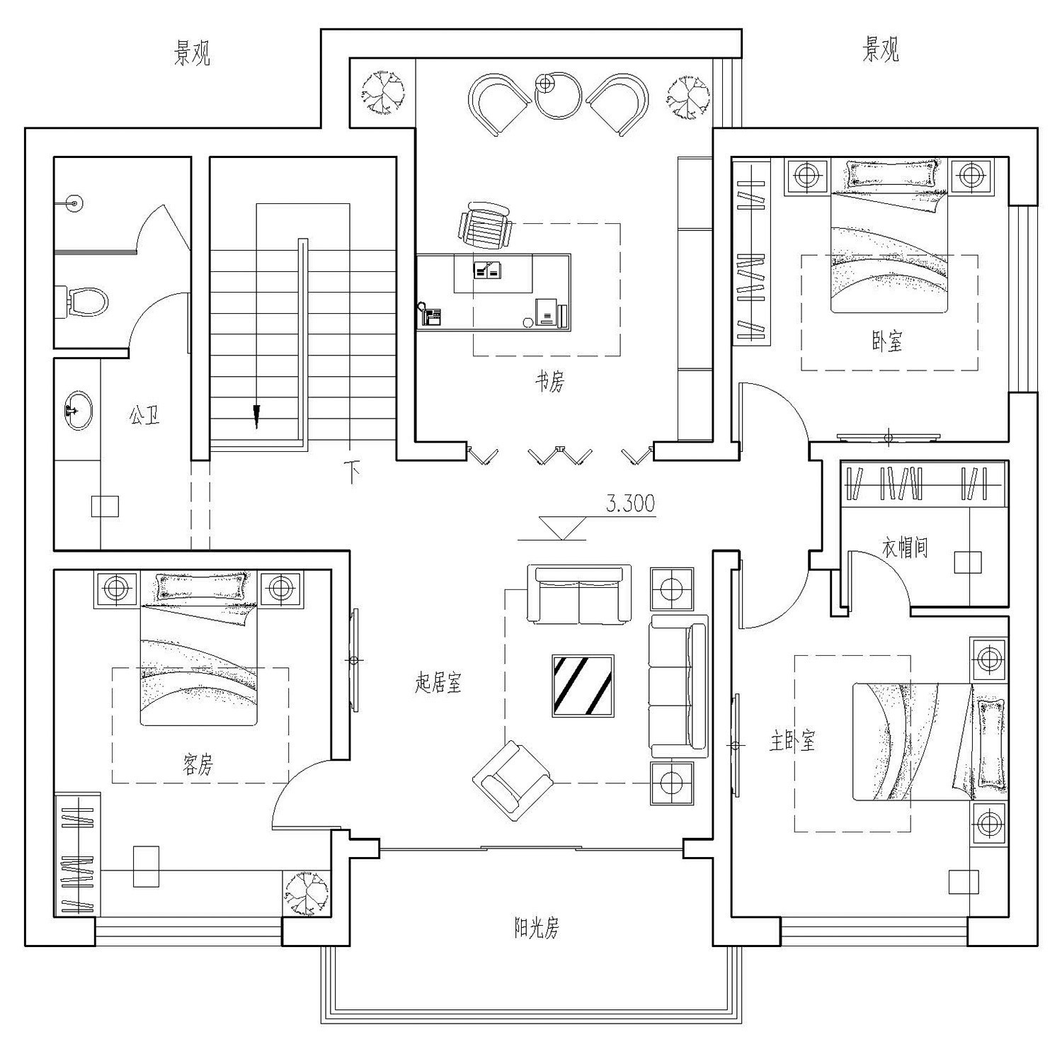
别墅层数: 二层
占地面积:149㎡
开 间:13m
进 深:11.5m
建筑占地:13m×11.5m
建筑面积:298㎡
主体造价:44.0~49.0万
建筑结构:砖混结构
效果图:


主体设计:。

客厅、餐厅、厨房、卧室、公卫、阳台、露台。

。
转载请注明出自轩鼎自建房:://www.lemeizhai.com/