农村小别墅的身影越来越常见了,有的是集体重新规划的新民居,有的是个人建造自建别墅,农村自建别墅最适合新中式和现代风,拆迁安置房就是这两者之一。今天推荐一款现代风格的="://www.lemeizhai.com/Picture.asp?PicClassID=88" target="_self">二层别墅设计,这套别墅特别好看,砖混结构的自然价格也比较便宜,主体只需36万左右。
效果图:

别墅层数: 二层
别墅风格: 现代
占地面积:140㎡
开 间:11.4m
进 深:12.3m
建筑占地:11.4m×12.3m
建筑面积:224㎡
主体造价:30.8~35.8万
建筑结构:砖混结构
效果图:



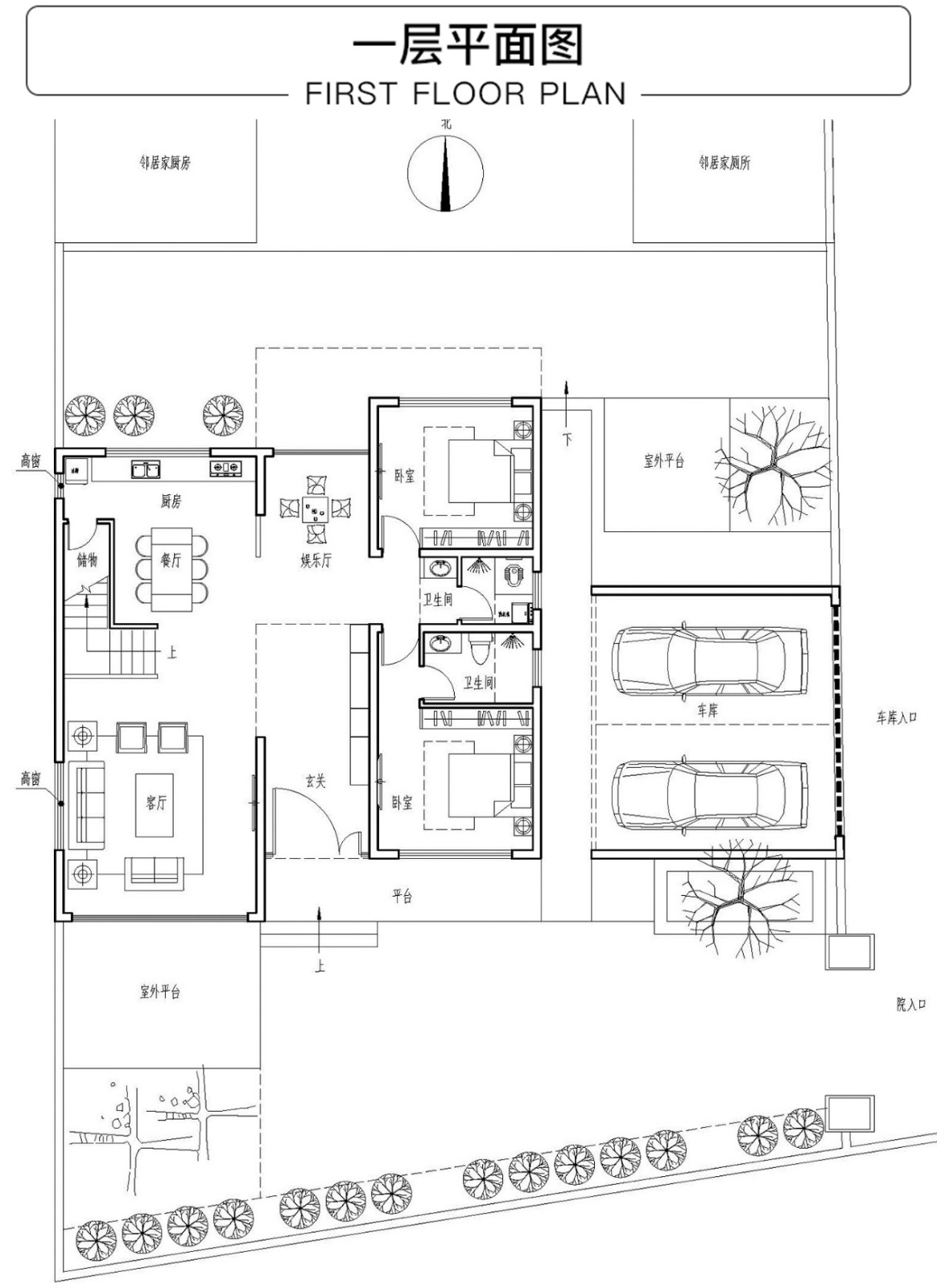
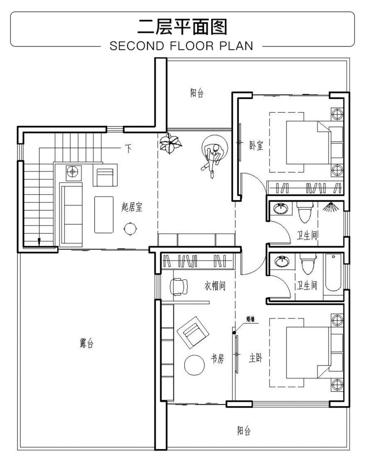
主体设计:

客厅、餐厅、厨房、卧室、公卫、阳台、露台。

。
转载请注明出自轩鼎自建房:://www.lemeizhai.com/