农村建小别墅的人越来越多,对于农村人来说别墅好不好看不重要,住的舒服才是最重要的,冬天暖和夏天凉快才是追求的目标。今天给大家推荐的是一款="://www.lemeizhai.com/Picture.asp?PicClassID=88" target="_self">二层农村别墅设计,这款别墅朴素好看,大窗口采光良好,内部空间大特别明亮,卧室足够人多也不怕。
效果图:



别墅层数: 二层
别墅风格: 新中式
占地面积:117㎡
开 间:11.7m
进 深:10m
建筑占地:11.7m×10m
建筑面积:197㎡
主体造价:30.6~35.6万
建筑结构:砖混结构
效果图:


主体设计:。

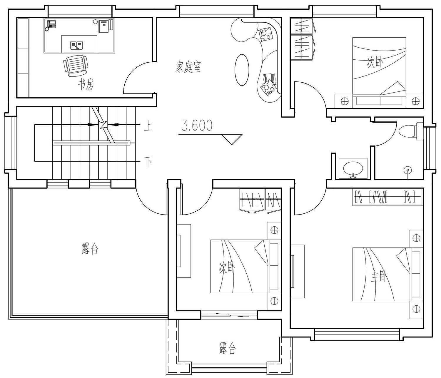
客厅、餐厅、厨房、卧室、公卫、阳台、露台。

。
转载请注明出自轩鼎自建房:://www.lemeizhai.com/