农村建别墅是一件风光的事,有实力就应该展现出来,展现出来实力会成为未来更上一层楼的垫脚石,这个社会对有钱人宽容的过分,所以努力的成为一个有钱人吧。今天给大家推荐的是刘总私人订制的="://www.lemeizhai.com/search.asp?SearchType=Software&imageField.x=27&imageField.y=13&SearchKey=%D0%C2%D6%D0%CA%BD" target="_self">三层新中式别墅设计,进门是玄关两边是餐厅和客厅设计的非常巧妙。
效果图:

设计功能:
别墅层数: 三层
别墅风格: 中式
占地面积:192㎡
开 间:14.4m
进 深:13.4m
建筑占地:14.4m×13.4m
建筑面积:690㎡
主体造价:113.0~118.0万
建筑结构:砖混结构
效果图:


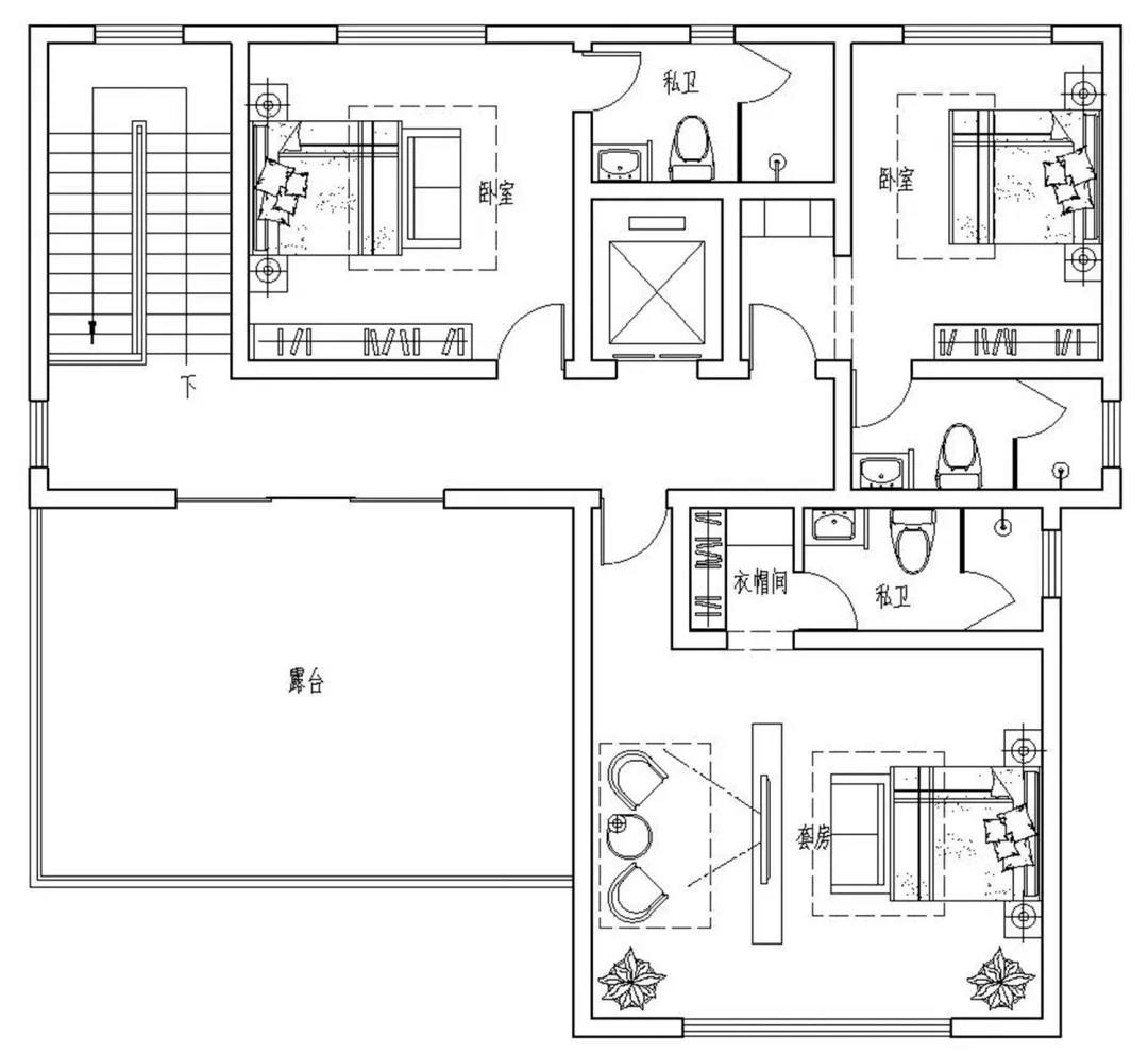
主体设计:

客厅、餐厅、厨房、卧室、公卫、阳台、露台。


。
转载请注明出自轩鼎自建房:://www.lemeizhai.com/