住在农村是非常好的事情,虽然比较苦可也过得幸福,经历了疫情就越觉得农村比城里好,所以有钱就建一栋舒适的小别墅,在农村吃得好比城里压力低,住在农村真好。今天给大家推荐的是="://www.lemeizhai.com/Picture.asp?PicClassID=88" target="_self">二层别墅设计,新中式风格特别适合农村环境希望大家喜欢。
效果图:


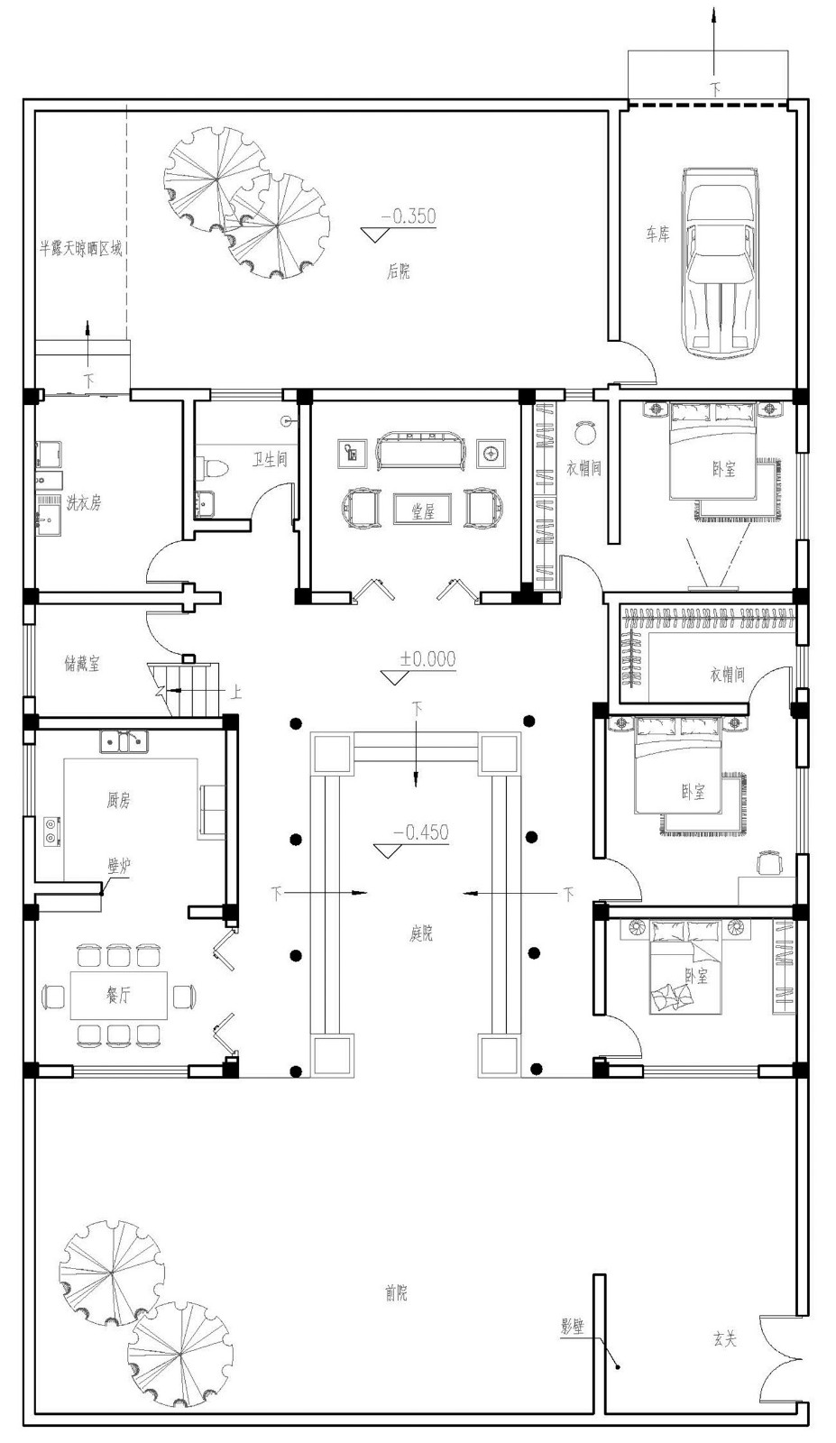
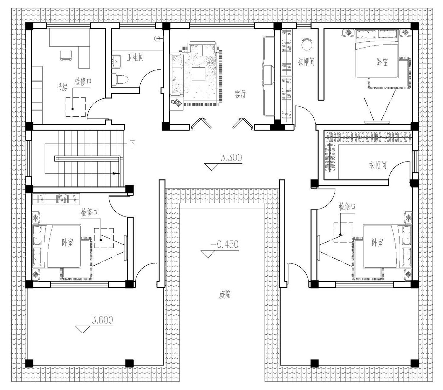
别墅层数: 二层
别墅风格: 中式
占地面积:358㎡
开 间:16m
进 深:22.4m
建筑占地:16m×22.4m
建筑面积:326㎡
主体造价:45.0~50.0万
建筑结构:其他结构
效果图:


主体设计:。

客厅、餐厅、厨房、卧室、公卫、阳台、露台。

。
转载请注明出自轩鼎自建房:://www.lemeizhai.com/