随着农村自建别墅的兴起,建房的方式就越来越复杂,也不是说太复杂,而是说专业化,毕竟质量好的房子更安全不会出现悲痛的事故,建房一定要选择专业团队,还要遵纪守法,不能私自建房否则不受法律保护,还要勒令拆除!今天给大家推荐的是="://www.lemeizhai.com/Picture.asp?PicClassID=88" target="_self">一款二层小洋楼非常耐看大气,希望大家喜欢。
效果图:

建筑面积:286.31㎡
基地面积:294㎡
建筑尺寸:14m×11.94m
占地面积:158.57㎡
效果图:



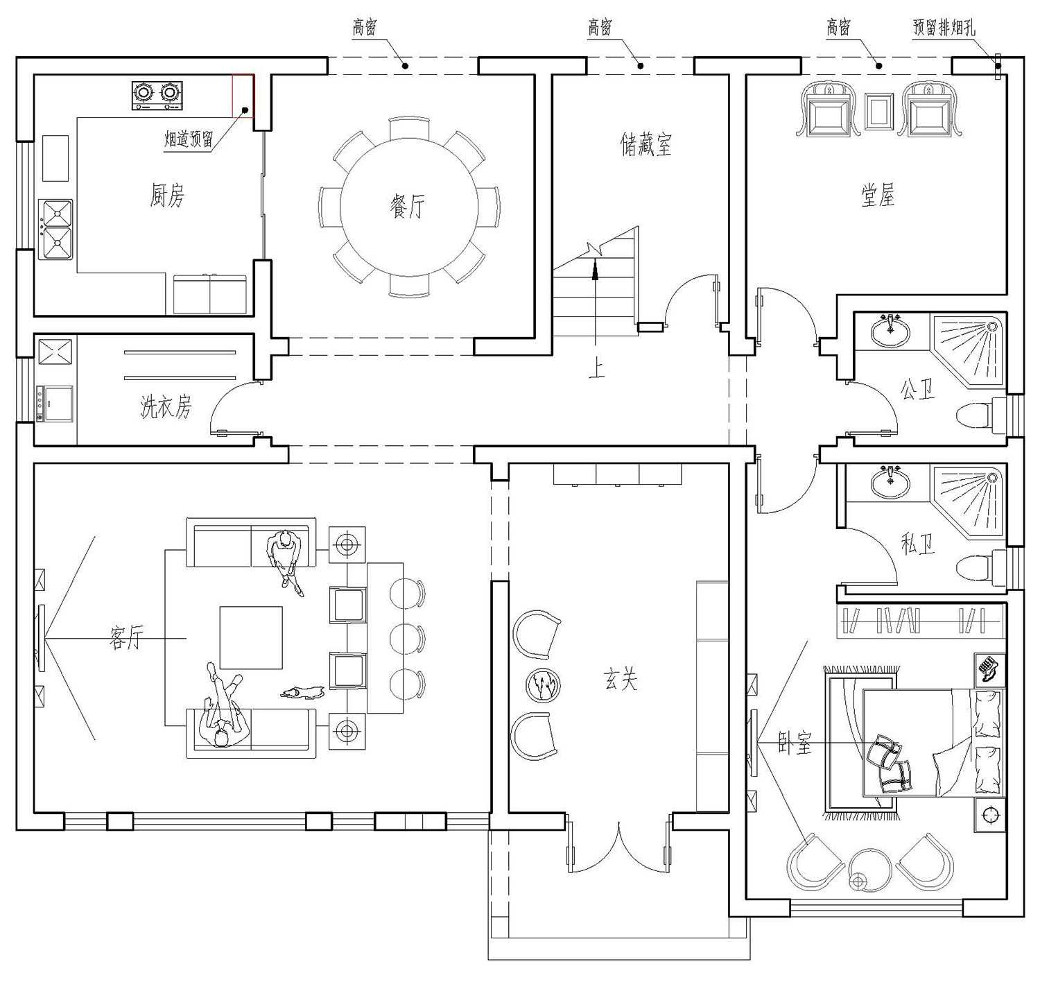
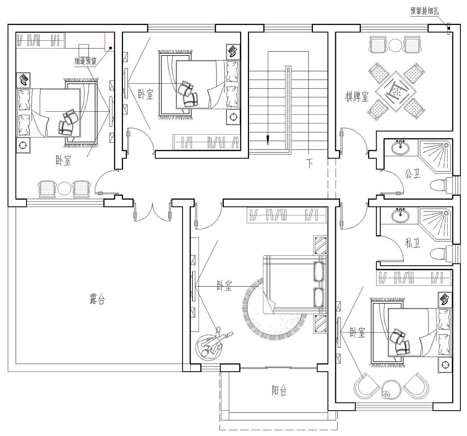
主体设计:

客厅、餐厅、厨房、卧室、公卫、阳台、露台。

。
转载请注明出自轩鼎自建房:://www.lemeizhai.com/