有钱的大老板都会回乡建豪宅,那些豪宅的气势甚至不输美国白宫,你说夸不夸张。有些地方都攀比起来,觉得建好房子是光宗耀祖,有钱了就建一栋大房子。今天给大家推荐连总私人订制的="://www.lemeizhai.com/Picture.asp?PicClassID=91" target="_self">三层别墅设计,这是一栋漂亮的三层别墅,这套房子适合在环境优美的地方建造。
效果图:


别墅层数: 三层
别墅风格: 欧式
占地面积:135㎡
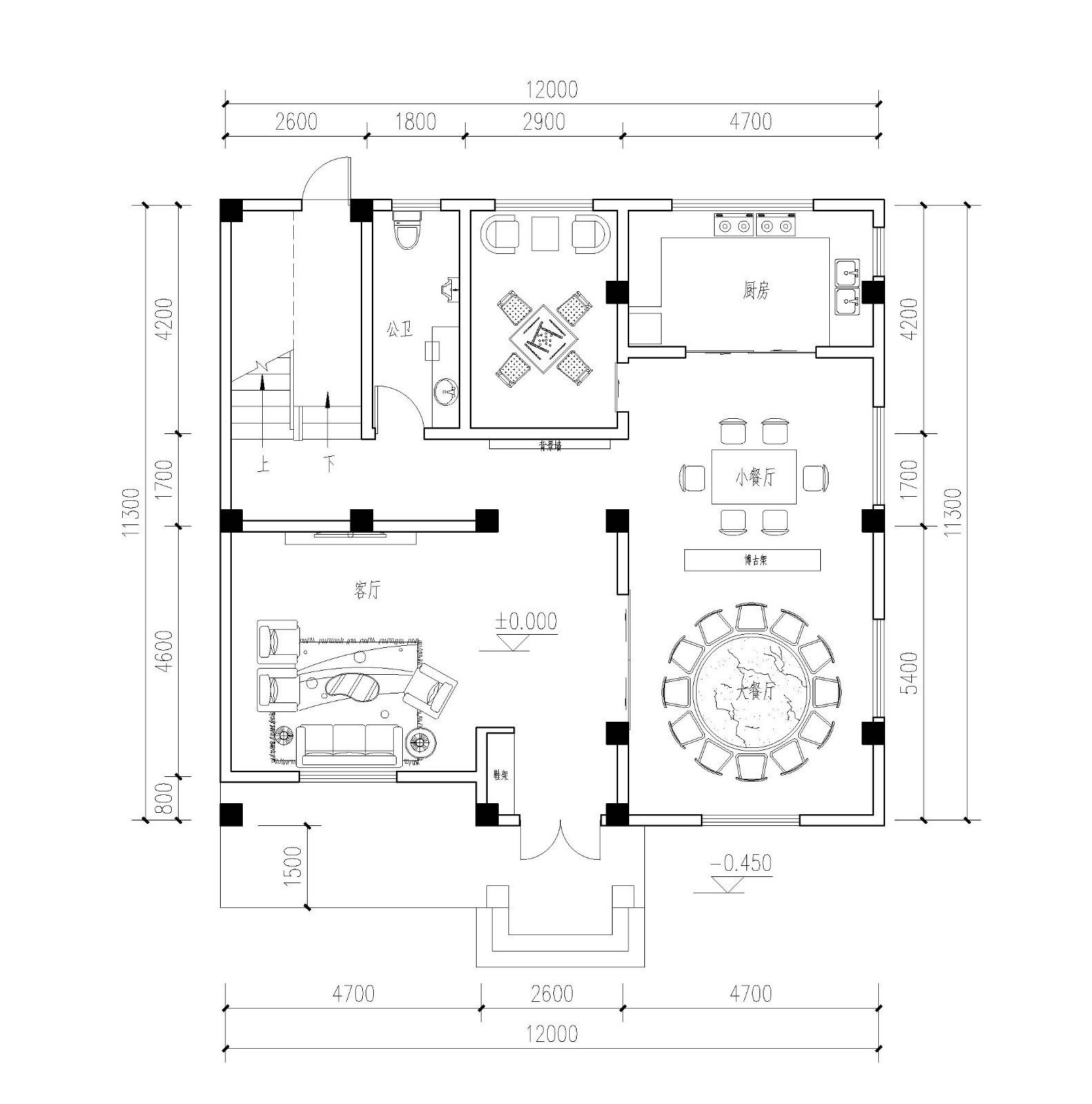
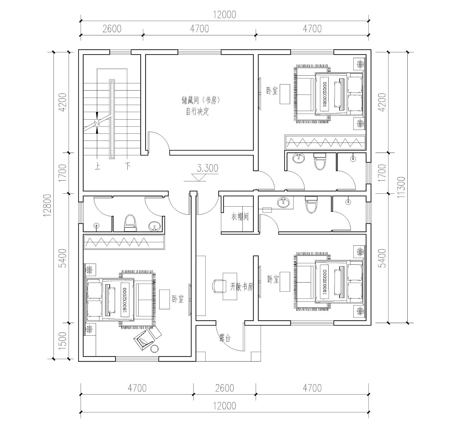
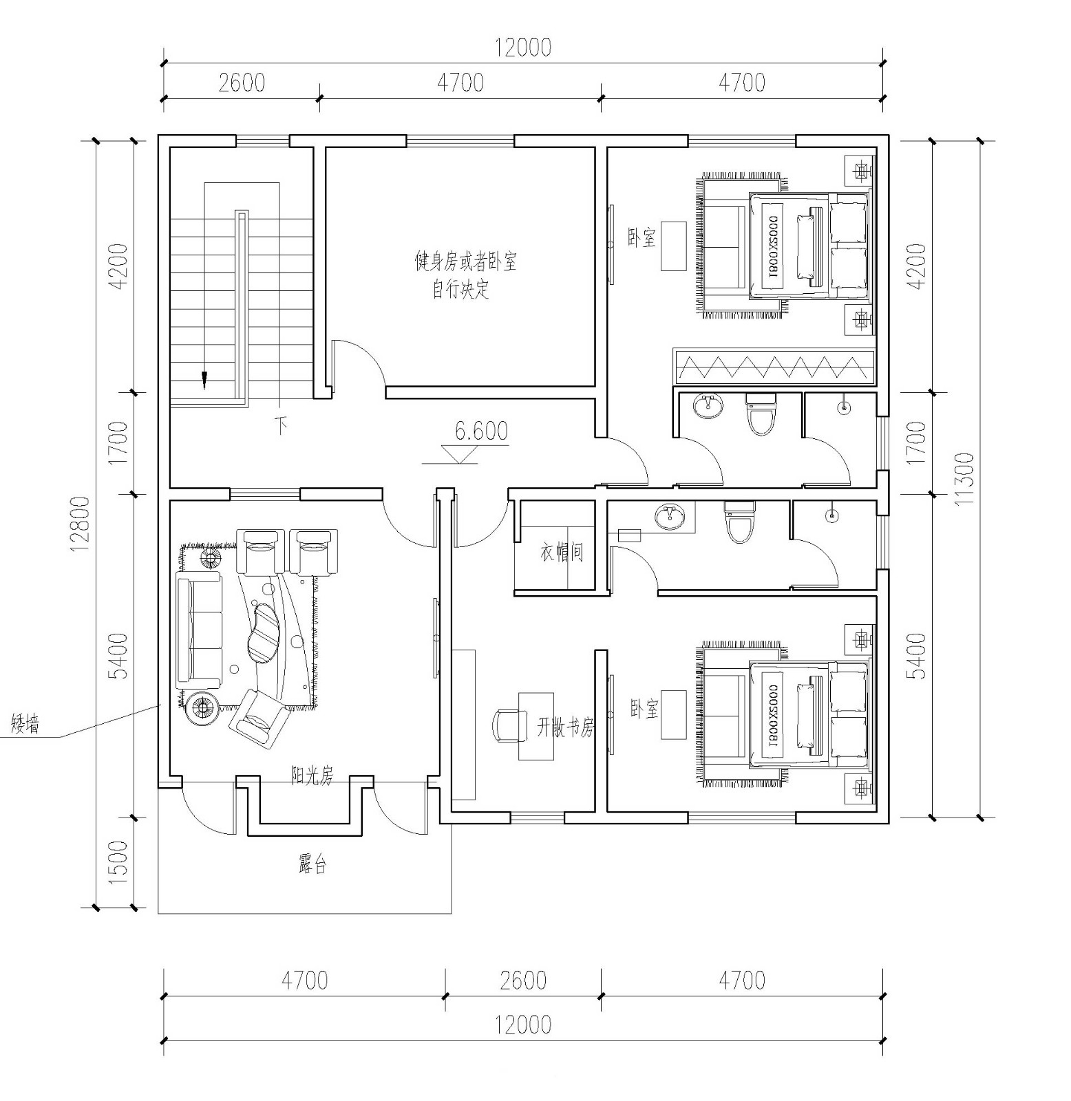
开 间:12m
进 深:11.3m
建筑占地:12m×11.3m
建筑面积:423㎡
主体造价:41.5~46.5万
建筑结构:框架结构
效果图:


主体设计:。

客厅、餐厅、厨房、卧室、公卫、阳台、露台。


。
转载请注明出自轩鼎自建房:://www.lemeizhai.com/