随着时代的发展,自建别墅会走进千家万户, 不再是少数发达地区和部分有钱人的专享,只要还允许农民建房,房子也会变得越来越好!今天给大家推荐一款特别适合我们的="://www.lemeizhai.com/Picture.asp?PicClassID=88" target="_self">二层别墅设计方案,极致时尚的外表直戳我们的内心,看看你对他心动不。
效果图:

别墅层数: 二层
别墅风格: 现代
占地面积:133㎡
开 间:10.8m
进 深:12.4m
建筑占地:10.8m×12.4m
建筑面积:235㎡
主体造价:36.0~41.0万
建筑结构:砖混结构
效果图:


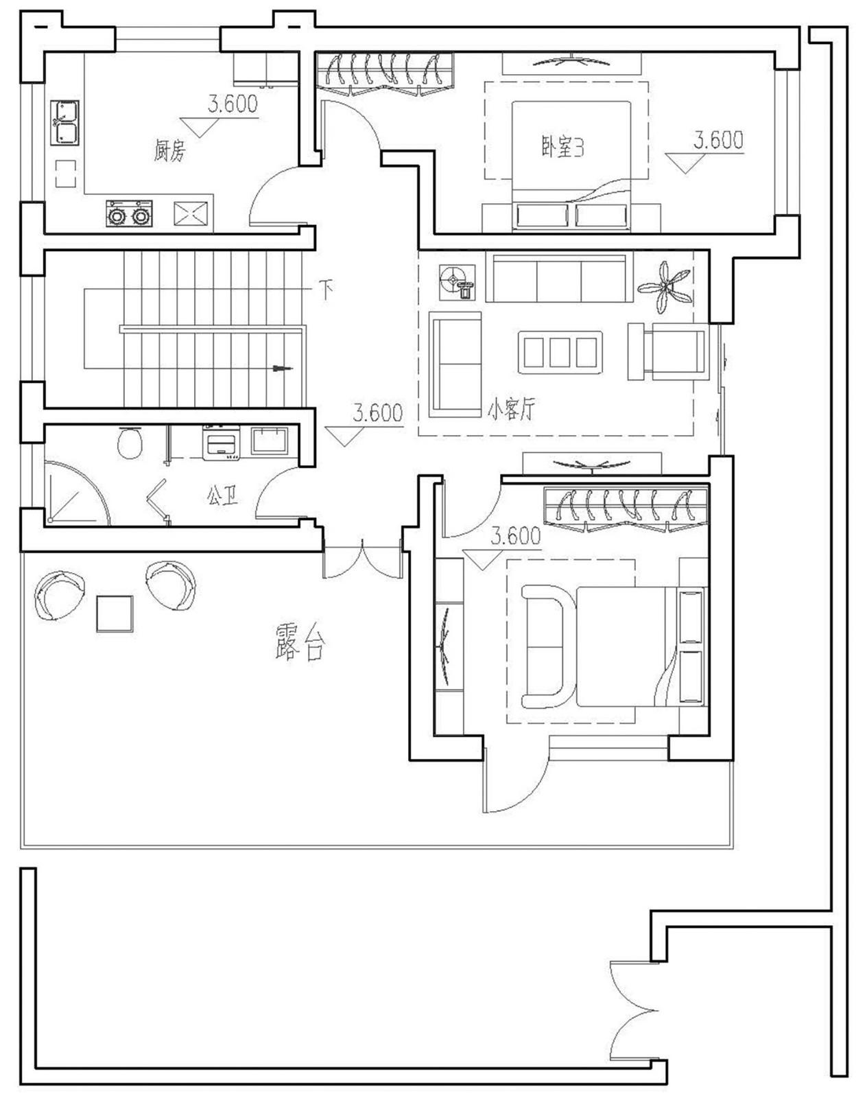
主体设计:。

客厅、餐厅、厨房、卧室、公卫、阳台、露台。

。
转载请注明出自轩鼎自建房:://www.lemeizhai.com/