商住一体的自建房有着几百年的历史,既能做生意又能住非常方便。今天给大家推荐在越南做生意的胡总私人订制的="://www.lemeizhai.com/Picture.asp?PicClassID=94" target="_self">四层别墅设计方案,这是一栋商住别墅,一层做生意非常适合,二层、三层、四层是用来住的,而且每一层都有厨房,完全可以出租房屋,体验当包租公感觉。
效果图:

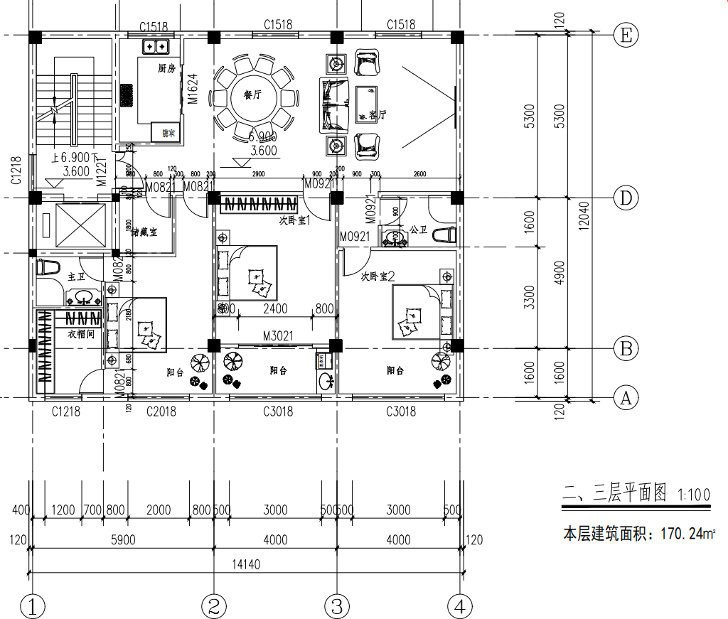
别墅层数: 四层
别墅风格: 现代
占地面积:147㎡
开 间:14.1m
进 深:10.4m
建筑占地:14.1m×10.4m
建筑面积:613.37㎡
主体造价:74.8~79.8万
建筑结构:框架结构
效果图:


主体设计:

客厅、餐厅、厨房、卧室、公卫、阳台、露台。


。
转载请注明出自轩鼎自建房:://www.lemeizhai.com/