农村建一套房子已不再那么容易,某些地方审批难可能都不让你建房,除非是危房你才能建,而且建房也不能超过3层,而且没分户的家庭不能建房因为一户一宅的的政策不允许,只要满足条件就可以。今天给大家推荐的是二层="://www.lemeizhai.com/search.asp?SearchType=Software&imageField.x=44&imageField.y=19&SearchKey=%D0%C2%D6%D0%CA%BD" target="_self">新中式别墅设计,这房子真的好,怎么好你看看就知道了。
效果图:

建筑面积:193.48㎡
基地面积:164.3㎡
建筑尺寸:10.6m×9.8m
占地面积:95.28㎡
效果图:



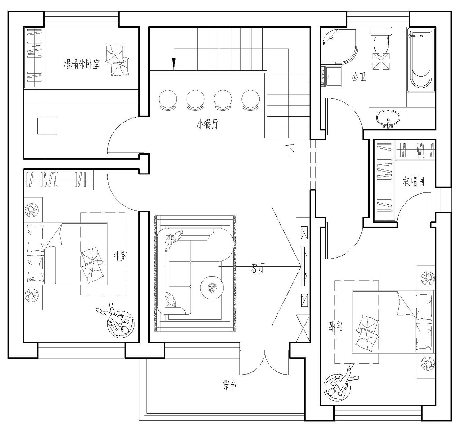
主体设计:

客厅、餐厅、厨房、卧室、公卫、阳台、露台。

。
转载请注明出自轩鼎自建房:://www.lemeizhai.com/