农村的房屋变化非常大,到现在有的村子几乎家家户户都有小别墅,二层的三层的都有,别墅村虽然不多,但这也是证明了部分农民的生活水平提高了不少。今天给大家推荐的是一款="://www.lemeizhai.com/Picture.asp?PicClassID=88" target="_self">二层农村自建别墅设计,这套别墅大道至简虽没有繁华的外表,却依然漂亮好看。
效果图:



建筑面积:242.7㎡
基地面积:200㎡
建筑尺寸:12.4m×9.8m
占地面积:123.75㎡
效果图:

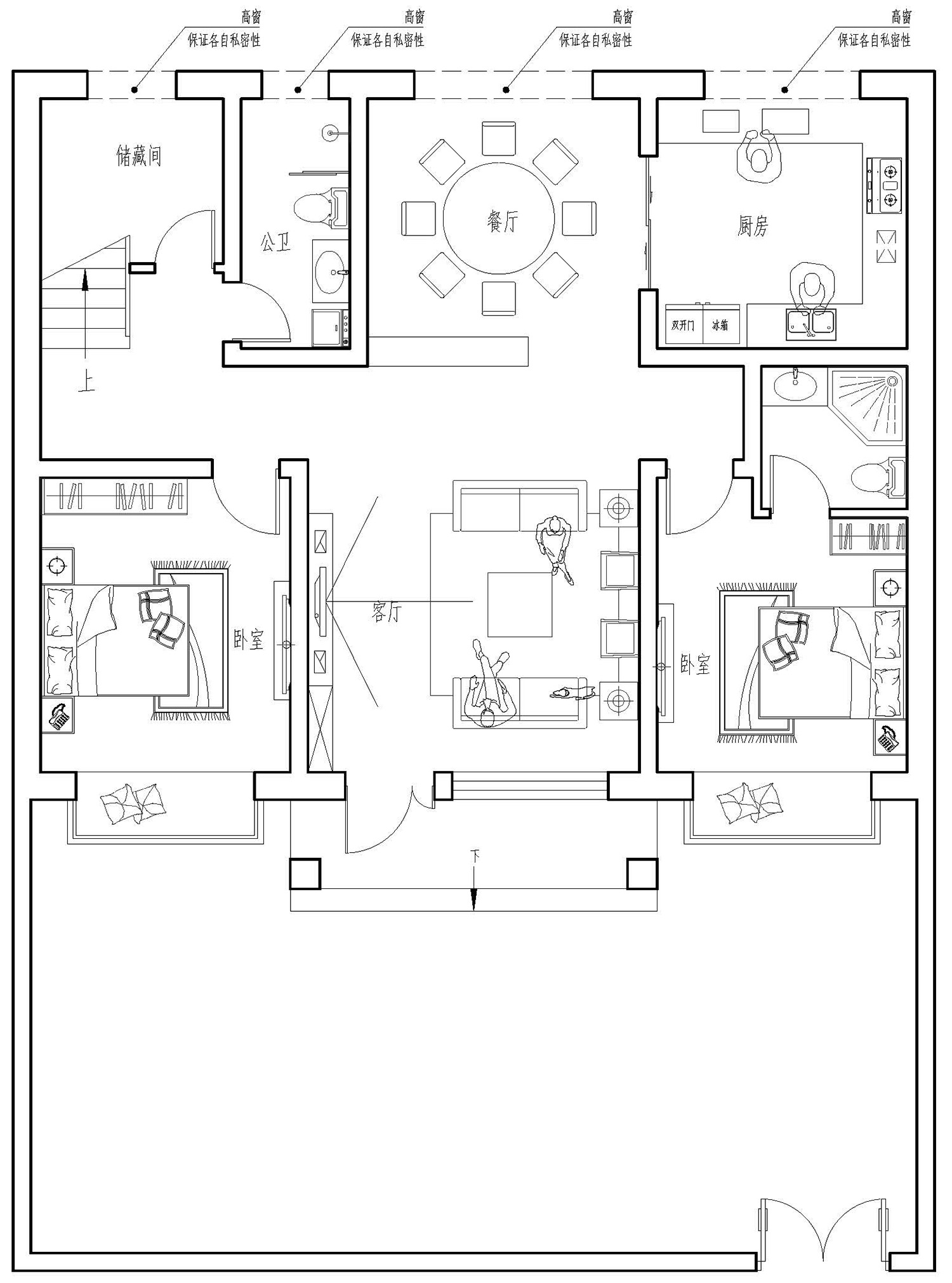
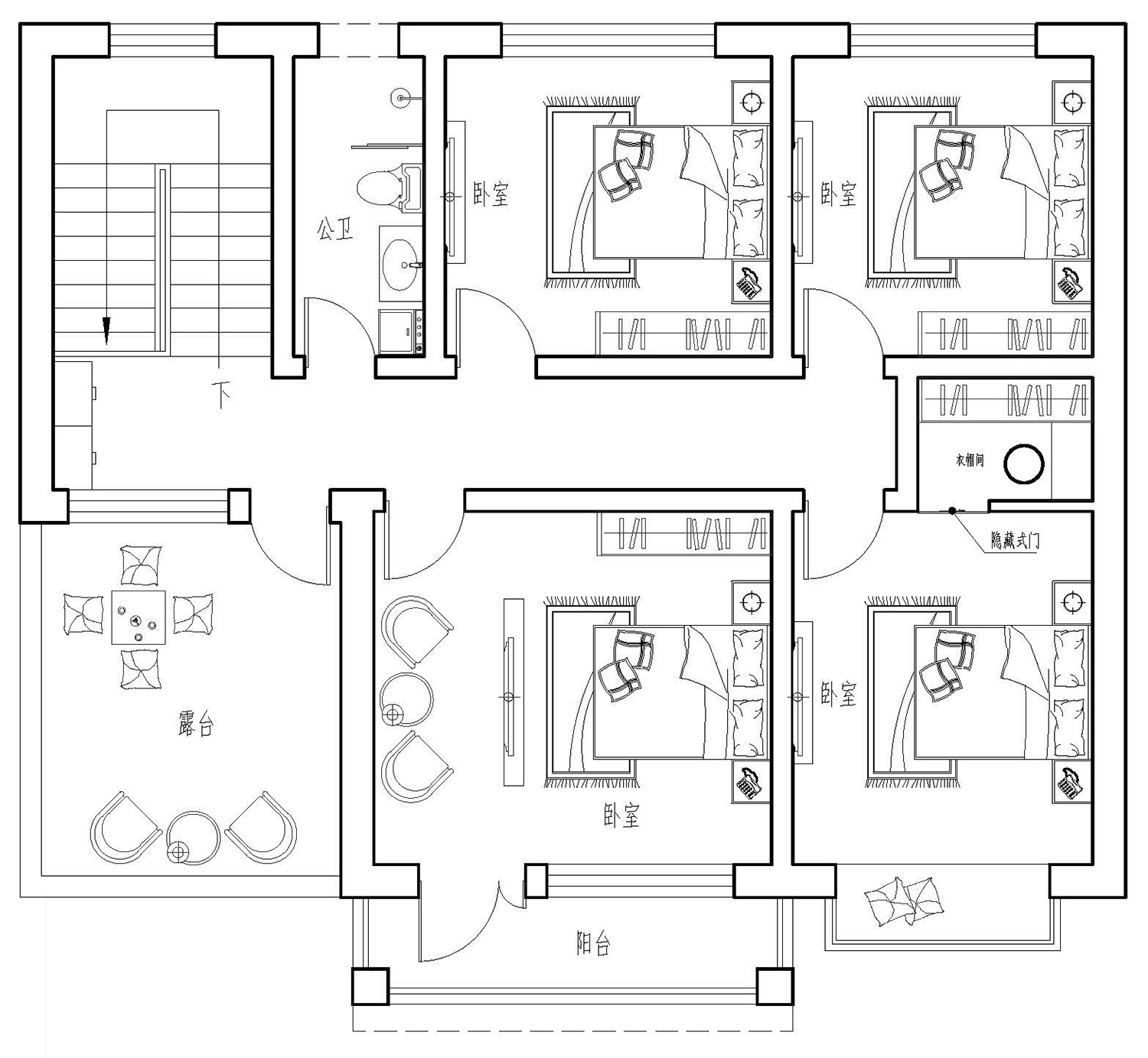
主体设计:

客厅、餐厅、厨房、卧室、公卫、阳台、露台。

。
转载请注明出自轩鼎自建房:://www.lemeizhai.com/