城里的房子太贵不贷款买不了,贷款了就被大山压住了发工资一看没了一半,这心里能好受吗,不如在农村建一套自建别墅,只要你是农村户口就能建一套好房子,不但没有公摊面积而且还不用还贷款,因为自己建的房子比城里买房朋友。今天给大家推荐的是一款现代四层="://www.lemeizhai.com/" target="_self">别墅设计方案,是一款大气的农村自建别墅
效果图:

别墅层数: 4层
别墅风格: 新中式
占地面积:310㎡
开 间:15.2m
进 深:20.4m
建筑占地:15.2m×20.4m
建筑面积:637㎡
主体造价:105.0~110.0万
建筑结构:框架结构
效果图:



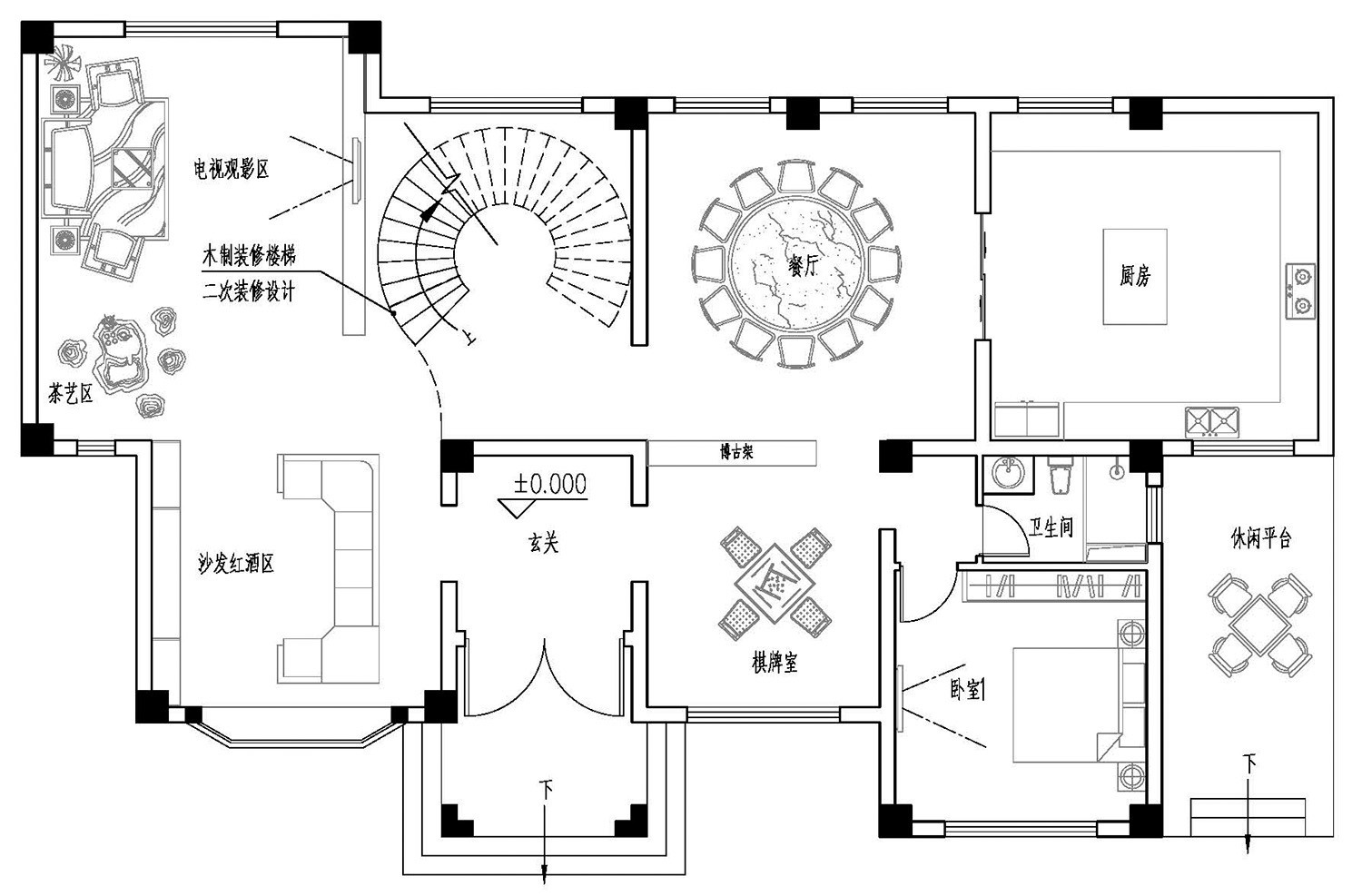
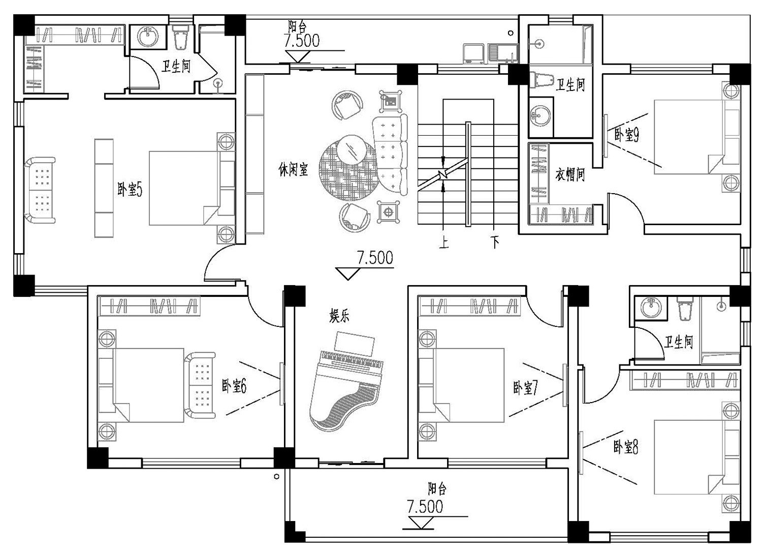
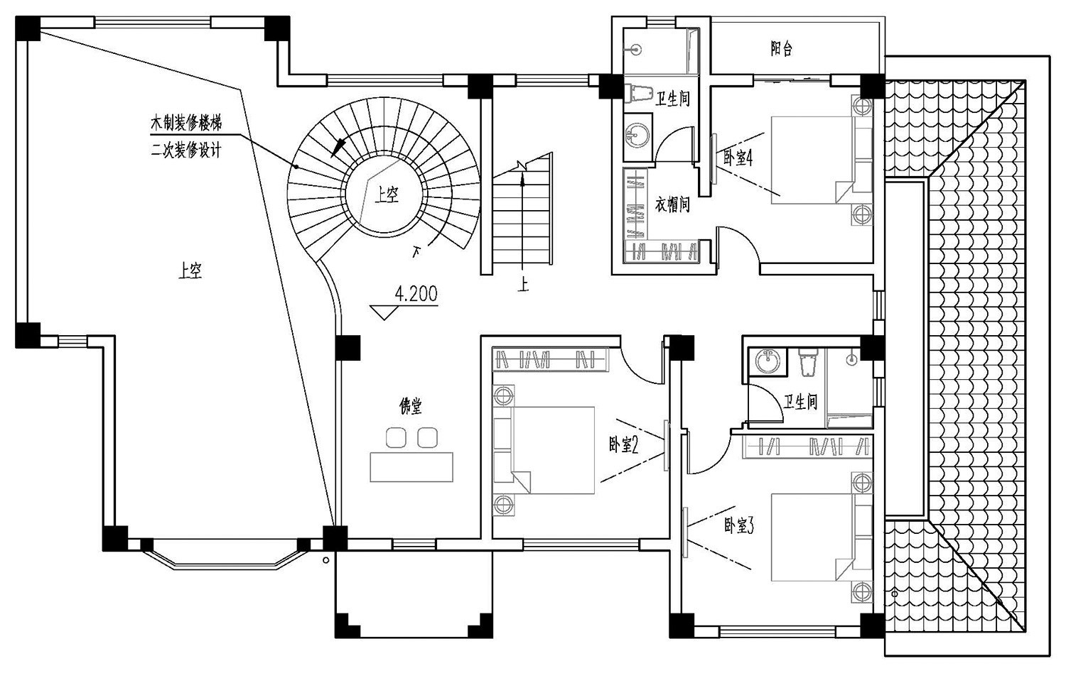
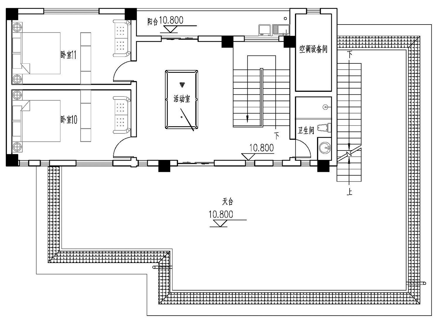
主体设计:

客厅、餐厅、厨房、卧室、公卫、阳台、露台。

。


转载请注明出自轩鼎自建房:://www.lemeizhai.com/