农村自建别墅很适合中年时建造,年轻时是打拼的年代不能被房子绊住,赚了钱壮年以后是建别墅好时节,中老年时需要休养生息建一套别墅很适合。今天推荐的是一款田园风格的="://www.lemeizhai.com/Picture.asp?PicClassID=88" target="_self">农村自建房二层,这别墅比较普通但颜值依然能打,很适农村地区的朋友建造,高二层有小露台。
效果图:


别墅层数: 二层
别墅风格: 欧式
占地面积:159㎡
开 间:14.5m
进 深:11m
建筑占地:14.5m×11m
建筑面积:240㎡
主体造价:35.3~40.3万
建筑结构:砖混结构
效果图:


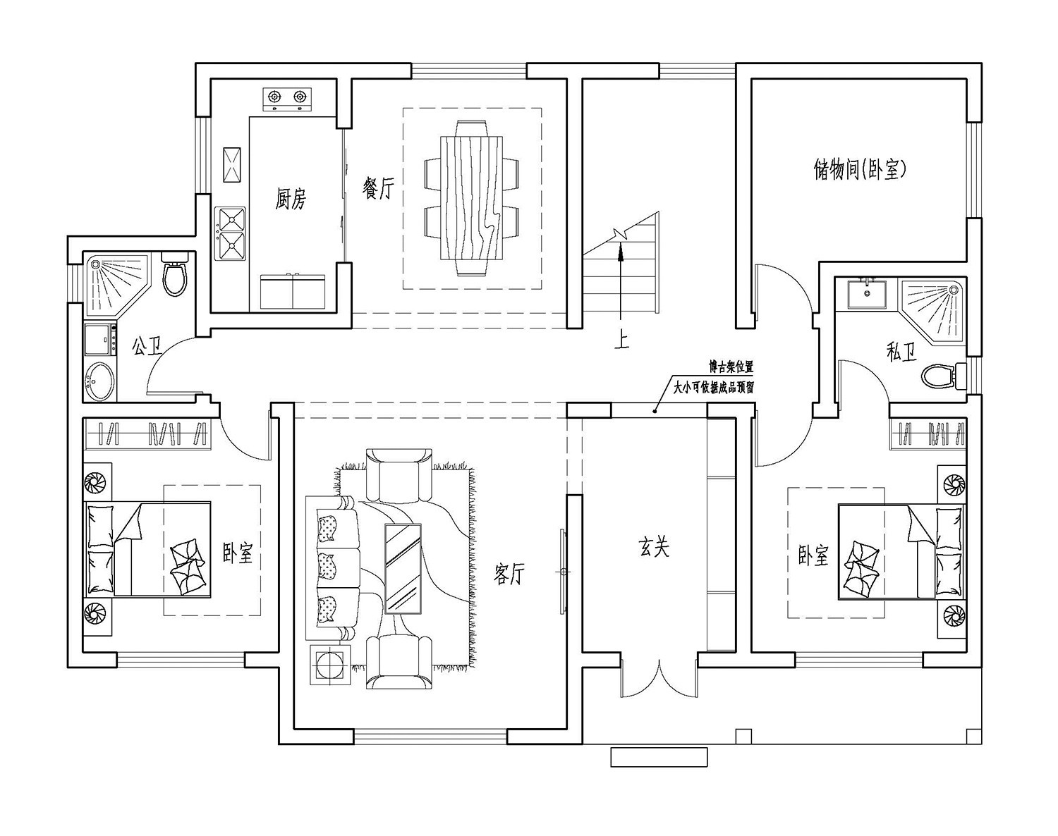
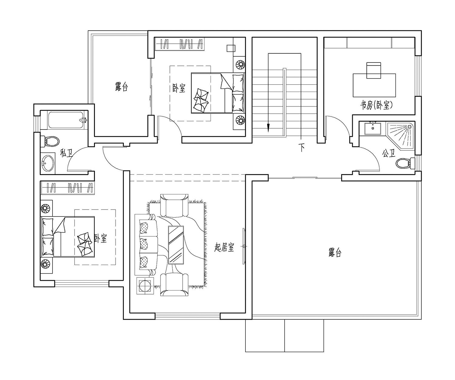
主体设计:

客厅、餐厅、厨房、卧室、公卫、阳台、露台。

。
转载请注明出自轩鼎自建房:://www.lemeizhai.com/