宅基地有大有小,不管多么大都能建好房子,这么说你可能不信,其实建一栋小楼就解决,地方小就向上看叠起来就解决了。今天给大家推荐的是一款小宅基="://www.lemeizhai.com/Picture.asp?PicClassID=94" target="_self">四层别墅设计,这是一套非常时尚的现代风格别墅,采光良好又能保障隐私,整体非常精神年轻态真是不可多得的好别墅。
效果图:

别墅层数: 四层
别墅风格: 现代
占地面积:118㎡
开 间:8m
进 深:14.8m
建筑占地:8m×14.8m
建筑面积:527.83㎡
主体造价:63.0~68.0万
建筑结构:框架结构
效果图:


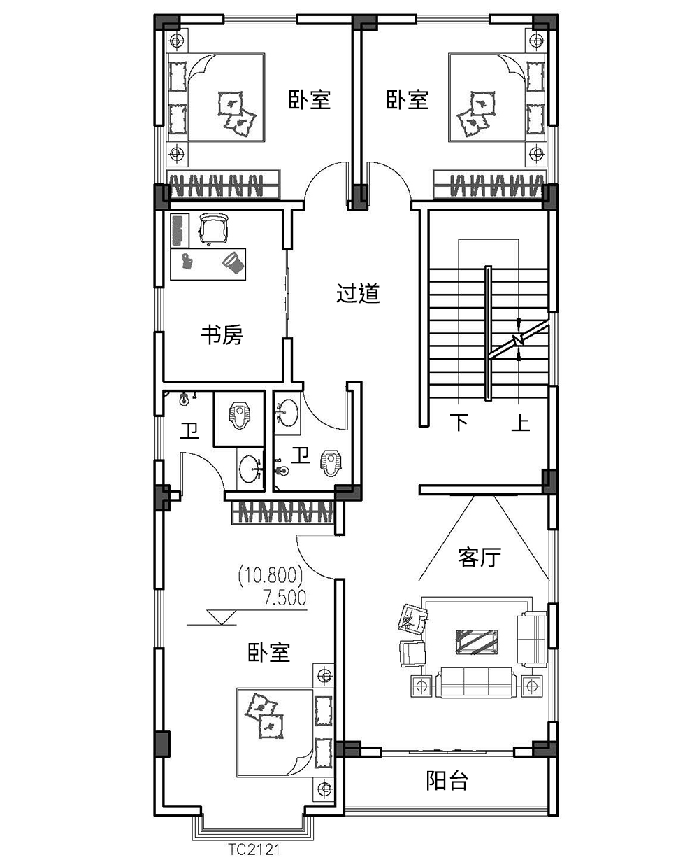
主体设计:。

客厅、餐厅、厨房、卧室、公卫、阳台、露台。



。
转载请注明出自轩鼎自建房:://www.lemeizhai.com/